L’agence CBRE Toulouse conseille et accompagne les chefs d’entreprise dans leurs projets immobiliers quels que soient leur taille et leur secteur d’activité. Spécialistes de la transaction de burea ...
En savoir plus

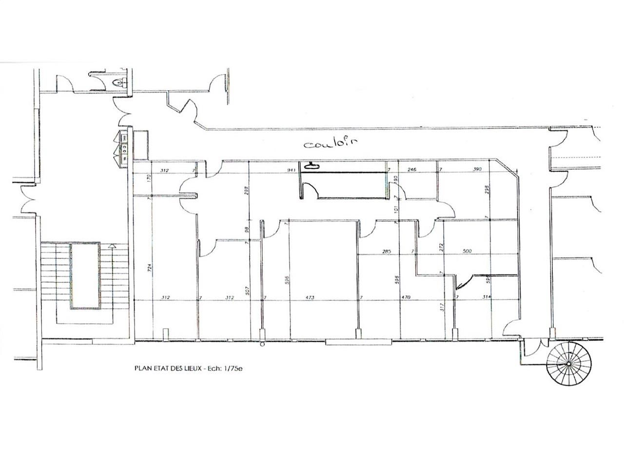
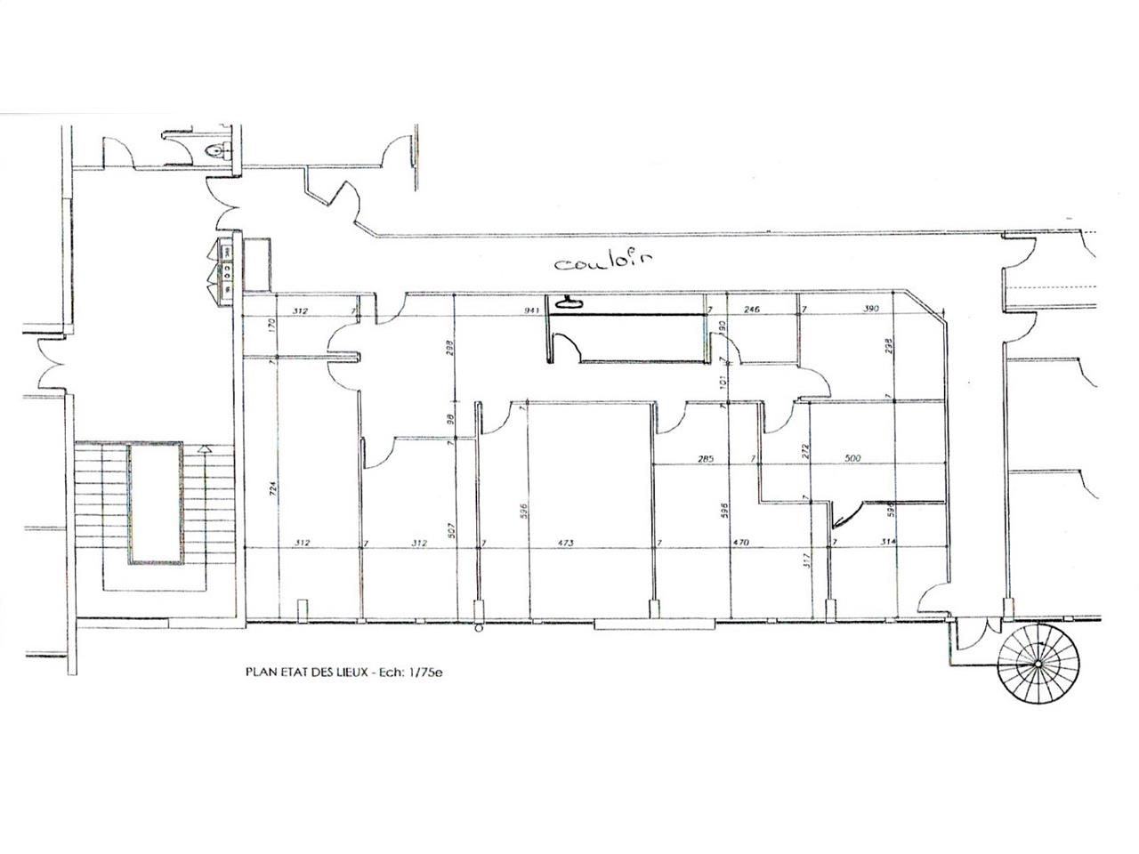
180 m²
HT HC
Location bureau - 180 m²
Balma (31130)
Dernière mise à jour : Il y a 2 jours
Bureaux à louer à BALMA, à proximité immédiate du Centre Commercial et du Métro.
CBRE TOULOUSE vous propose une surface à usage de bureaux à louer en étage , dans un bâtiment en R+1.
Les Locaux sont cloisonnés et climatisés.
Bon état général.
Situation : à proximité du centre commercial .
Nombreux services.
Accès immédiat par la rocade Est (Sortie n° 15 - Route de Lavaur),
Plusieurs Lignes de bus .
Zone desservie par le métro (terminus ligne A). À 400 m .
Impôt Foncier : 3503,36 €/an en sus
Régime Fiscal : T.V.A.
Dépôt de garantie : 3 mois de loyer HT/HC
Honoraires : 15% (+TVA) du loyer annuel HT HC à la charge du preneur
Information sur le Bail :
Loyer et charges payables par trimestre et d'avance.
Prestations :
Accessibilité:
Route Accès immédiat par la rocade Est (Sortie n° 15 - Route de Lavaur),
Bus Lignes de bus 101-102-103
Metro Zone desservie par le métro (terminus ligne A). À 400 m .
Les informations sur les risques auxquels ce bien est exposé sont disponibles sur le site Géorisques : www.georisques.gouv.fr
CBRE TOULOUSE vous propose une surface à usage de bureaux à louer en étage , dans un bâtiment en R+1.
Les Locaux sont cloisonnés et climatisés.
Bon état général.
Situation : à proximité du centre commercial .
Nombreux services.
Accès immédiat par la rocade Est (Sortie n° 15 - Route de Lavaur),
Plusieurs Lignes de bus .
Zone desservie par le métro (terminus ligne A). À 400 m .
| Étage | Type | Surfaces | Dispo | Loyer | Charges | Type de bailRév. annuelle |
|---|---|---|---|---|---|---|
| 1 | Bureaux | 180 | Immédiate | 130 m²/an HT HC | 32 m²/an HT | 3-6-9 ansIndice ILAT |
Impôt Foncier : 3503,36 €/an en sus
Régime Fiscal : T.V.A.
Dépôt de garantie : 3 mois de loyer HT/HC
Honoraires : 15% (+TVA) du loyer annuel HT HC à la charge du preneur
Information sur le Bail :
Loyer et charges payables par trimestre et d'avance.
Prestations :
- Au sein d'un ensemble immobilier restructuré au début des années 2010, face au centre commercial de Balma Gramont et à moins de 10 minutes à pied du métro.
- 180 m² de surface locative au R+1.
- Surface cloisonnée : bureaux privatifs, salle de réunion, espace lounge / convivialité avec point d'eau.
- Climatisation réversible.
- Câblage RJ 45, fibre.
- Stationnement extérieur libre.
Accessibilité:
Route Accès immédiat par la rocade Est (Sortie n° 15 - Route de Lavaur),
Bus Lignes de bus 101-102-103
Metro Zone desservie par le métro (terminus ligne A). À 400 m .
Les informations sur les risques auxquels ce bien est exposé sont disponibles sur le site Géorisques : www.georisques.gouv.fr
Voir plus
Afficher les consommations énergétiques
Favoris
Exporter
Appeler
Contacter
Signaler cette annonce










