RCG Bordeaux est un cabinet de conseil en immobilier d'entreprise est située au cœur du quartier des Chartrons au 107 cours Balguerie Stuttenberg à Bordeaux. Cette agence propose un large choix de ...
En savoir plus

489 m² divisible dès 100 m²
HT HC
Location bureau - 489 m²
Artigues-près-Bordeaux (33370)
Dernière mise à jour : Il y a 7 mois
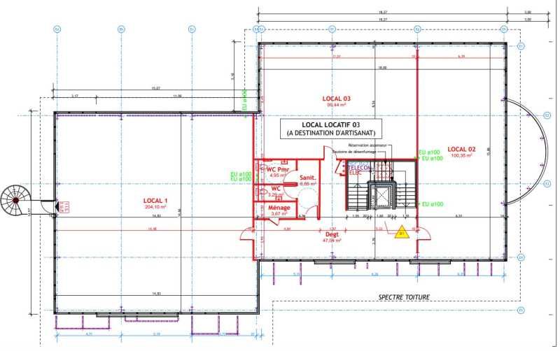
A LOUER - BUREAUX 489 M² DIVISIBLES - ARTIGUES PRES BORDEAUX
Au sein de la zone commerciale du Feydau, RCG vous propose à la location une surface de bureaux neuve livrée aménagée en open space d'environ 489 m² divisibles en 3 lots de 100 m², 100 m² et 204 m² (surfaces utiles).
Environnement : Basic Fit, Intermarché, V&B, Jardiland,...
Grand parking à disposition.
Possibilité de louer les bureaux en l'état à 120 euros/m²/an HT HC (aménagements à la charge du preneur)
Impôt Foncier : 20 €/m²/an HT
Régime Fiscal : T.V.A.
Dépôt de garantie : 3 mois de loyer HT/ HC
Honoraires : 20% HT du loyer annuel HT/HC à la charge du Preneur
Prestations :
Accessibilité:
Bus Gay Lussac (Ligne 27), Blancherie (Ligne 80)
Route Rocade sortie n°24
Les informations sur les risques auxquels ce bien est exposé sont disponibles sur le site Géorisques : www.georisques.gouv.fr
Au sein de la zone commerciale du Feydau, RCG vous propose à la location une surface de bureaux neuve livrée aménagée en open space d'environ 489 m² divisibles en 3 lots de 100 m², 100 m² et 204 m² (surfaces utiles).
Environnement : Basic Fit, Intermarché, V&B, Jardiland,...
Grand parking à disposition.
Possibilité de louer les bureaux en l'état à 120 euros/m²/an HT HC (aménagements à la charge du preneur)
| Étage | Type | Surfaces | Dispo | Loyer | Charges | Type de bailRév. annuelle |
|---|---|---|---|---|---|---|
| RDC+Etage | Bureaux | 489 | 2 mois après travaux | 165 HT/HC/m²/an | 15 m²/an HT | 6-9 ansILAT Indice des Loyers des Activités Tertiaires |
Impôt Foncier : 20 €/m²/an HT
Régime Fiscal : T.V.A.
Dépôt de garantie : 3 mois de loyer HT/ HC
Honoraires : 20% HT du loyer annuel HT/HC à la charge du Preneur
Prestations :
- Locaux neufs livrés aménagés prêts à cloisonner ou bruts fluides en attente
- Accès indépendant
- Ascenseur / normes PMR
- Sanitaires en parties communes
- Locaux très lumineux vitrés toute hauteur
- Belle hauteur sous plafond
- Sol PVC
- Grand parking extérieur et sous-sol en foisonnement
- Possibilité enseigne et vitrophanie
- Normes ERP - escalier de secours prévu
- Possibilité extraction
- Surface RDC : 489 m²
Accessibilité:
Bus Gay Lussac (Ligne 27), Blancherie (Ligne 80)
Route Rocade sortie n°24
Les informations sur les risques auxquels ce bien est exposé sont disponibles sur le site Géorisques : www.georisques.gouv.fr
Voir plus
Afficher les consommations énergétiques
Favoris
Exporter
Appeler
Contacter
Signaler cette annonce










