Nous sommes Immprove, une grande équipe de plus de 200 experts en immobilier d’entreprise, implantés localement avec plus de 20 agences sur tout le territoire.Depuis 2009, notre proximité, notre ét ...
En savoir plus



594 m² divisible dès 220 m²
HT HC
Location bureau - 594 m²
Antony (92160)
Dernière mise à jour : Il y a 10 jours
BUREAUX LUMINEUX EN TRES BON ETAT AU PIED DU RER B
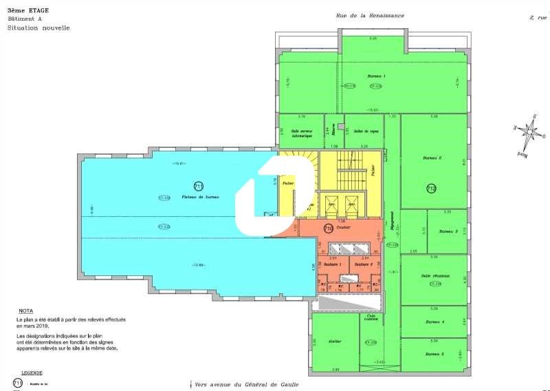
On vous propose un plateau de bureaux de 574 m² situés au 2ème étage divibles en deux lots de 374 et 222 m² , le tout en excellent état , climatisé, et déja cloisonné. Ces espaces de travail sont stratégiquement situés en façade de l'A86, offrant une vue imprenable sur le Parc de Sceaux.
Ces bureaux font partie d'un ensemble immobilier de standing sécurisé, idéalement situé à seulement 300 mètres de la station de RER B "Croix de Berny", à proximité de l'arrêt de TVM qui relie le RER C à Créteil, et au pied de la ligne de tramway 10 en direction de Vélizy, qui mène au tramway T6.
Nos locaux sont équipés de la fibre optique, garantissant une connectivité haut débit. De plus, nous proposons des parkings en sous-sol pour un stationnement pratique et sûr.
Les avantages de cet emplacement ne s'arrêtent pas là. Vous aurez également accès à un restaurant inter-entreprise, des halls entièrement rénovés, un service d'interphonie, et un accueil digitalisé, y compris la réception de colis.
Découvrez un environnement professionnel de qualité avec Immprove.
Impôt Foncier : 24 €//m²/an HT
Régime Fiscal : T.V.A. (20%)
Dépôt de garantie : 3 mois de loyer HT HC
Honoraires : 15% HT du loyer annuel HT HC à la charge du preneur
Taxe Bureau : 21,7 €/m²/an
Information sur le Bail :
Taxe additionnelle sur les parkings : 4.77 Euros / m²/ HT
Prestations :
Accessibilité:
Bus Léon Blum (BUS-12), Parc de Sceaux - Sous-Préfecture (BUS-379, BUS-N62)
RER LA CROIX-DE-BERNY-FRESNES (RER B)
Transilien La Croix de Berny Fresnes (TRAIN-RER B)
Les informations sur les risques auxquels ce bien est exposé sont disponibles sur le site Géorisques : www.georisques.gouv.fr
On vous propose un plateau de bureaux de 574 m² situés au 2ème étage divibles en deux lots de 374 et 222 m² , le tout en excellent état , climatisé, et déja cloisonné. Ces espaces de travail sont stratégiquement situés en façade de l'A86, offrant une vue imprenable sur le Parc de Sceaux.
Ces bureaux font partie d'un ensemble immobilier de standing sécurisé, idéalement situé à seulement 300 mètres de la station de RER B "Croix de Berny", à proximité de l'arrêt de TVM qui relie le RER C à Créteil, et au pied de la ligne de tramway 10 en direction de Vélizy, qui mène au tramway T6.
Nos locaux sont équipés de la fibre optique, garantissant une connectivité haut débit. De plus, nous proposons des parkings en sous-sol pour un stationnement pratique et sûr.
Les avantages de cet emplacement ne s'arrêtent pas là. Vous aurez également accès à un restaurant inter-entreprise, des halls entièrement rénovés, un service d'interphonie, et un accueil digitalisé, y compris la réception de colis.
Découvrez un environnement professionnel de qualité avec Immprove.
| Étage | Type | Surfaces | Dispo | Loyer | Charges | Type de bailRév. annuelle |
|---|---|---|---|---|---|---|
| 2 | Bureaux | 374 | Immédiate | 150 m²/an HT HC | 74 m²/an HT | Bail Commercial 3-6-9 ansselon l'indice des loyers des activités tertiaires (ILAT) |
| 2 | Bureaux | 220 | Immédiate | 150 m²/an HT HC | 74 m²/an HT | Bail Commercial 3-6-9 ansselon l'indice des loyers des activités tertiaires (ILAT) |
Impôt Foncier : 24 €//m²/an HT
Régime Fiscal : T.V.A. (20%)
Dépôt de garantie : 3 mois de loyer HT HC
Honoraires : 15% HT du loyer annuel HT HC à la charge du preneur
Taxe Bureau : 21,7 €/m²/an
Information sur le Bail :
Taxe additionnelle sur les parkings : 4.77 Euros / m²/ HT
Prestations :
- Immeuble de bureaux de standing
- Façade murs rideaux
- Accès PMR
- Contrôle d'accès
- Ascenseurs
- Parc de Sceaux, commerces, hôtels et services à proximité
- Restaurant inter-entreprise
- Locaux en bon état
- Sanitaires Hommes et femmes sur palier privatif
- Sol Parquet
- Faux plafond
- Luminaires LED
- Cuisine aménagée
- Cloisonnement amovible
- Pré- câblage informatique
- Climatisation
- Chauffage immeuble
Accessibilité:
Bus Léon Blum (BUS-12), Parc de Sceaux - Sous-Préfecture (BUS-379, BUS-N62)
RER LA CROIX-DE-BERNY-FRESNES (RER B)
Transilien La Croix de Berny Fresnes (TRAIN-RER B)
Les informations sur les risques auxquels ce bien est exposé sont disponibles sur le site Géorisques : www.georisques.gouv.fr
Voir plus
Afficher les consommations énergétiques
Localisation et transport aux alentours
Favoris
Exporter
Appeler
Contacter
Signaler cette annonce
