Conseil en immobilier d'entreprise, Cushman & Wakefield est un acteur incontournable au rayonnement international. Cushman & Wakefield offre des solutions dans toutes les étapes que comporte un p ...
En savoir plus



4 078 m² divisible dès 509 m²
HT HC
EINSTEIN - Location bureau - 4078 m²
Antony (92160)
Dernière mise à jour : Il y a 8 mois
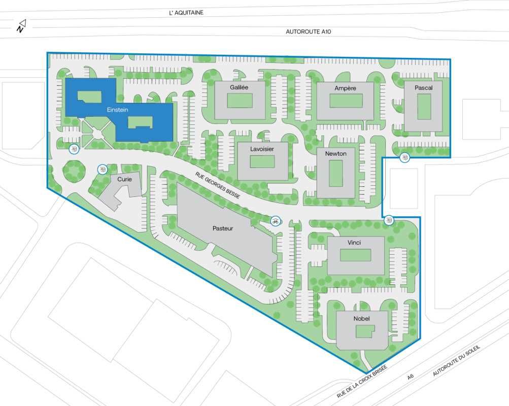
MILEWAY PARKS - EINSTEIN
Immeuble EINSTEIN
À louer - Bureaux et activité à Antony
Au coeur du Mileway Parks d'Antony, un ensemble de 10 immeubles mixtes totalisant 38 000 m², plusieurs surfaces de bureaux et d'activité sont disponibles à la location, dont plusieurs lots mixtes dés 509 m² dans l'immeuble EINSTEIN. Ce parc d'affaires moderne et fonctionnel offre un cadre de travail dynamique et attractif.
Idéalement situé, il se trouve à 8 minutes en bus du RER B - Fontaine Michalon et bénéficiera dès 2027 d'une connexion directe à la ligne 18 du métro, avec la station Antonypôle à moins de 200 mètres. Il offre également une excellente visibilité sur l'A6, garantissant une accessibilité optimale.
Les occupants profitent d'un environnement de qualité avec des restaurants, food trucks et une salle de sport à proximité, favorisant bien-être et convivialité au travail.
Les lots seront disponibles après rénovation, ces travaux débutant dès la signature du bail, afin d'offrir des espaces modernes et adaptés à vos besoins.
N'hésitez pas à nous contacter pour plus d'informations ou pour organiser une visite !
Impôt Foncier : 19 €/
Régime Fiscal : T.V.A.
Dépôt de garantie : 3 mois de loyer HT/HC
Honoraires : 15 % HT du loyer annuel HT/HC à la charge du preneur.
Taxe Bureau : 21,31 €/m²/an
Information sur le Bail :
Parkings extérieurs : inclus dans le loyer
Prestations :
Accessibilité:
RER Massy Palaiseau (B-C)
SNCF Gare de Massy
Bus Lignes 299 et 319
Bus Navette LE PALADIN
Aéroport Orly à 10 minutes
Accès routier A6, A10 & N20
Les informations sur les risques auxquels ce bien est exposé sont disponibles sur le site Géorisques : www.georisques.gouv.fr
Immeuble EINSTEIN
À louer - Bureaux et activité à Antony
Au coeur du Mileway Parks d'Antony, un ensemble de 10 immeubles mixtes totalisant 38 000 m², plusieurs surfaces de bureaux et d'activité sont disponibles à la location, dont plusieurs lots mixtes dés 509 m² dans l'immeuble EINSTEIN. Ce parc d'affaires moderne et fonctionnel offre un cadre de travail dynamique et attractif.
Idéalement situé, il se trouve à 8 minutes en bus du RER B - Fontaine Michalon et bénéficiera dès 2027 d'une connexion directe à la ligne 18 du métro, avec la station Antonypôle à moins de 200 mètres. Il offre également une excellente visibilité sur l'A6, garantissant une accessibilité optimale.
Les occupants profitent d'un environnement de qualité avec des restaurants, food trucks et une salle de sport à proximité, favorisant bien-être et convivialité au travail.
Les lots seront disponibles après rénovation, ces travaux débutant dès la signature du bail, afin d'offrir des espaces modernes et adaptés à vos besoins.
N'hésitez pas à nous contacter pour plus d'informations ou pour organiser une visite !
| Étage | Type | Surfaces | Dispo | Loyer | Charges | Type de bailRév. annuelle |
|---|---|---|---|---|---|---|
| 1 | Bureaux | 948 | 3 mois après accord | 144 HT/HC/m²/an | Sur l'indice ILAT | |
| RdC | Activités | 717 | 3 mois après accord | 144 HT/HC/m²/an | Sur l'indice ILAT | |
| 21 | Activités | 1665 | 3 mois après accord | 144 HT/HC/m²/an | 3-6-9 ansSur l'indice ILAT | |
| 1 | Bureaux | 638 | 3 mois après accord | 141 HT/HC/m²/an | Sur l'indice ILAT | |
| RdC | Activités | 632 | 3 mois après accord | 141 HT/HC/m²/an | Sur l'indice ILAT | |
| 23 | Activités | 1270 | 3 mois après accord | 141 HT/HC/m²/an | 3-6-9 ansSur l'indice ILAT | |
| 1 | Bureaux | 634 | 3 mois après accord | 160 HT/HC/m²/an | 3-6-9 ansSur l'indice ILAT | |
| RdC | Activités | 509 | 3 mois après accord | 160 HT/HC/m²/an | 3-6-9 ansSur l'indice ILAT |
Impôt Foncier : 19 €/
Régime Fiscal : T.V.A.
Dépôt de garantie : 3 mois de loyer HT/HC
Honoraires : 15 % HT du loyer annuel HT/HC à la charge du preneur.
Taxe Bureau : 21,31 €/m²/an
Information sur le Bail :
Parkings extérieurs : inclus dans le loyer
Prestations :
- Parc s'étendant sur 60 ha
- Visibilité exceptionnelle sur l'A10
- Accessibilité de 1er plan
- Présence de nombreux leaders Biotech & Hightec : Air Liquide Medical Systems, Stallergenes greer, Essilor, Dräger Medical...
- 2 lots d'activité et leurs bureaux d'accompagnement : Hsp de 5 à 8 m ; portes sectionnelles
- 2 lots de bureaux climatisés
- Les lots sont actuellement en cours de rénovation
- Le parc dispose de nombreuses places de stationnement, et d'un parking à vélos
- Les espaces verts sont soigneusement aménagés, créant un environnement agréable, avec plusieurs espaces détente équipées de tables de pique-nique
- Surface RDC : 1858 m²
Accessibilité:
RER Massy Palaiseau (B-C)
SNCF Gare de Massy
Bus Lignes 299 et 319
Bus Navette LE PALADIN
Aéroport Orly à 10 minutes
Accès routier A6, A10 & N20
Les informations sur les risques auxquels ce bien est exposé sont disponibles sur le site Géorisques : www.georisques.gouv.fr
Voir plus
Afficher les consommations énergétiques
Localisation et transport aux alentours
Favoris
Exporter
Appeler
Contacter
Signaler cette annonce










