

Location bureau - 32 m²
Au cœur du très recherché Carré Foch, dans l’un des quartiers les plus prestigieux de Lyon, ce local professionnel de 32 m² offre un environnement idéal pour une activité libérale ou tertiaire haut de gamme, en parfaite adéquation avec une clientèle aisée, fidèle et exigeante.
Situé au 15 rue Sully – 69006 Lyon, cette adresse bénéficie d’une excellente visibilité et d’une image immédiatement valorisante, à proximité des commerces, transports et des plus belles adresses du quartier.
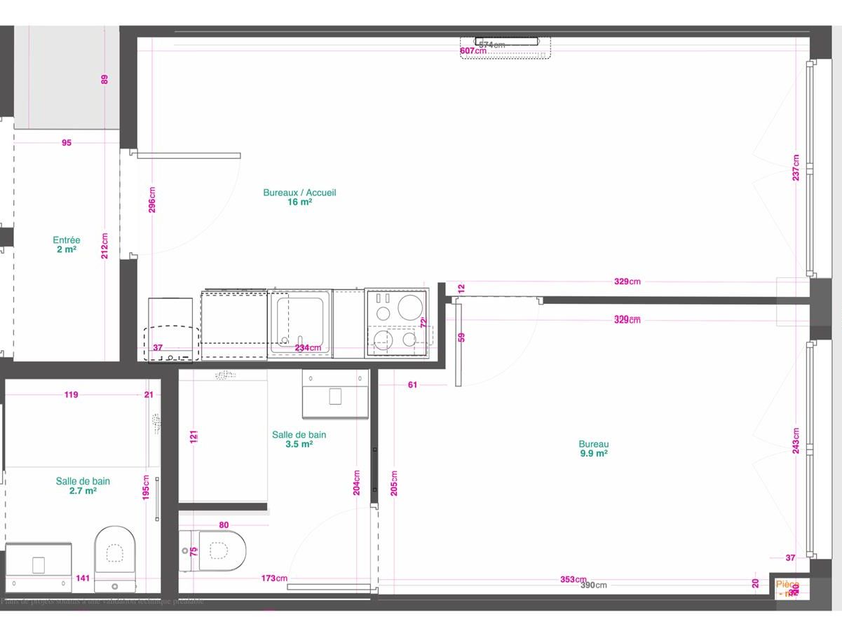
Le local se compose d’une agréable pièce d’accueil de 16 m² pouvant faire office de salle d’attente et de secrétariat, d’un bureau indépendant de 10 m² propice au calme et à la confidentialité, ainsi que d’une salle d’eau avec sanitaires.
Ce bien conviendra parfaitement aux professions libérales, activités de conseil, thérapeutes, professions médicales ou paramédicales, ou à toute activité souhaitant s’implanter dans un secteur reconnu pour son pouvoir d’achat et la qualité de sa clientèle.
Le bail devra impérativement être signé avant le 31 décembre 2025. À défaut, le propriétaire procédera à la transformation du local en studio meublé avec terrasse, mettant fin à cette opportunité professionnelle rare dans le Carré Foch.
Un emplacement stratégique, une clientèle premium et une adresse de standing font de ce bureau une opportunité à ne pas manquer.