Depuis plus de 20 ans, EOL est l'un des leaders de l'immobilier industriel, logistique et retail, spécialisé dans 3 métiers : la transaction, le conseil en investissement et l'assistance à maîtrise ...
En savoir plus

1 909 m²
HT HC
Location activité/entrepôt - 1909 m²
Chilly-Mazarin (91380)
Dernière mise à jour : Il y a 3 jours
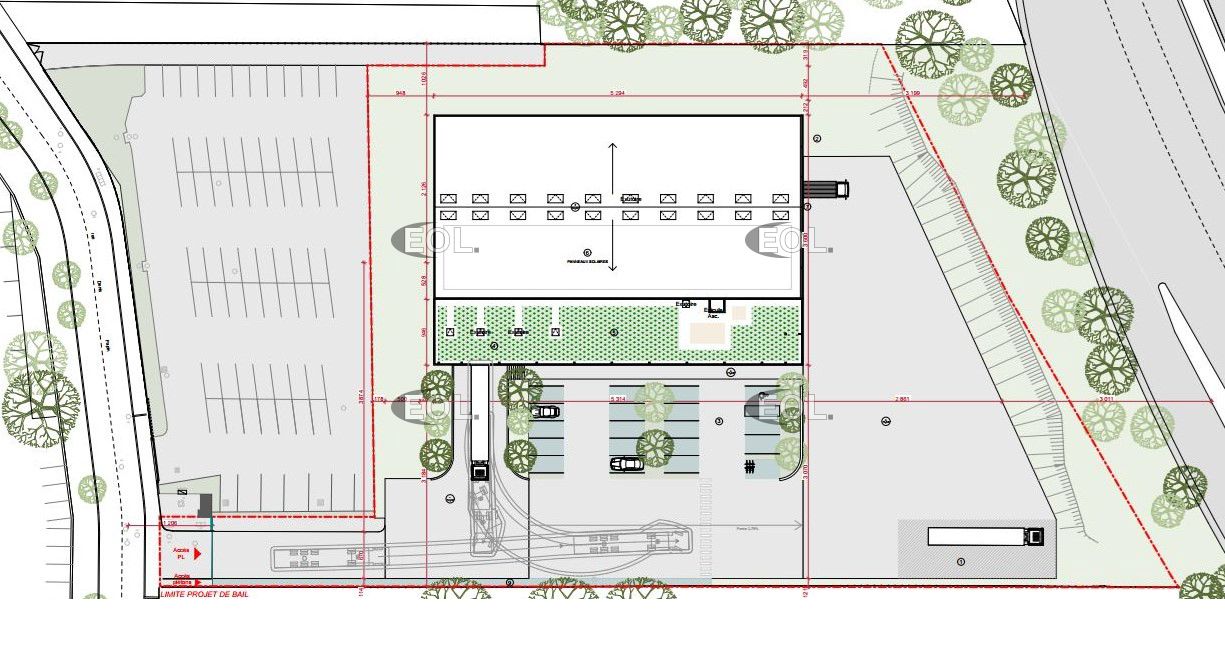
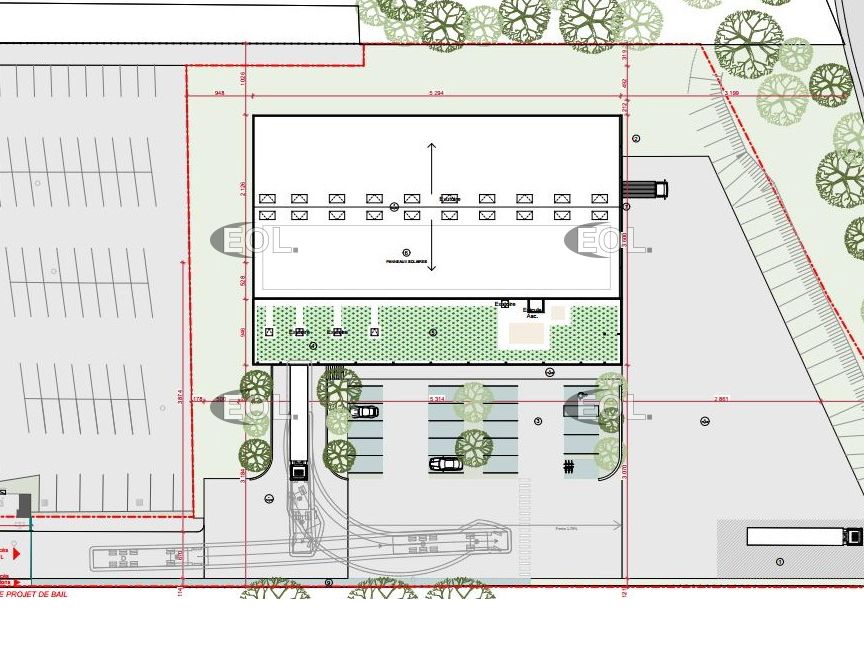
A louer bâtiment neuf indépendant à Chilly Mazarin (91)
EOL vous propose à la location un bâtiment indépendant de 2 000 m² à Chilly Mazarin (91).
Surface approximative du terrain : 7.567 m²
Bâtiment de 2.000 m² répondant à la réglementation applicable (RE2020 pour les bureaux, RT2012 pour lentrepôt, décret BACS).
Entrepôt de 1.609 m² : 54 m par 25 m. Hauteur libre sous charpente 9 m.
Locaux administratifs : 299 m² sur 2 niveaux, 54 m par 9 m, surfaces restantes en entrepôt.
- Dalle quartzée entrepôt 3T/m².
- Bardage double peau.
- VMC double flux, pompe à chaleur, double vitrage.
- Panneaux photovoltaques en toiture prod < 100 KwC.
- Autoconsommation délectricité au bénéfice de lexploitant.
- 1 quai poids lourds H 1,2m avec niveleur.
- 2 quais de plain pied pour véhicules utilitaires.
- Parking 450 m², 18 places, 3 bornes de recharge électrique.
- 2.760 m² de voiries : 10 PL/jour et 200 VUL/jour.
- Bassin de rétention des EP enterré.
Tarif jaune 250 kVA, Gaz de ville sur demande. Pas dactivité soumise à ICPE ni dERP prévus aux Travaux.
Niveau daménagements des bureaux à corréler au loyer (livraison de plateaux sans cloisons).
Remboursement par le Preneur des assurances, charges sur les parties communes, taxes foncières et taxe sur les surfaces de bureaux / commerciales / stationnement par 4
provisions trimestrielles à verser davance : montants non connus à ce jour.
Nous restons à votre disposition pour tout renseignement complémentaire,
Superficies :
Description :
Bâtiment indépendant : oui
Disponibilité : 2027
Caractéristiques :
Type de construction : ossature métallique
Hauteur : jusqu'à 9 m
Charge au sol : 3 t/m²
Couverture : bac acier double peau isolante
Isolation des murs : bardage double peau isolé
Accès de plain pied : 1
Accès à quai : 2
Conditions financières (HT) :
Loyer global HT-HC/an : 275 000 €
Loyer global HT-HC/m²/an : 137,5 €
Charges (HT) & Taxes :
Charges locatives : 0 €/m²
Charges de copropriété : 0 €/m²
EOL vous propose à la location un bâtiment indépendant de 2 000 m² à Chilly Mazarin (91).
Surface approximative du terrain : 7.567 m²
Bâtiment de 2.000 m² répondant à la réglementation applicable (RE2020 pour les bureaux, RT2012 pour lentrepôt, décret BACS).
Entrepôt de 1.609 m² : 54 m par 25 m. Hauteur libre sous charpente 9 m.
Locaux administratifs : 299 m² sur 2 niveaux, 54 m par 9 m, surfaces restantes en entrepôt.
- Dalle quartzée entrepôt 3T/m².
- Bardage double peau.
- VMC double flux, pompe à chaleur, double vitrage.
- Panneaux photovoltaques en toiture prod < 100 KwC.
- Autoconsommation délectricité au bénéfice de lexploitant.
- 1 quai poids lourds H 1,2m avec niveleur.
- 2 quais de plain pied pour véhicules utilitaires.
- Parking 450 m², 18 places, 3 bornes de recharge électrique.
- 2.760 m² de voiries : 10 PL/jour et 200 VUL/jour.
- Bassin de rétention des EP enterré.
Tarif jaune 250 kVA, Gaz de ville sur demande. Pas dactivité soumise à ICPE ni dERP prévus aux Travaux.
Niveau daménagements des bureaux à corréler au loyer (livraison de plateaux sans cloisons).
Remboursement par le Preneur des assurances, charges sur les parties communes, taxes foncières et taxe sur les surfaces de bureaux / commerciales / stationnement par 4
provisions trimestrielles à verser davance : montants non connus à ce jour.
Nous restons à votre disposition pour tout renseignement complémentaire,
Superficies :
Description :
Bâtiment indépendant : oui
Disponibilité : 2027
Caractéristiques :
Type de construction : ossature métallique
Hauteur : jusqu'à 9 m
Charge au sol : 3 t/m²
Couverture : bac acier double peau isolante
Isolation des murs : bardage double peau isolé
Accès de plain pied : 1
Accès à quai : 2
Conditions financières (HT) :
Loyer global HT-HC/an : 275 000 €
Loyer global HT-HC/m²/an : 137,5 €
Charges (HT) & Taxes :
Charges locatives : 0 €/m²
Charges de copropriété : 0 €/m²
| Étage | Type | Surfaces (m²) | Dispo | Parking Ext. | Hauteur ss Plafond |
|---|---|---|---|---|---|
| RDC | activités / bureaux | 1909 | 2027 | 9.00 |
| Fiche technique du bien | |
|---|---|
| Hauteur Sous ferme (m) | 9.00 |
| Type de chauffage | Inconnu |
| Charge au sol (kg/m²) | 3.00 |
| Nombre de quais | 2 |
Voir plus
Afficher les consommations énergétiques
Favoris
Exporter
Appeler
Contacter
Signaler cette annonce










