L’agence CBRE Lille conseille et accompagne les chefs d’entreprise dans leurs projets immobiliers quels que soient leur taille et leur secteur d’activité. Spécialistes de la transaction de bureaux, ...
En savoir plus

1 152 m²
HT HC
Location activité/entrepôt - 1152 m²
Escaudain (59124)
Dernière mise à jour : Il y a 2 jours
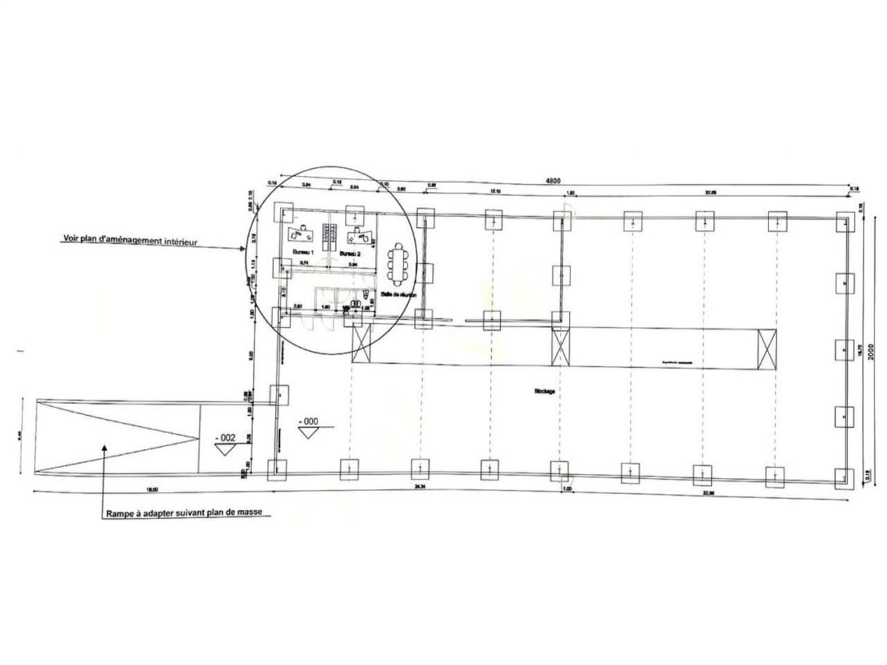
CBRE, spécialiste en immobilier d'entreprise, vous propose à la location un bâtiment d'activités indépendant de 1152m² construit en 2013 sur un terrain d'environ 5500m², au sein de la zone d'activités des 6 Mariannes d'Escaudain. Autoroute A21 à proximité immédiate. Parking VL et PL.. Site entièrement clos et sécurisé (alarme anti-intrusion et vidéosurveillance).
Régime Fiscal : T.V.A.
Dépôt de garantie : 3 mois de loyer HT/HC
Honoraires : 15% HT du loyer annuel HT/HC à la charge du preneur
Prestations :
Accessibilité:
Bus Arrêt "Fosse de Roeulx"
Autoroute À l'intersection des autoroutes A2 (Paris - Bruxelles), A23, A25 et A26 (Valenciennes - Lille - Dunkerque - Calais), A21 (Lens - Valenciennes - Cambrai)
SNCF À une dizaine de minutes de la gare de Valenciennes, qui propose huit liaisons quotidiennes directes vers Lille, Paris et Bruxelles
Route Situé dans un PA à côté de l'A21 et à 2 minutes de l'A2. 15 minutes de Valenciennes, 20 minutes de Cambrai et 40 minutes de Lille.
Les informations sur les risques auxquels ce bien est exposé sont disponibles sur le site Géorisques : www.georisques.gouv.fr
| Étage | Type | Surfaces | Dispo | Loyer | Charges | Type de bailRév. annuelle |
|---|---|---|---|---|---|---|
| RDC | Activités | 768 | Immédiate | 70,62 m²/an HT HC | 3-6-9 ansIndice ILAT | |
| RDC | Activités | 96 | Immédiate | 70,62 m²/an HT HC | 3-6-9 ansIndice ILAT | |
| RDC | Bureaux | 96 | Immédiate | 70,62 m²/an HT HC | 3-6-9 ansIndice ILAT | |
| 1 | Activités | 192 | Immédiate | 70,62 m²/an HT HC | 3-6-9 ansIndice ILAT |
Régime Fiscal : T.V.A.
Dépôt de garantie : 3 mois de loyer HT/HC
Honoraires : 15% HT du loyer annuel HT/HC à la charge du preneur
Prestations :
- Capacité de charge du sol : 25 kN/m²
- R+1 mezzanine de stockage 192m²,
- Capacité de charge : 250kg/m²
- Construction en acier sans pilier
- Dallage : béton armé épaisseur min 15 cm
- Equipements bureaux : câbles d'alimentation, prise de courant et réseau informatique, radiateurs, détection d'incendie
- Fibre optique
- Fenêtres en aluminium avec double vitrage
- Surface d'appui sur la mezzanine
- Chauffage à gaz pour les bureaux et pour l'atelier
- Electricité compteur 3x400V
- Caméras + alarme anti-intrusion et incendie
- Murs coupe-feu constitués de panneaux en béton massif / Murs bureaux intérieurs en BA13
- Parking en béton de +/- 500 m²
- Parking avec gravier de 300 m²
- Surface RDC : 960 m²
- Surface terrain : 0
- Haut. libre max. ss poutre : 5,5 m
- Nbr de portes à quai : 1
- Nbr de portes plain pied : 1
- Couverture : Bac acier isolé étanchéité multicouche
Accessibilité:
Bus Arrêt "Fosse de Roeulx"
Autoroute À l'intersection des autoroutes A2 (Paris - Bruxelles), A23, A25 et A26 (Valenciennes - Lille - Dunkerque - Calais), A21 (Lens - Valenciennes - Cambrai)
SNCF À une dizaine de minutes de la gare de Valenciennes, qui propose huit liaisons quotidiennes directes vers Lille, Paris et Bruxelles
Route Situé dans un PA à côté de l'A21 et à 2 minutes de l'A2. 15 minutes de Valenciennes, 20 minutes de Cambrai et 40 minutes de Lille.
Les informations sur les risques auxquels ce bien est exposé sont disponibles sur le site Géorisques : www.georisques.gouv.fr
Voir plus
Afficher les consommations énergétiques
Favoris
Exporter
Appeler
Contacter
Signaler cette annonce






