Depuis 2003, KEOPS Toulouse accompagne les entreprises dans leurs projets immobiliers sur toute l’aire urbaine toulousaine.Notre équipe de professionnels passionnés met à votre service sa connaissa ...
En savoir plus

572 m²
HT HC
Location activité/entrepôt - 572 m²
Colomiers (31770)
Dernière mise à jour : Hier
Local d'activités et commercial neuf à louer, idéalement situé au coeur de la ZI En Jacca
Régime Fiscal : T.V.A.
Dépôt de garantie : 3 mois de loyer HT HC
Honoraires : 15 % HT du loyer annuel HT HC à la charge du preneur
Prestations :
Accessibilité:
Aéroport Aéroport Toulouse-Blagnac à 15 minutes
Autoroute Par RN124 sortie n° 6 "Colomiers"
Bus Chasse (150, 151)
Les informations sur les risques auxquels ce bien est exposé sont disponibles sur le site Géorisques : www.georisques.gouv.fr
| Étage | Type | Surfaces | Dispo | Loyer | Charges | Type de bailRév. annuelle |
|---|---|---|---|---|---|---|
| Activités | 572 | Immédiate | 123,69 HT HC/ m²/ an | Commercial 3/6/9 ansIndexation ILAT (indice des Loyers et Activités Tertiaires) |
Régime Fiscal : T.V.A.
Dépôt de garantie : 3 mois de loyer HT HC
Honoraires : 15 % HT du loyer annuel HT HC à la charge du preneur
Prestations :
- Sur un site très qualitatif, local d'activités et commercial neuf à louer
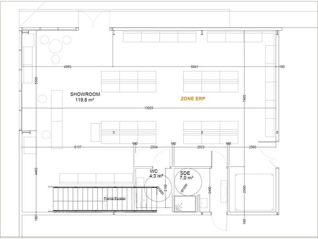
- Une partie showroom ERP de 119 m² avec sanitaires
- Une partie entrepôt de 315 m² avec porte sectionnelle électrique, dalle béton quartz
- Hauteur à 7m
- Une partie bureaux au R+1 de 138 m² avec salle de réunion, 3 bureaux, sanitaires, salle de pause...
- Bâtiment type structure métallique, bardage double peau
- Site clôturé avec portail électrique, activités BtoB déjà installées sur site
- Parking + zone extérieur de stockage de 47 m²
Accessibilité:
Aéroport Aéroport Toulouse-Blagnac à 15 minutes
Autoroute Par RN124 sortie n° 6 "Colomiers"
Bus Chasse (150, 151)
Les informations sur les risques auxquels ce bien est exposé sont disponibles sur le site Géorisques : www.georisques.gouv.fr
Voir plus
Afficher les consommations énergétiques
Localisation et transport aux alentours
Favoris
Exporter
Appeler
Contacter
Signaler cette annonce










