MALSH Realty accompagne les entreprises dans leurs projets immobiliers, qu’il s’agisse de locaux d’activités, de bureaux, de commerces, d’entrepôts ou de terrains. L’agence intervient aussi bien au ...
En savoir plus

3 063 m² divisible dès 54 m²
HT HC
Location activité/entrepôt - 3063 m²
Reyrieux (01600)
Dernière mise à jour : Il y a 25 jours
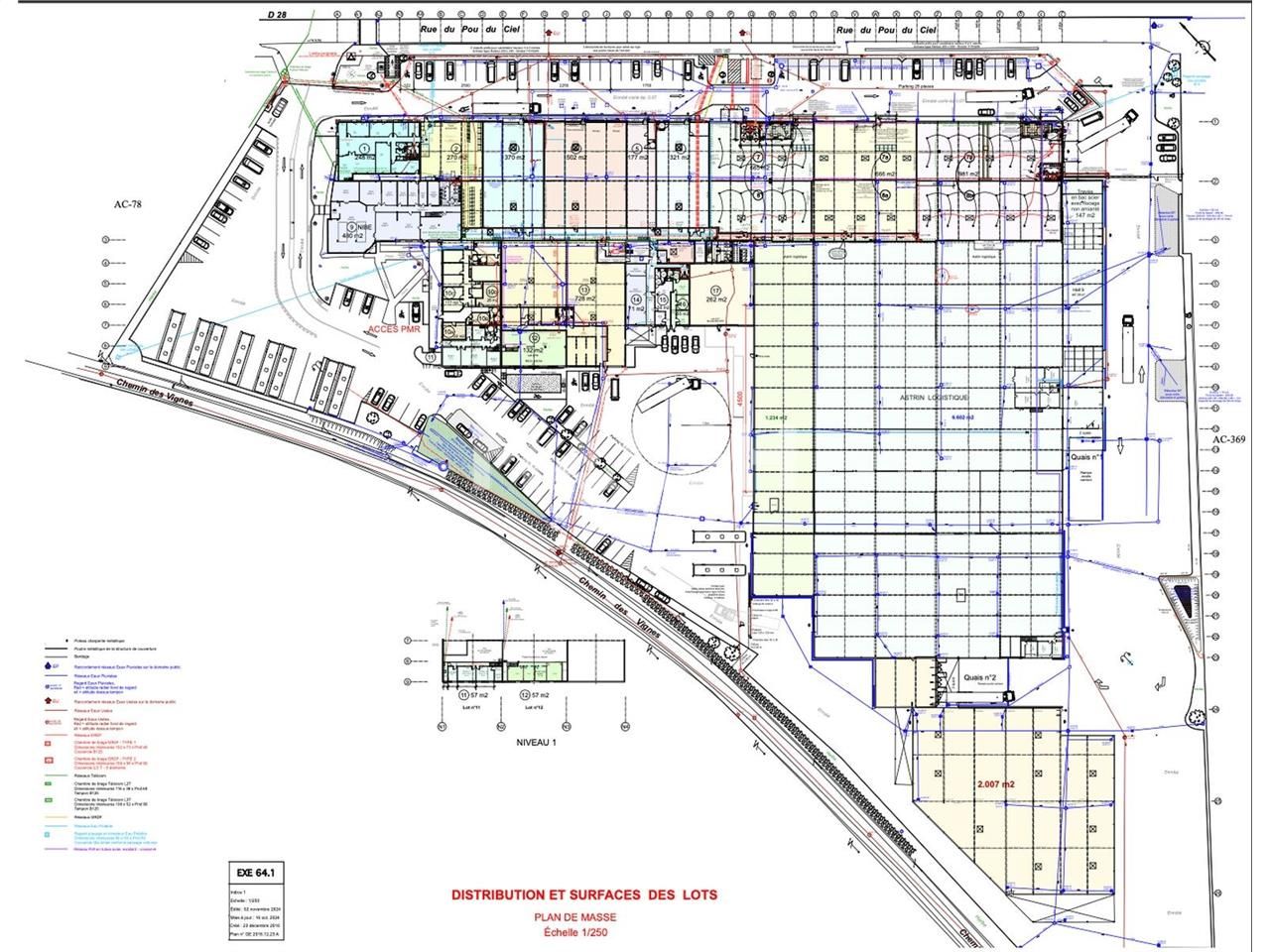
Locaux d'Activités à partir de 272 m² et Bureaux de 54 m² à REYRIEUX - A LOUER
Au sein du Village Entreprises Dombes Saône Vallée, nous vous proposons à la location, plusieurs lots d'activités de plain-pied à partir de 272 m² et un lot de bureaux de 54 m² en RDC.
Excellente visibilité sur la RD28.
Location Locaux d'Activités à partir de 272 m² et Bureaux de 54 m² - Reyrieux (01600)
Régime Fiscal : T.V.A. (20%)
Dépôt de garantie : 3 mois de loyer HT/HC
Honoraires : 20 % HT du loyer annuel HT à la charge du preneur, payables à la signature du bail
Information sur le Bail :
Les charges comprennent l'entretien des parties communes, la consommation des communs, l'eau, et le chauffage de l'atelier Frais de dossier : 150 eurosHT
Prestations :
Accessibilité:
Route Accès par la Rocade Est (A46). Raccordement rapide à l'A6
Les informations sur les risques auxquels ce bien est exposé sont disponibles sur le site Géorisques : www.georisques.gouv.fr
Au sein du Village Entreprises Dombes Saône Vallée, nous vous proposons à la location, plusieurs lots d'activités de plain-pied à partir de 272 m² et un lot de bureaux de 54 m² en RDC.
Excellente visibilité sur la RD28.
Location Locaux d'Activités à partir de 272 m² et Bureaux de 54 m² - Reyrieux (01600)
| Étage | Type | Surfaces | Dispo | Loyer | Charges | Type de bailRév. annuelle |
|---|---|---|---|---|---|---|
| RDC | Activités | 272 | ILAT Indice des Loyers des Activités Tertiaires | |||
| Total Cellule 2 | Activités | 272 | Immédiate | 95,59 HT/HC/m²/an | 1500 HT/an | commercial 3-6-9 ansILAT Indice des Loyers des Activités Tertiaires |
| RDC | Activités | 370 | ILAT Indice des Loyers des Activités Tertiaires | |||
| Total Cellule 3 | Activités | 370 | Immédiate | 67,57 HT/HC/m²/an | 1800 HT/an | commercial 3-6-9 ansILAT Indice des Loyers des Activités Tertiaires |
| RDC | Activités | 666 | ILAT Indice des Loyers des Activités Tertiaires | |||
| 7 | Activités | 666 | Immédiate | 52,55 HT/HC/m²/an | 3000 HT/an | commercial 3-6-9 ansILAT Indice des Loyers des Activités Tertiaires |
| RDC | Activités | 944 | ILAT Indice des Loyers des Activités Tertiaires | |||
| RDC | Bureaux | 23,2 | ILAT Indice des Loyers des Activités Tertiaires | |||
| RDC | Sanitaires | 14 | ILAT Indice des Loyers des Activités Tertiaires | |||
| Total Cellule 7b+8b | Activités | 981,2 | Immédiate | 63,7 HT/HC/m²/an | 4000 HT/an | commercial 3-6-9 ansILAT Indice des Loyers des Activités Tertiaires |
| RDC | Activités | 537 | ILAT Indice des Loyers des Activités Tertiaires | |||
| RDC | Bureaux | 183 | ILAT Indice des Loyers des Activités Tertiaires | |||
| Total Cellule 13 | Activités | 720 | Immédiate | 65,28 HT/HC/m²/an | 3300 HT/an | commercial 3-6-9 ansILAT Indice des Loyers des Activités Tertiaires |
| RDC | Bureaux | 54 | ILAT Indice des Loyers des Activités Tertiaires | |||
| Total Cellule 16 | Bureaux | 54 | Immédiate | 120,37 HT/HC/m²/an | 760 HT/an | commercial 3-6-9 ansILAT Indice des Loyers des Activités Tertiaires |
Régime Fiscal : T.V.A. (20%)
Dépôt de garantie : 3 mois de loyer HT/HC
Honoraires : 20 % HT du loyer annuel HT à la charge du preneur, payables à la signature du bail
Information sur le Bail :
Les charges comprennent l'entretien des parties communes, la consommation des communs, l'eau, et le chauffage de l'atelier Frais de dossier : 150 eurosHT
Prestations :
- Accès de plain-pied / Accès semi
- Porte sectionnelle (3,50 m x 3,50 m)
- Compteurs électrique et eau individuels
- Parkings extérieurs
- Lot 2 :
- Atelier isolé et chauffé par aérothermes gaz (chaudière commune à gaz, compteurs individuels)
- Bureaux : Bungalow
- Sanitaires
- Lot 3 :
- Bureaux et Sanitaires aménagés
- Lots 7a+8a :
- Bureaux à créer
- Sanitaires
Accessibilité:
Route Accès par la Rocade Est (A46). Raccordement rapide à l'A6
Les informations sur les risques auxquels ce bien est exposé sont disponibles sur le site Géorisques : www.georisques.gouv.fr
Voir plus
Afficher les consommations énergétiques
Localisation et transport aux alentours
Favoris
Exporter
Appeler
Contacter
Signaler cette annonce










