A l’appui d’un réseau leader à l’international, I&L Solutions est une équipe de plus de 70 professionnels spécialisés en immobilier Logistique et Industriel au service des investisseurs, des propri ...
En savoir plus

539 m²
HT HC
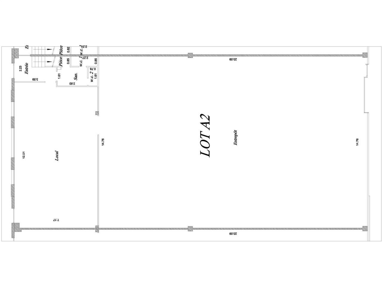
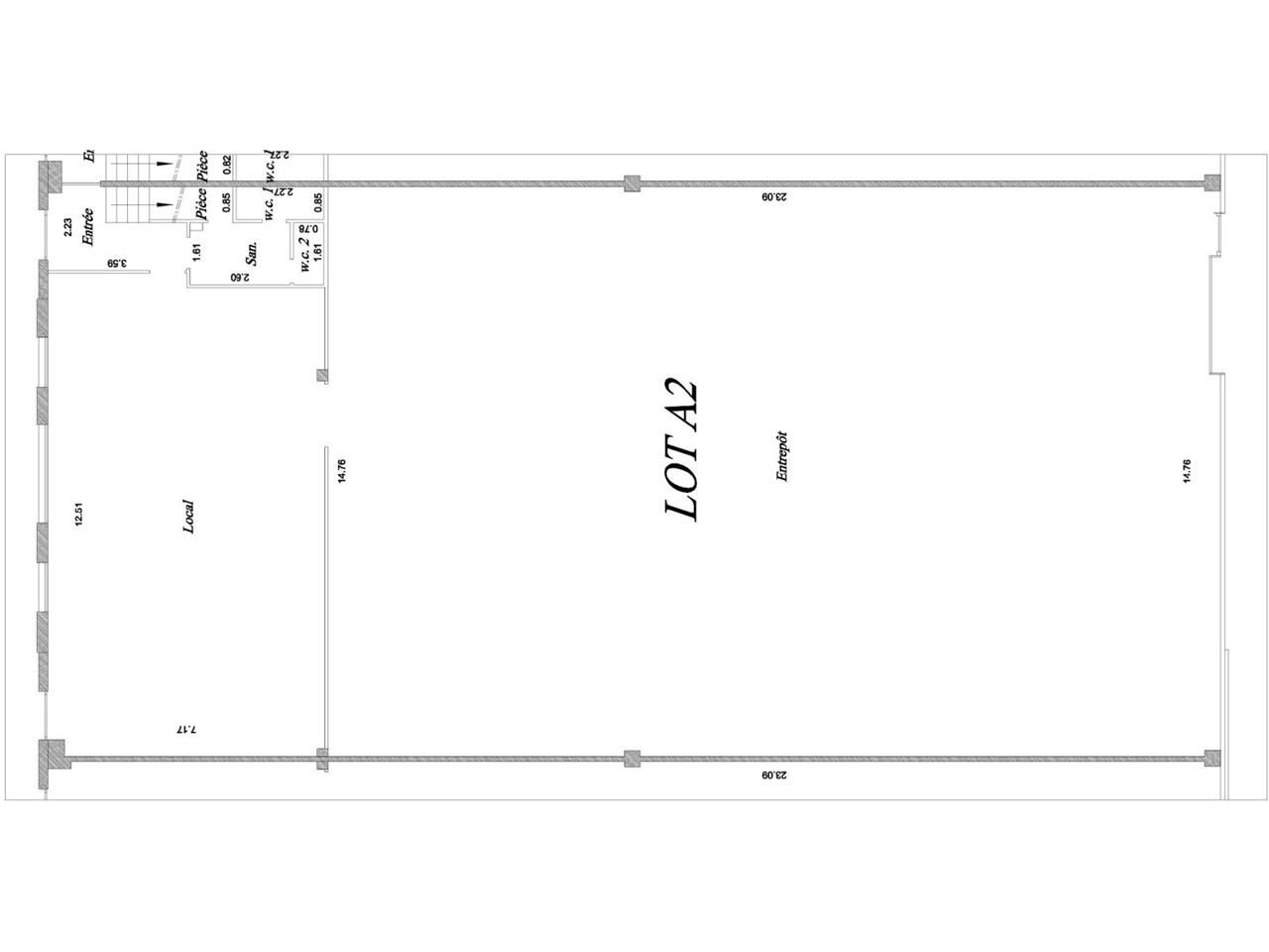
Location activité/entrepôt - 539 m²
Gennevilliers (92230)
Dernière mise à jour : Hier
CBRE vous propose à louer un local d'activités situé sur la commune de Gennevilliers dans le département des Hauts-de-Seine (92), à seulement 4 km de Paris et à proximité immédiate des autoroutes A86 et A15. Ce local industriel dispose d'une belle hauteur sous plafond, d'une porte de plain-pied et de bureaux d'accompagnement. Belle surface de 539 m² non divisibles. Location entrepôt idéal pour le développement de vos activités professionnelles. Bail commercial. Disponibilité immédiate.
Si cet entrepôt/local d'activités à louer dans le 92 vous intéresse ou si vous souhaitez obtenir plus de renseignements, n'hésitez pas à me contacter aujourd'hui pour organiser une visite et bénéficier de toutes les informations nécessaires pour votreprojet immobilier.
En tant qu'expert en immobilier professionnel/industriel, je suis à votre disposition pour vous aider à trouver le bien adapté à vos activités professionnelles et à votre coeur de métier.
Impôt Foncier : 12,84 €/m²/an (2024)
Régime Fiscal : T.V.A.
Dépôt de garantie : 3 mois de loyer HT/HC
Honoraires : 15 % du loyer annuel HT/HC à la charge du preneur
Information sur le Bail :
Taxe sur les bureaux 2023 : 18,72 euros/m²/an HT Taxe sur les parkings 2023 : 87,48 euros/U/an HT PNO2025 : 1,20 euros/m² Loyer Parking : 450 euros/m² HT/HC
Prestations :
Accessibilité:
Bus QUAI DES GRESILLONS (137, 166)
RER Les Grésillons (C)
Autoroute A86 - A1
Metro Les Grésillons (L15 Horizon 2030)
Les informations sur les risques auxquels ce bien est exposé sont disponibles sur le site Géorisques : www.georisques.gouv.fr
Si cet entrepôt/local d'activités à louer dans le 92 vous intéresse ou si vous souhaitez obtenir plus de renseignements, n'hésitez pas à me contacter aujourd'hui pour organiser une visite et bénéficier de toutes les informations nécessaires pour votreprojet immobilier.
En tant qu'expert en immobilier professionnel/industriel, je suis à votre disposition pour vous aider à trouver le bien adapté à vos activités professionnelles et à votre coeur de métier.
| Étage | Type | Surfaces | Dispo | Loyer | Charges | Type de bailRév. annuelle |
|---|---|---|---|---|---|---|
| RDC | Activités | 353 | Immédiate | 150 m²/an HT HC | 6-9-12 ansIndice ILAT | |
| RDC | Bureaux | 93 | Immédiate | 150 m²/an HT HC | 6-9-12 ansIndice ILAT | |
| 1 | Bureaux | 93 | Immédiate | 150 m²/an HT HC | 6-9-12 ansIndice ILAT |
Impôt Foncier : 12,84 €/m²/an (2024)
Régime Fiscal : T.V.A.
Dépôt de garantie : 3 mois de loyer HT/HC
Honoraires : 15 % du loyer annuel HT/HC à la charge du preneur
Information sur le Bail :
Taxe sur les bureaux 2023 : 18,72 euros/m²/an HT Taxe sur les parkings 2023 : 87,48 euros/U/an HT PNO2025 : 1,20 euros/m² Loyer Parking : 450 euros/m² HT/HC
Prestations :
- Site clos, contrôle d'accès sur portails
- Clôtures à barreaux métalliques sur quai des Grésillons
- Voirie lourde pour permettre le passage de poids lourd
- Espaces verts selon les plans de paysagement, bordures et trottoirs.
- 4 emplacements de stationnement
- Résistance au sol : 3T/m²
- 1 porte de plain pied par lot : 3,8 m x 4,5 m
- Murs séparatifs parpaings entre les lots assurant le coupe feux
- Toiture isolante multicouche
- Eclairages par gamelles LED et rampes néon
- Niveau d'éclairage de 150 lux
- Surface RDC : 446 m²
- Surface terrain : 0
- Haut. libre max. ss poutre : 6,75 m
Accessibilité:
Bus QUAI DES GRESILLONS (137, 166)
RER Les Grésillons (C)
Autoroute A86 - A1
Metro Les Grésillons (L15 Horizon 2030)
Les informations sur les risques auxquels ce bien est exposé sont disponibles sur le site Géorisques : www.georisques.gouv.fr
Voir plus
Afficher les consommations énergétiques
Favoris
Exporter
Appeler
Contacter
Signaler cette annonce










