A l’appui d’un réseau leader à l’international, I&L Solutions est une équipe de plus de 70 professionnels spécialisés en immobilier Logistique et Industriel au service des investisseurs, des propri ...
En savoir plus

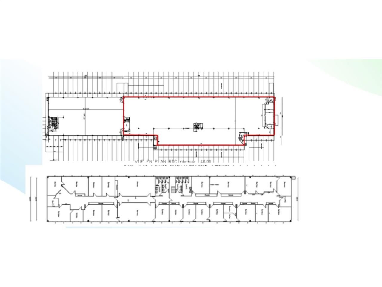
5 955 m² divisible dès 1 706 m²
HT HC
Location activité/entrepôt - 5955 m²
Aulnay-sous-Bois (93600)
Dernière mise à jour : Il y a 4 mois
CBRE vous propose à louer, un local d'activités situé sur la commune d'Aulnay sous bois dans le département de la Seine Saint Denis (93). A proximité immédiate des autoroutes A1, A3, de l'aéroport CDG et de la ligne B du RER d'Ile-de-France. Elle dispose de nombreuses portes à quais. Belle surface de 45955 m² divisibles à partir de 1706 m². Location entrepôt idéal pour le développement de vos activités professionnelles. Bail dérogatoire. Disponible immédiatement.
Si cet entrepôt/local d'activités à louer dans le 93 vous intéresse ou si vous souhaitez obtenir plus de renseignements, n'hésitez pas à me contacter aujourd'hui pour organiser une visite et bénéficier de toutes les informations nécessaires pour votreprojet immobilier.
En tant qu'expert en immobilier professionnel/industriel, je suis à votre disposition pour vous aider à trouver le bien adapté à vos activités professionnelles et à votre coeur de métier.
Impôt Foncier : 10,9 €/m²/an
Régime Fiscal : T.V.A.
Dépôt de garantie : 3 mois de loyer HT/HC
Paiement Loyer : trimestriel
Honoraires : 15% HT du loyer annuel HT/HC à la charge du preneur
Taxe Bureau : 2,12 €/m²/an
Information sur le Bail :
Bail dérogatoire
Prestations :
Accessibilité:
Metro Ligne 5 "Bobigny"
RER Ligne B "Aulnay sous-Bois - Le Blanc Mesnil - Drancy - Le Bourget"
Aeroport à 9 mn de Roissy Charles de Gaulle, à 5 mn du Bourget
SNCF TGV : Gare TGV de l'aéroport de Paris Charles de Gaulle
Tramway Ligne T 4" Aulnay/Bondy"
Bus Lignes : 247 - 350 - 627 - N42 - 148 / Lignes 620 - 609 B , menant au R.E.R. B
Bus Bus / Ligne 7 " La Courneuve" + Bus / ligne 16 prévue en 2024
Autoroute A3 - A1 à proximité immédiate
Les informations sur les risques auxquels ce bien est exposé sont disponibles sur le site Géorisques : www.georisques.gouv.fr
Si cet entrepôt/local d'activités à louer dans le 93 vous intéresse ou si vous souhaitez obtenir plus de renseignements, n'hésitez pas à me contacter aujourd'hui pour organiser une visite et bénéficier de toutes les informations nécessaires pour votreprojet immobilier.
En tant qu'expert en immobilier professionnel/industriel, je suis à votre disposition pour vous aider à trouver le bien adapté à vos activités professionnelles et à votre coeur de métier.
| Étage | Type | Surfaces | Dispo | Loyer | Charges | Type de bailRév. annuelle |
|---|---|---|---|---|---|---|
| RDC | Entrepôts | 3214 | Immédiate | 130 m²/an HT HC | 15,48 HT/m²/an | Indice ILAT |
| RDC | Bureaux | 225 | Immédiate | 130 m²/an HT HC | 15,48 HT/m²/an | Indice ILAT |
| 1 | Bureaux | 810 | Immédiate | 130 m²/an HT HC | 15,48 HT/m²/an | Indice ILAT |
| Total Cellule B et C | Activités | 4249 | Immédiate | 130 m²/an HT HC | 15,48 HT/m²/an | 3-6-9 ansIndice ILAT |
| RDC | Entrepôts | 1501 | Immédiate | 130 m²/an HT HC | 15,48 HT/m²/an | Indice ILAT |
| 1 | Bureaux | 205 | Immédiate | 130 m²/an HT HC | 15,48 HT/m²/an | Indice ILAT |
| Total Cellule A | Activités | 1706 | Immédiate | 130 m²/an HT HC | 15,48 HT/m²/an | 3-6-9 ansIndice ILAT |
Impôt Foncier : 10,9 €/m²/an
Régime Fiscal : T.V.A.
Dépôt de garantie : 3 mois de loyer HT/HC
Paiement Loyer : trimestriel
Honoraires : 15% HT du loyer annuel HT/HC à la charge du preneur
Taxe Bureau : 2,12 €/m²/an
Information sur le Bail :
Bail dérogatoire
Prestations :
- 26 quais PL
- 30 quais VUL
- 1 rampe
- STRUCTURE :
- Profondeur : 27 m à 35 m
- Dimension des portes : H 3,10 m x l 3,45 m
- EQUIPEMENTS :
- Accès à quai VUL et PL (dont 3 niveleurs)
- Rampe d'accès
- Bureau de quai
- Détection incendie et RIA
- Chauffage bureaux : par eau chaude
- SERVICES :
- PC sécurité incendie GARONOR 24h/24 7j/7
- Property Management sur zone
- Brasserie et hôtels sur site
- Services administratifs sur place : douanes, médecine du travail, etc.
- Surface RDC : 4940 m²
- Surface terrain : 0
- Haut. libre min. ss poutre : 4,63 m
- Haut. libre max. ss poutre : 5,78 m
- Résistance sol : 5 T/m²
- ICPE :
- Autorisations : 1510
- Ossature : Métallique
Accessibilité:
Metro Ligne 5 "Bobigny"
RER Ligne B "Aulnay sous-Bois - Le Blanc Mesnil - Drancy - Le Bourget"
Aeroport à 9 mn de Roissy Charles de Gaulle, à 5 mn du Bourget
SNCF TGV : Gare TGV de l'aéroport de Paris Charles de Gaulle
Tramway Ligne T 4" Aulnay/Bondy"
Bus Lignes : 247 - 350 - 627 - N42 - 148 / Lignes 620 - 609 B , menant au R.E.R. B
Bus Bus / Ligne 7 " La Courneuve" + Bus / ligne 16 prévue en 2024
Autoroute A3 - A1 à proximité immédiate
Les informations sur les risques auxquels ce bien est exposé sont disponibles sur le site Géorisques : www.georisques.gouv.fr
Voir plus
Afficher les consommations énergétiques
Favoris
Exporter
Appeler
Contacter
Signaler cette annonce










