Au travers de 45 ans d'expérience, 45 collaborateurs, son réseau de 4 sites de proximité sur la Lorraine nord : Metz, Briey, Thionville et Norroy-le-Veneur, DUMUR IMMOBILIER s’est positionné comme ...
En savoir plus

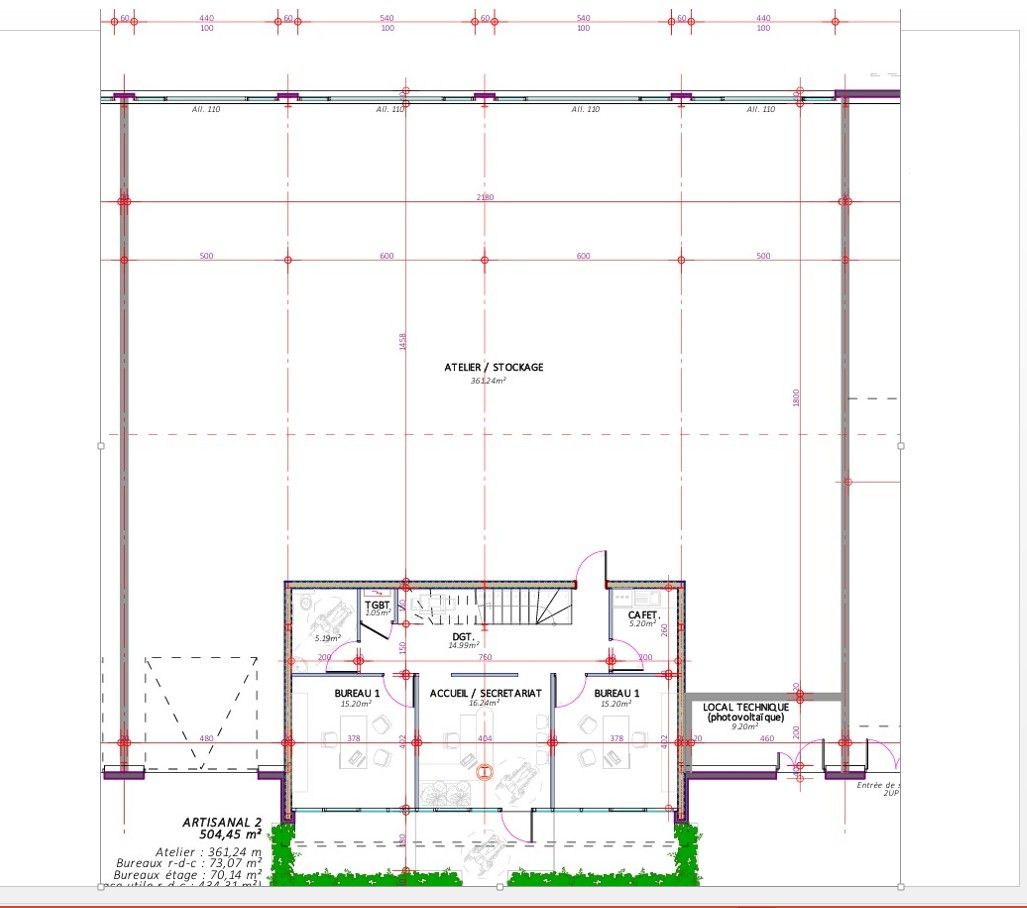
504 m²
HT HC
Location activité/entrepôt - 504 m²
Semécourt (57280)
Dernière mise à jour : Il y a 2 jours
METZ NORD, VAL EUROMOSELLE, LOCAL D'ACTIVITES NEUF A LOUER DE 504 M² AVEC BELLE VISIBILITE
IDEALEMENT PLACE LE LONG DE LA ROUTE DEPARTEMENTALE 1
- L'ensemble sera livré brut de béton, gaines de fluides en attente
- Le bâtiment sera isolé, il disposera d'une dalle béton et d'une porte sectionnelle camion.
- Possibilité de création de bureaux selon besoin rez-de-chaussée et en mezzanine.
- Le site est clos et sécurisé, l'ensemble propose 30 places de parking dont 6 PMR
- Dernière disponibilité !
Immédiate
Situation:
VAL EUROMOSELLE SUD, SEMECOURT, ZONE D''ACTIVITES RECONNUE PAR LES ENTREPRISES . A 2 minutes d''accès des autoroutes A4 et A31 . Un bassin d''emploi et un tissu d''entreprises dynamiques . Tous les services et commerces de la zone commerciale Auchan Semécourt à moins de 2 minutes ( hôtels, restaurants, matériaux professionnels) . Les informations sur les risques auxquels ce bien est exposé sont disponibles sur le site Géorisques : WWW.GEORISQUES.GOUV.FR
IDEALEMENT PLACE LE LONG DE LA ROUTE DEPARTEMENTALE 1
- L'ensemble sera livré brut de béton, gaines de fluides en attente
- Le bâtiment sera isolé, il disposera d'une dalle béton et d'une porte sectionnelle camion.
- Possibilité de création de bureaux selon besoin rez-de-chaussée et en mezzanine.
- Le site est clos et sécurisé, l'ensemble propose 30 places de parking dont 6 PMR
- Dernière disponibilité !
Immédiate
Situation:
VAL EUROMOSELLE SUD, SEMECOURT, ZONE D''ACTIVITES RECONNUE PAR LES ENTREPRISES . A 2 minutes d''accès des autoroutes A4 et A31 . Un bassin d''emploi et un tissu d''entreprises dynamiques . Tous les services et commerces de la zone commerciale Auchan Semécourt à moins de 2 minutes ( hôtels, restaurants, matériaux professionnels) . Les informations sur les risques auxquels ce bien est exposé sont disponibles sur le site Géorisques : WWW.GEORISQUES.GOUV.FR
Voir plus
Afficher les consommations énergétiques
Localisation et transport aux alentours
Favoris
Exporter
Appeler
Contacter
Signaler cette annonce

