MALSH Realty accompagne les entreprises dans leurs projets immobiliers, qu’il s’agisse de locaux d’activités, de bureaux, de commerces, d’entrepôts ou de terrains. L’agence intervient aussi bien au ...
En savoir plus

360 m²
HT HC
Location activité/entrepôt - 360 m²
Chassieu (69680)
Dernière mise à jour : Hier
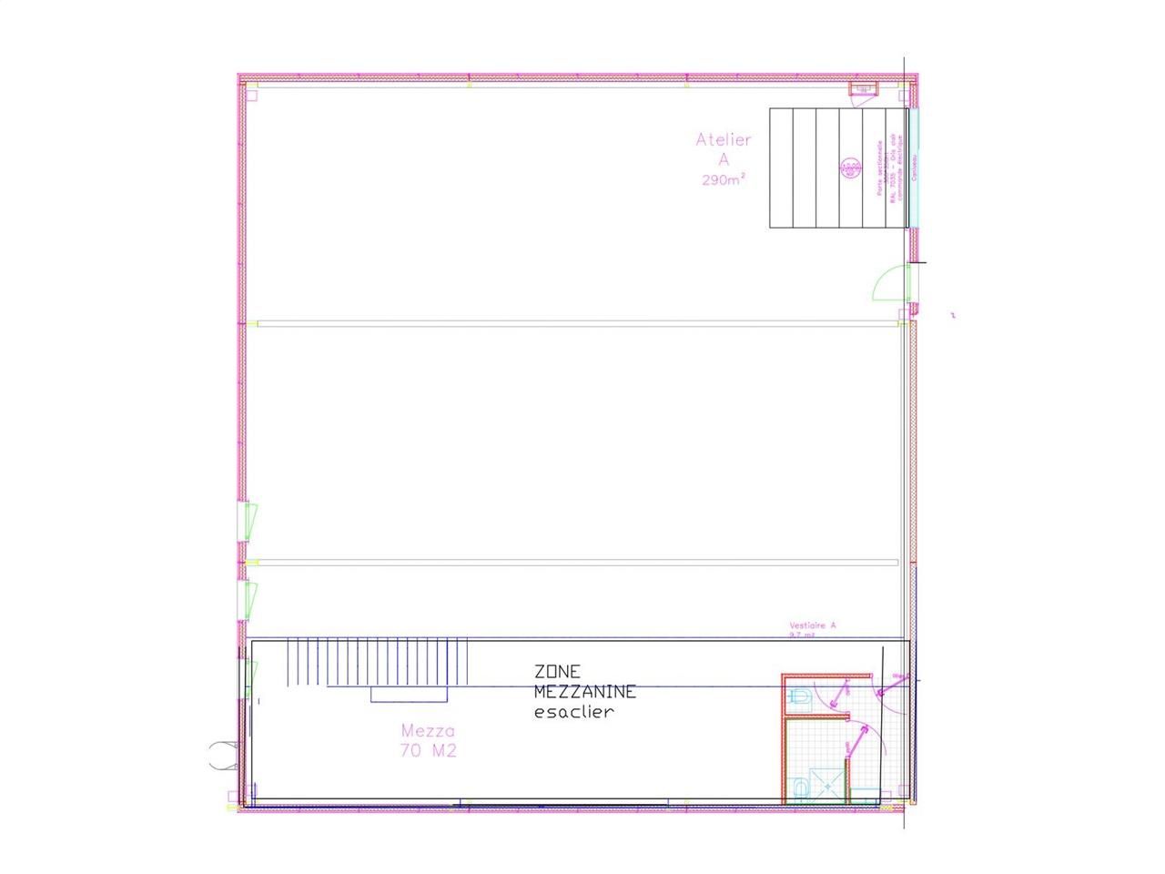
Local d'Activités neuf à CHASSIEU - A LOUER - 360 m²
Nous vous proposons à la location, un local d'activités neuf d'une surface totale d'environ 360 m² comprenant une mezzanine de 70 m² aménageable en bureaux en fonction de vos besoins, une grande porte sectionnelle et une accessibilité poids lourds. Ce local bénéficie de 5 places de parking privatives. Idéalement situé à proximité des grands axes routiers et autoroutiers au coeur de la ZI Mi-Plaine.
Location Local d'Activités neuf - Chassieu (69680) - 360 m²
Impôt Foncier : 9 €/HT/m²/an
Régime Fiscal : T.V.A. (20%)
Dépôt de garantie : 3 mois de loyer HT/HC
Honoraires : 15 % HT du loyer annuel HT/HC à la charge du preneur, payables à la signature du bail
Prestations :
Accessibilité:
Autoroute A proximité de l'A43 et de la Rocade Est (A46)
Bus Bus TCL lignes 76 et Zi5 à proximité immédiate
Les informations sur les risques auxquels ce bien est exposé sont disponibles sur le site Géorisques : www.georisques.gouv.fr
Nous vous proposons à la location, un local d'activités neuf d'une surface totale d'environ 360 m² comprenant une mezzanine de 70 m² aménageable en bureaux en fonction de vos besoins, une grande porte sectionnelle et une accessibilité poids lourds. Ce local bénéficie de 5 places de parking privatives. Idéalement situé à proximité des grands axes routiers et autoroutiers au coeur de la ZI Mi-Plaine.
Location Local d'Activités neuf - Chassieu (69680) - 360 m²
| Étage | Type | Surfaces | Dispo | Loyer | Charges | Type de bailRév. annuelle |
|---|---|---|---|---|---|---|
| Mezzanine | 70 | ILAT Indice des Loyers des Activités Tertiaires | ||||
| RDC | Activités | 290 | ILAT Indice des Loyers des Activités Tertiaires | |||
| Parkings | ILAT Indice des Loyers des Activités Tertiaires | |||||
| Total Cellule A2 | Activités | 360 | Immédiate | 97,22 HT/HC/m²/an | 4 HT/m²/an | commercial 3-6-9 ansILAT Indice des Loyers des Activités Tertiaires |
Impôt Foncier : 9 €/HT/m²/an
Régime Fiscal : T.V.A. (20%)
Dépôt de garantie : 3 mois de loyer HT/HC
Honoraires : 15 % HT du loyer annuel HT/HC à la charge du preneur, payables à la signature du bail
Prestations :
- Accès de plain-pied / Accès semi
- Portes sectionnelle électrique (3 m x 3,5 m)
- 5 places de parking extérieures
- Charpente métallique
- Hauteur sous poutre max : 6 m
- Structure : bardage double peau
- Isolation
- Sol : dalle industrielle
- Tarif bleu
- Sanitaires
- Mezzanine aménageable en bureaux en fonction de vos besoins
Accessibilité:
Autoroute A proximité de l'A43 et de la Rocade Est (A46)
Bus Bus TCL lignes 76 et Zi5 à proximité immédiate
Les informations sur les risques auxquels ce bien est exposé sont disponibles sur le site Géorisques : www.georisques.gouv.fr
Voir plus
Afficher les consommations énergétiques
Localisation et transport aux alentours
Favoris
Exporter
Appeler
Contacter
Signaler cette annonce
