Située dans le 3ème arrondissement de Lyon au 15 rue des Cuirassiers, notre agence compte environ 35 collaborateurs expérimentés pour vous accompagner tout au long de la mise en œuvre de votre proj ...
En savoir plus

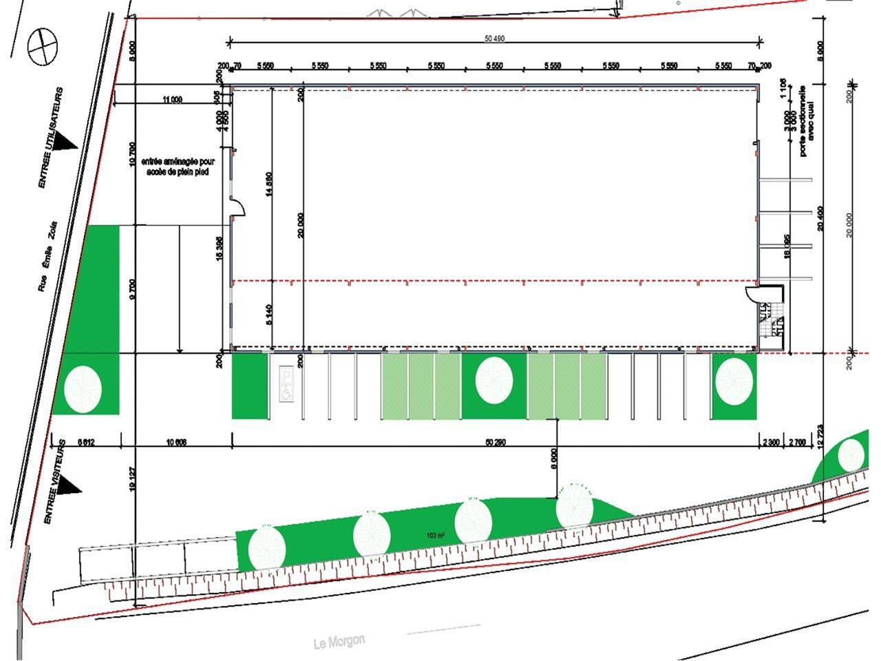
Activité/Entrepôt à vendre - 1250 m²
Implanté au sein de l'Actiparc d'Emile, ce local se situe dans un environnement économique dynamique, au nord de la métropole lyonnaise. La commune de Villefranche-sur-Saône, chef-lieu du Beaujolais, constitue un pôle d'activités majeur, combinant développement industriel, tertiaire et logistique. Sa localisation stratégique entre Lyon et Mcon en fait une adresse particulièrement attractive pour les entreprises souhaitant s'implanter dans le Rhône.
L'Actiparc d'Emile regroupe un ensemble d'entreprises variées issues des secteurs de la production, du transport, de la distribution et des services aux professionnels. Ce parc d'activités, moderne et bien aménagé, offre un cadre propice au développement des sociétés de toutes tailles, dans un environnement fonctionnel et connecté.
Ce local d'activité bénéficie d'un accès direct à l'autoroute A6 (sortie Villefranche-sur-Saône Sud), reliant rapidement Lyon, Paris et Mcon, du réseau TER Auvergne-Rhône-Alpes et de lignes de bus.
Disponibilité: 5 mois après accordHonoraires: Nous consulter. à la signature de l'acte
| Fiche technique du bien | |
|---|---|
| Desserte routière | A6-D504-D306-D44-A46 |
| Gare | de Villefranche/Saône à 5min |
| Parking(s) | 30 Places |
| Fluides en attente | Type de livraison : locaux bruts |
| Autre élément bureau | Options : Bureaux et locaux sociaux Mezzanine |
| Charpente | Métallique / Béton |
| Hauteur libre | 7,50 mètre(s) minimum |
