BNP Paribas Real Estate Lille, qui revendique plus de 40 ans de présence sur le marché lillois, est composé d''une équipe expérimentée aux expertises diversifiées. Elle est principalement composée ...
En savoir plus



Location activité/entrepôt - 1820 m²
Installer vos locaux à Roncq présente plusieurs avantages. La ville de Roncq bénéficie d'une situtation géographique stratégique, proche des grands axes routiers et des frontières internationales.
Roncq dispose d'infrastructures modernes et d'un tissu économique dynamique, avec de nombreuses entreprises déjà implantée.
Ce site, ancien site industriel totalement repensé et transformé, s'adapte aux besoins actuels des futurs preneurs.
Après une rénovation profonde, le Parc des Lions est un très beau site modulable et flexible, qui propose des surfaces d'activité et de bureaux ajustables pour répondre aux besoins de l'utilisateur. Il est également possible de regrouper plusieurs cellules.
Chaque lot dispose d'une porte sectionnelle ce qui permet aux véhicules de livraison (tels que les camions et les fourgonnettes), de se garer directement devant les portes de l'entrepôt et ainsi faciliter le chargement et le déchargement.
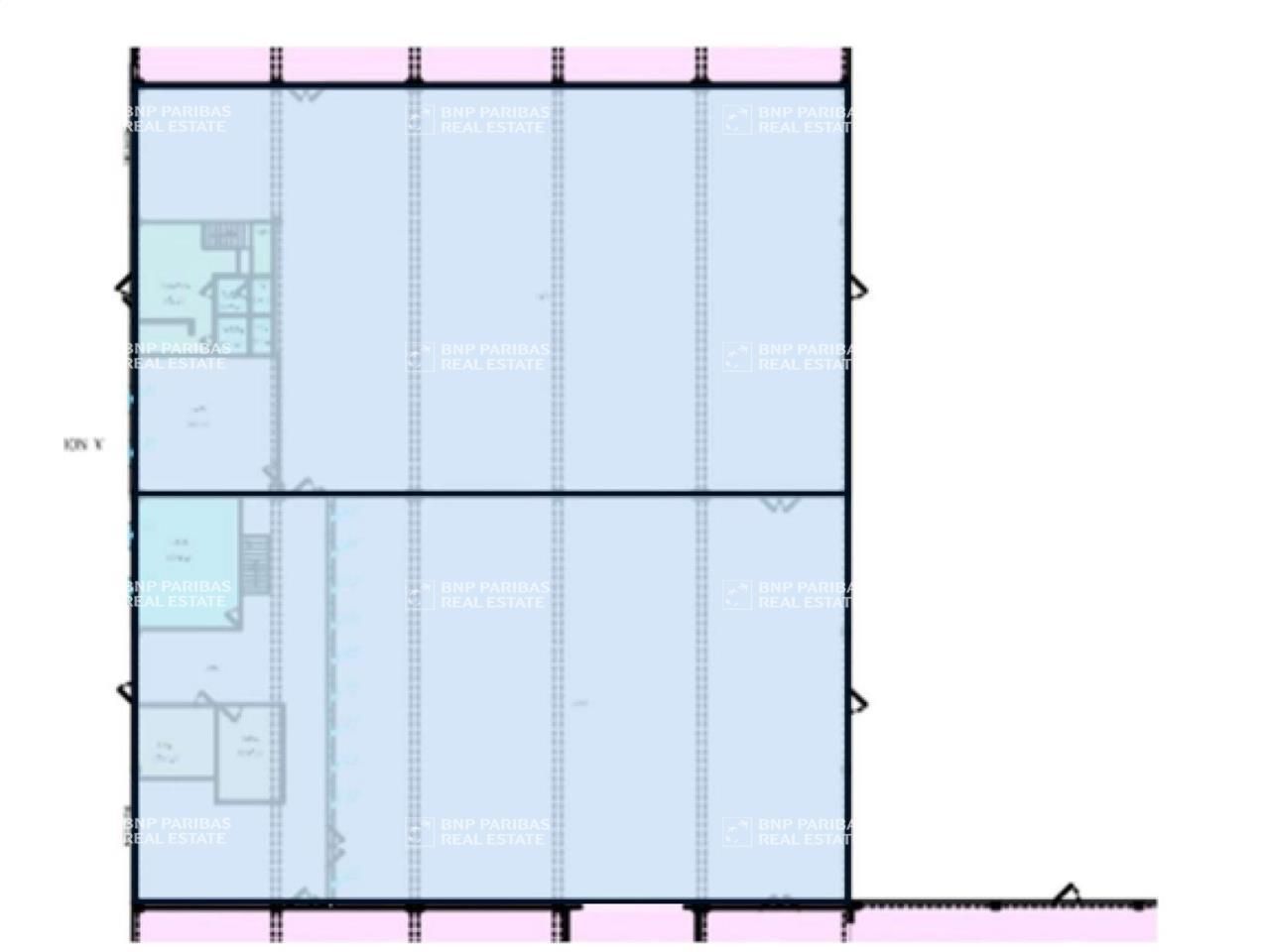
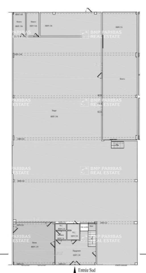
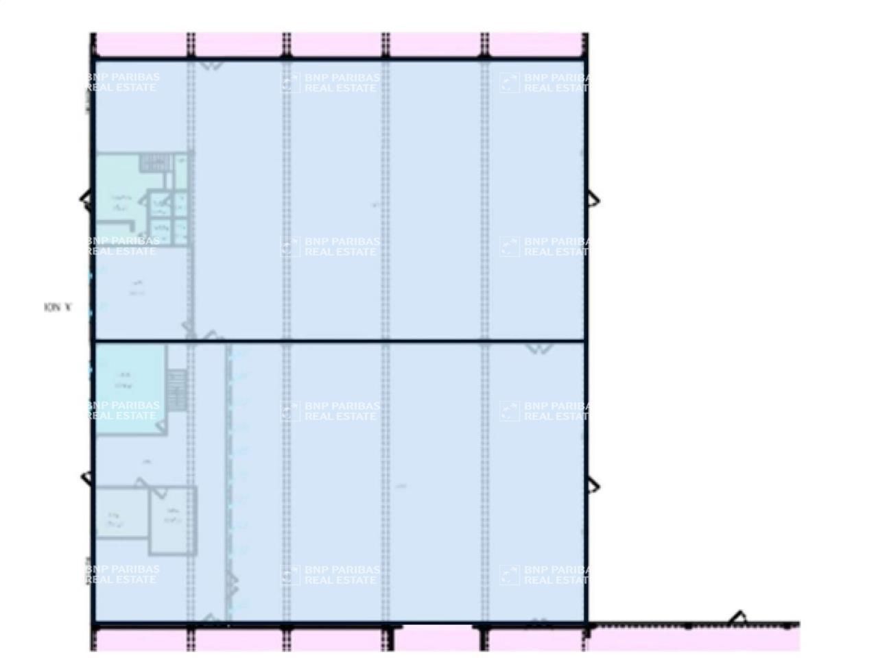
Dans ce contexte, BNPPRE vous propose à la location 3 cellules d'activités :
Lot 14
Surface disponible : 699 m²
Bureaux : 565 m²
Entrepôt : 134 m²
Loyer annuel hors taxes hors charges : 65 000 € HT/HC/an
Lot 2
Surface disponible : 593 m²
Entrepôt : 463 m² + Bureau 130 m²
Loyer annuel hors taxes hors charges : 57 400 € HT/HC/an
Lot 3
Surface disponible : 528 m²
Bureaux : 130 m²
Entrepôt : 463 m²
Loyer annuel hors taxes hors charges : 47 000 € HT/HC/an
Disponibilité immédiate
Contactez nous pour réserver votre espace dans notre btiment d'activité. Une opportunité à ne pas manquer pour donner un nouvel élan à votre entreprise !
Besoin d'un local industriel/ artisanal, d'un entrepôt ou d'un foncier à louer ou à vendre dans le Nord Pas de Calais ? Nos solutions de location et de vente de surfaces industrielles, de hangars ou de cellules de stockage dans la métropole lilloise répondent à vos attentes. Découvrez nos surfaces/ offres et installez vous rapidement au sein de votre futur parc d'activités.
Toutes nos offres sur https://www.bnppre.fr/local-activite/nord-59/
Disponibilité: ImmédiateHonoraires: 15% HT du loyer HT/HC. à la signature du bail
| Fiche technique du bien | |
|---|---|
| Métro | ligne 2 Station "Colbert" (ligne M2) à 20 min en bus et 13 min en vélo 3 m |
| Bus | Arrêt "Parc de Lions" à 12 min à pied - Lignes : L4, L91E, 850 m |
| Desserte routière | Accès rapide à l'Autoroute A22, sortie n°16 2 km |
| Source chauffage | Electrique |
| Climatisation | Réversible |
| Enseignes à proximité | CC AuShopping Promenade des Flandres |
| Hall d'accueil | Oui |
| Câblage informatique | Oui |
| Sol bureaux | Moquette |
| Plinthes techniq.périphériques | Oui |
| Sanitaire(s) | Oui |
| Autre élément bureau | Chauffage electrique |
| Charpente | Béton |
| Couverture | Bac acier isolé multicouches |
| Murs | Béton Béton gravier lavé et bardage double peau laqué au 1er étage |
| Sols du bâtiment | Béton |
| Hauteur libre | 5,00 mètre(s) |
| Porte(s) d'accès plain-pied | 1 par lot |
| Eclairage intérieur | Néon Zénithal, trappes de désenfumage |
Surfaces divisibles : 5
| Surface | LoyerHT/HC/m²/an | Étage / Batiment | Infos complémentaires |
| 565 m² | N.C | 0 | LOT 14 |
| 134 m² | N.C | 0 | LOT 14 |
| 528 m² | N.C | RDC | LOT 3 |
| 130 m² | N.C | RDC | LOT 2 |
| 463 m² | N.C | RDC | LOT 2 |
