MCarré Conseil est une agence spécialiste de l'immobilier d’entreprise du sud de l’Île-de-France (en Essonne et dans le sud de la Seine-et-Marne et du Val-De-Marne). Elle vous accompagne à chaque é ...
En savoir plus



528 m²
HT HC
Location activité/entrepôt - 528 m²
Marolles-en-Hurepoix (91630)
Dernière mise à jour : Il y a 2 jours
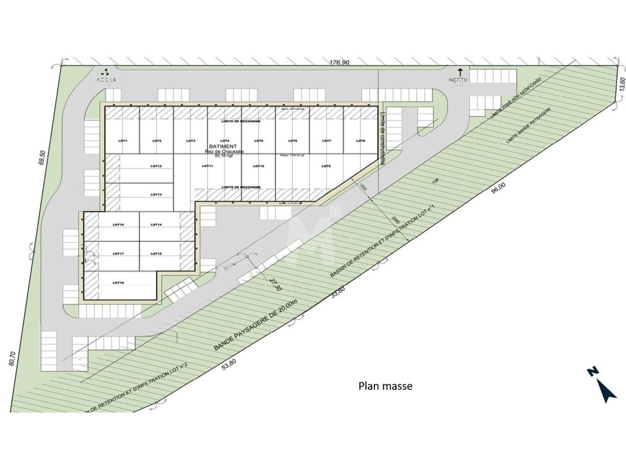
Au sein d'un parc d'activité PME/PMI bénéficiant d'une bonne visibilité sur la RD 19, nous vous proposons à l'acquisition ou à la location le dernier lot disponible à usage d'activité avec bureaux d'accompagnement.
Au sein d'un programme neuf labellisé Biodivercity répondant aux normes RT2012, développant au total 5 017 m² à usage d'activité avec bureaux d'accompagnement, sur une parcelle de 15 614 m² entièrement close et sécurisée.
Impôt Foncier : 5308 €/HT/an
Régime Fiscal : TVA
Dépôt de garantie : 3 mois de loyer HT HC
Information sur le Bail :
Loyer annuel : 66 000 euros HT/HC
Prestations :
Accessibilité:
Route Nationale 20
Route Départementale 19
RER Marolles en Hurepoix (C)
Bus Lignes 2271/2276
Les informations sur les risques auxquels ce bien est exposé sont disponibles sur le site Géorisques : www.georisques.gouv.fr
Au sein d'un programme neuf labellisé Biodivercity répondant aux normes RT2012, développant au total 5 017 m² à usage d'activité avec bureaux d'accompagnement, sur une parcelle de 15 614 m² entièrement close et sécurisée.
| Étage | Type | Surfaces | Dispo | Loyer | Charges | Type de bailRév. annuelle |
|---|---|---|---|---|---|---|
| MEZ | Bureaux | 121 | 01/10/2023 | Indice ILAT | ||
| Rdc | Activités | 407 | 01/10/2023 | Indice ILAT | ||
| Total Cellule LOT 11 | Activités | 528 | Immédiate | 125 m²/an HT HC | 7 HT/m²/an | 3/6/9 ansIndice ILAT |
| Parkings | Indice ILAT |
Impôt Foncier : 5308 €/HT/an
Régime Fiscal : TVA
Dépôt de garantie : 3 mois de loyer HT HC
Information sur le Bail :
Loyer annuel : 66 000 euros HT/HC
Prestations :
- Site entièrement clôturé avec deux portails d'accès motorisés sur horloge
- Voirie lourde (10 PL/jour)
- 102 places de stationnement en evergreen
- BUREAUX :
- Climatisation réversible
- Hauteur sous faux-plafond : 2,50 m / hauteur sous mezzanine : 3,4 m
- Plinthes à deux compartiments en périphérie
- Fibre optique
- Sanitaires PMR au RDC
- ACTIVITÉ :
- Immeuble indépendant
- Surface RDC : 407 m²
- Surface terrain : 15614
- Haut. libre max. ss poutre : 6,55 m
- Résistance sol : 3 T/m²
- Equipements entrepôts : Destratificateur
Eclairage LED par gamelles industrielles
Dalle béton finition quartz
Robinet de puisage avec syphon de sol
Tarif jaune 48 KVA - Chauffage : Aérothermes électriques
- Ossature : Métallique
- Murs périmétriques : Double bardage
Accessibilité:
Route Nationale 20
Route Départementale 19
RER Marolles en Hurepoix (C)
Bus Lignes 2271/2276
Les informations sur les risques auxquels ce bien est exposé sont disponibles sur le site Géorisques : www.georisques.gouv.fr
Voir plus
Afficher les consommations énergétiques
Localisation et transport aux alentours
Favoris
Exporter
Appeler
Contacter
Signaler cette annonce









