A l’appui d’un réseau leader à l’international, I&L Solutions est une équipe de plus de 70 professionnels spécialisés en immobilier Logistique et Industriel au service des investisseurs, des propri ...
En savoir plus

702 m²
HT HC
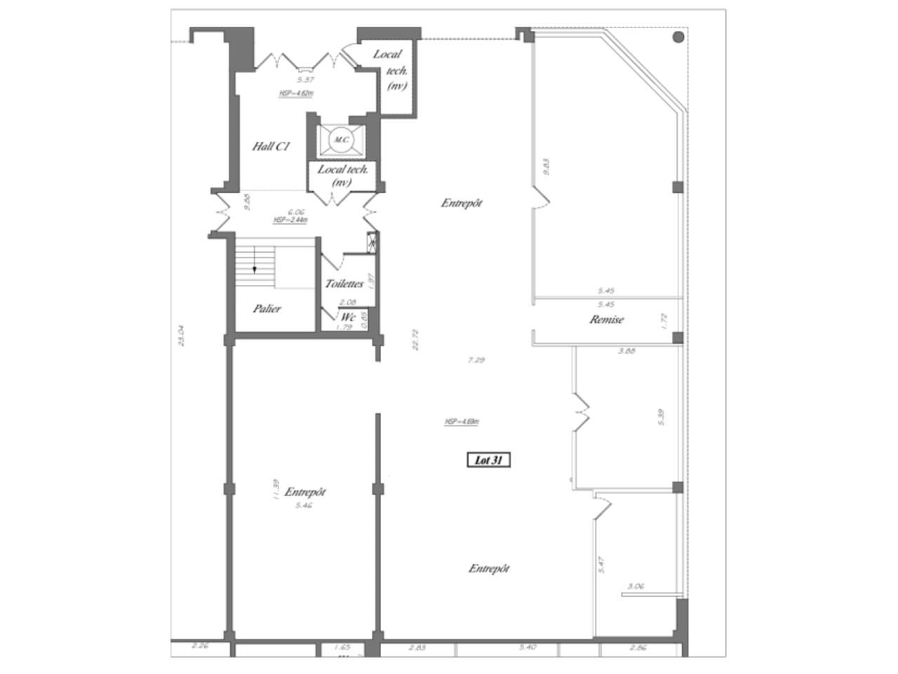
Location activité/entrepôt - 702 m²
Gennevilliers (92230)
Dernière mise à jour : Hier
CBRE vous propose à louer, un local dans un parc d'activités situé sur la commune de Gennevilliers dans le département des Hauts-de-Seine (92). À proximité immédiate de l'autoroute A86, sur la ligne C du RER d'Île-de-France. Ce local industriel est édifié sur un site clos et sécurisé, dispose d'une porte de plain pied et d'emplacements de parking. Belle surface de 702 m² non divisibles. Location entrepôt idéal pour le développement de vos activités professionnelles. Bail commercial. Disponible immédiatement.
Si cet entrepôt/local d'activités à louer dans le 92 vous intéresse ou si vous souhaitez obtenir plus de renseignements, n'hésitez pas à me contacter aujourd'hui pour organiser une visite et bénéficier de toutes les informations nécessaires pour votreprojet immobilier.
En tant qu'expert en immobilier professionnel/industriel, je suis à votre disposition pour vous aider à trouver le bien adapté à vos activités professionnelles et à votre coeur de métier.
Impôt Foncier : 15,14 €/m²/an
Régime Fiscal : T.V.A.
Dépôt de garantie : 3 mois de loyer HT/HC
Honoraires : 15% HT du loyer annuel HT/HC à la charge du preneur
Taxe Bureau : 17,38 €/m²/an
Information sur le Bail :
Charges : 13% du loyer annuel HT/HC Taxe parking : 81 euros/U/an HT
Prestations :
Accessibilité:
RER Les Grésillons (C)
Bus Quatre chemins (137, 166), Quai des Grésillons (177)
Metro Mairie de Saint Ouen (13)
Autoroute A86
Route D7
Les informations sur les risques auxquels ce bien est exposé sont disponibles sur le site Géorisques : www.georisques.gouv.fr
Si cet entrepôt/local d'activités à louer dans le 92 vous intéresse ou si vous souhaitez obtenir plus de renseignements, n'hésitez pas à me contacter aujourd'hui pour organiser une visite et bénéficier de toutes les informations nécessaires pour votreprojet immobilier.
En tant qu'expert en immobilier professionnel/industriel, je suis à votre disposition pour vous aider à trouver le bien adapté à vos activités professionnelles et à votre coeur de métier.
| Étage | Type | Surfaces | Dispo | Loyer | Charges | Type de bailRév. annuelle |
|---|---|---|---|---|---|---|
| RDC | Activités | 364 | Immédiate | 3-6-9 ansIndice ILAT | ||
| RDC | Usage Mixte | 45 | Immédiate | 3-6-9 ansIndice ILAT | ||
| 1 | Bureaux | 266 | Immédiate | 3-6-9 ansIndice ILAT | ||
| 1 | Usage Mixte | 27 | Immédiate | 3-6-9 ansIndice ILAT |
Impôt Foncier : 15,14 €/m²/an
Régime Fiscal : T.V.A.
Dépôt de garantie : 3 mois de loyer HT/HC
Honoraires : 15% HT du loyer annuel HT/HC à la charge du preneur
Taxe Bureau : 17,38 €/m²/an
Information sur le Bail :
Charges : 13% du loyer annuel HT/HC Taxe parking : 81 euros/U/an HT
Prestations :
- Site clos et sécurisé
- 17 places de parking
- Surface RDC : 409 m²
- Surface terrain : 0
- Résistance sol : 3 T/m²
- Equipements entrepôts : . Hauteur sous-plafond 3,80 m
- Chauffage : Gaz, Aérotherme
Accessibilité:
RER Les Grésillons (C)
Bus Quatre chemins (137, 166), Quai des Grésillons (177)
Metro Mairie de Saint Ouen (13)
Autoroute A86
Route D7
Les informations sur les risques auxquels ce bien est exposé sont disponibles sur le site Géorisques : www.georisques.gouv.fr
Voir plus
Afficher les consommations énergétiques
Favoris
Exporter
Appeler
Contacter
Signaler cette annonce










