Conseil en immobilier d'entreprise, Cushman & Wakefield est un acteur incontournable au rayonnement international. Cushman & Wakefield offre des solutions dans toutes les étapes que comporte un p ...
En savoir plus

276 m²
Loyer sur demande
MONT BLANC - Location activité/entrepôt - 276 m²
Évry (91000)
Dernière mise à jour : Il y a 2 jours
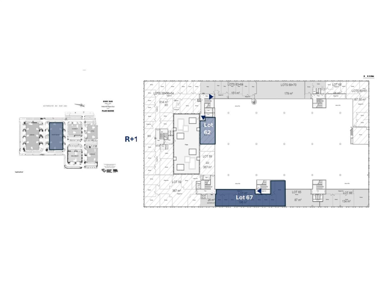
MILEWAY PARKS - MONT BLANC
Immeuble MONT BLANC
Activités de 276 m² non divisibles à Louer à EVRY-COURCOURONNES
Impôt Foncier : 25,27 €/
Dépôt de garantie : 3 mois de loyer HT/HC
Honoraires : à la charge du preneur
Taxe Bureau : 4,96 €/m²/an
Information sur le Bail :
Paiement des loyers et charges par terme à échoir Assurance : 1.74 euros/m² Loyer parties communes : 110 euros/m²
Prestations :
Accessibilité:
A 35 minutes de l'aéroport d'Orly
A l'intersection de la Francilienne (A104) et de l'A6
RER Evry Courcouronnes (RER D)
SNCFliaison directe avec la Gare de Lyon
Bus RATP n°403, 405, 415 (corresp. avec le RER
Les informations sur les risques auxquels ce bien est exposé sont disponibles sur le site Géorisques : www.georisques.gouv.fr
Immeuble MONT BLANC
Activités de 276 m² non divisibles à Louer à EVRY-COURCOURONNES
| Étage | Type | Surfaces | Dispo | Loyer | Charges | Type de bailRév. annuelle |
|---|---|---|---|---|---|---|
| 1 | Bureaux | 196 | 164,8 HT/HC/m²/an | 18,36 HT/m²/an | 3-6-9 ans | |
| 1 | Bureaux | 80 | 164,8 HT/HC/m²/an | 18,36 HT/m²/an | 3-6-9 ans |
Impôt Foncier : 25,27 €/
Dépôt de garantie : 3 mois de loyer HT/HC
Honoraires : à la charge du preneur
Taxe Bureau : 4,96 €/m²/an
Information sur le Bail :
Paiement des loyers et charges par terme à échoir Assurance : 1.74 euros/m² Loyer parties communes : 110 euros/m²
Prestations :
- HSP : 4.20 m et 7 m sous poutres
- 2 accès portes camions
- Bureaux cloisonnés
- Chauffage collectif au gaz par radiateur ou aérothermes
- 29 m² de parties communes
- Parc sécurisé avec accès contrôlés
Accessibilité:
A 35 minutes de l'aéroport d'Orly
A l'intersection de la Francilienne (A104) et de l'A6
RER Evry Courcouronnes (RER D)
SNCFliaison directe avec la Gare de Lyon
Bus RATP n°403, 405, 415 (corresp. avec le RER
Les informations sur les risques auxquels ce bien est exposé sont disponibles sur le site Géorisques : www.georisques.gouv.fr
Voir plus
Afficher les consommations énergétiques
Localisation et transport aux alentours
Favoris
Exporter
Appeler
Contacter
Signaler cette annonce










