A l’appui d’un réseau leader à l’international, I&L Solutions est une équipe de plus de 70 professionnels spécialisés en immobilier Logistique et Industriel au service des investisseurs, des propri ...
En savoir plus

1 240 m²
HT HC
Location activité/entrepôt - 1240 m²
Éragny (95610)
Dernière mise à jour : Il y a 2 jours
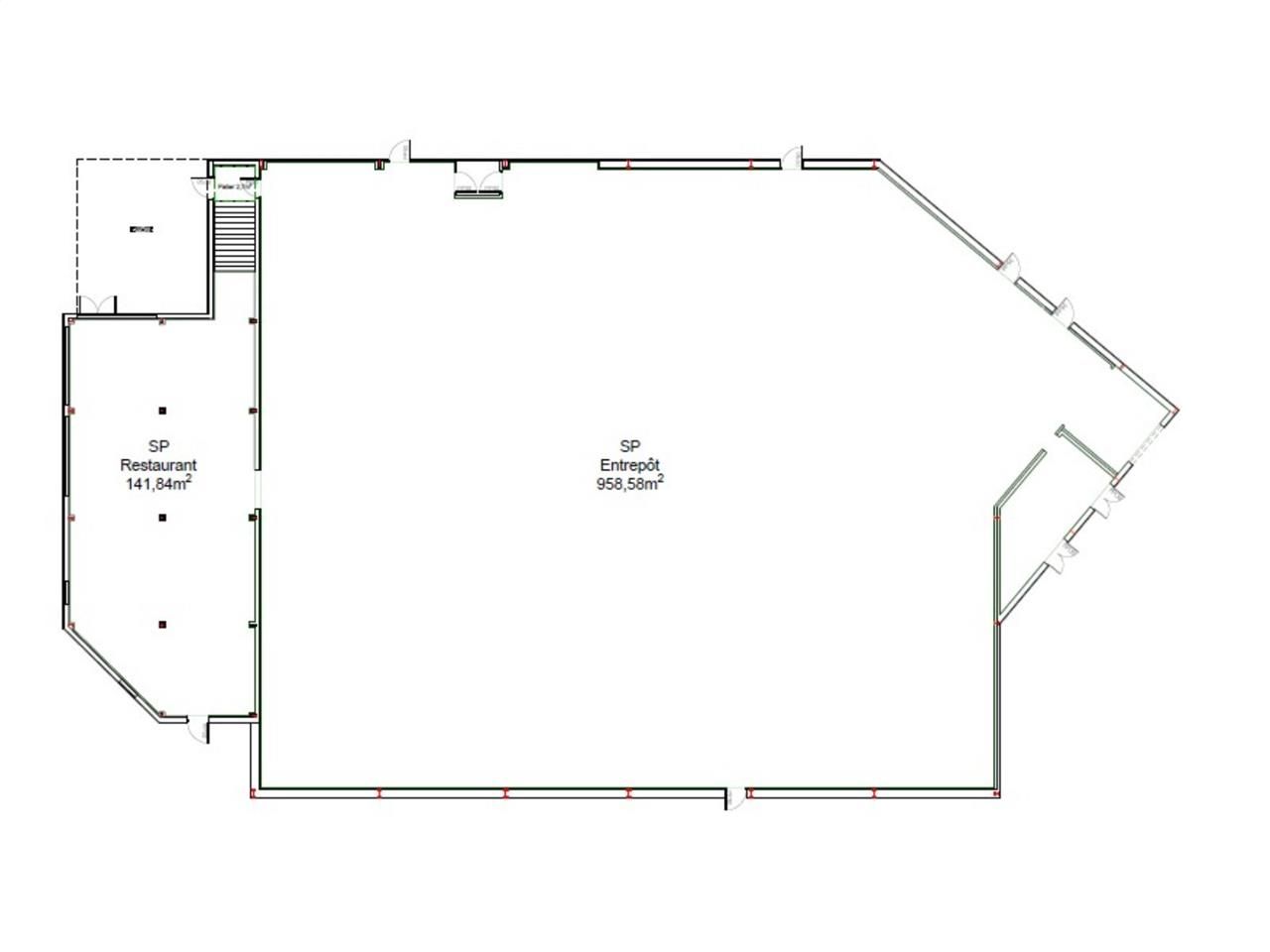
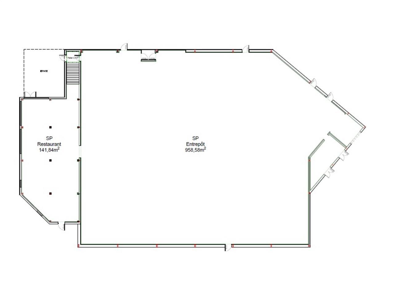
CBRE vous propose à louer, un bâtiment indépendant d'activités situé sur la commune d'Eragny-sur-Oise dans le département du Val d'Oise (95). A proximité de l'autoroute A15, de la nationale N184 et sur les lignes C et A du RER d'Ile-de-France. Il dispose de chambres froides et de surfaces de stockages, de bureaux. Bénéficiant d'une très belle visibilité commerciale. Ce local d'activités dispose aussi de deux portes de plain-pied, d'une porte à quai et de nombreux emplacements de parking. Ce bâtiment peut être aménagé en fonction des besoins de l'utilisateur et les chambres froides converties en un grand espace de stockage ou pour du retail. Accessibilité gros porteurs. Belle surface de 1 240 m² non divisibles. Location entrepôt idéal pour le développement de vos activités professionnelles. Bail commercial. Disponible immédiatement.
Si cet entrepôt/local d'activités à louer dans le 95 vous intéresse ou si vous souhaitez obtenir plus de renseignements, n'hésitez pas à me contacter aujourd'hui pour organiser une visite et bénéficier de toutes les informations nécessaires pour votreprojet immobilier.
En tant qu'expert en immobilier professionnel/industriel, je suis à votre disposition pour vous aider à trouver le bien adapté à vos activités professionnelles et à votre coeur de métier.
Régime Fiscal : T.V.A.
Dépôt de garantie : 3 mois de loyer HT/HC
Honoraires : 15% HT du loyer annuel HT/HC à la charge du preneur
Prestations :
Accessibilité:
Transilien St-Ouen-l'Aumône-Église (J), Cergy Préfecture (L), St-Ouen-l'Aumône-Liesse (H)
RER Cergy Préfecture (A), St-Ouen-l'Aumône-Liesse (C)
Autoroute A15
Route N184
Les informations sur les risques auxquels ce bien est exposé sont disponibles sur le site Géorisques : www.georisques.gouv.fr
Si cet entrepôt/local d'activités à louer dans le 95 vous intéresse ou si vous souhaitez obtenir plus de renseignements, n'hésitez pas à me contacter aujourd'hui pour organiser une visite et bénéficier de toutes les informations nécessaires pour votreprojet immobilier.
En tant qu'expert en immobilier professionnel/industriel, je suis à votre disposition pour vous aider à trouver le bien adapté à vos activités professionnelles et à votre coeur de métier.
| Étage | Type | Surfaces | Dispo | Loyer | Charges | Type de bailRév. annuelle |
|---|---|---|---|---|---|---|
| RDC | Activités | 959 | Immédiate | 90 m²/an HT HC | 3-6-9 ansIndice ILAT | |
| RDC | Usage Mixte | 142 | Immédiate | 90 m²/an HT HC | 3-6-9 ansIndice ILAT | |
| 1 | Bureaux | 139 | Immédiate | 90 m²/an HT HC | 3-6-9 ansIndice ILAT |
Régime Fiscal : T.V.A.
Dépôt de garantie : 3 mois de loyer HT/HC
Honoraires : 15% HT du loyer annuel HT/HC à la charge du preneur
Prestations :
- 30 places de parking
- Immeuble indépendant
- Surface RDC : 1101 m²
- Surface terrain : 3343
- Accès bâtiment :
. Gros porteurs - Nbr de portes à quai : 1
Accessibilité:
Transilien St-Ouen-l'Aumône-Église (J), Cergy Préfecture (L), St-Ouen-l'Aumône-Liesse (H)
RER Cergy Préfecture (A), St-Ouen-l'Aumône-Liesse (C)
Autoroute A15
Route N184
Les informations sur les risques auxquels ce bien est exposé sont disponibles sur le site Géorisques : www.georisques.gouv.fr
Voir plus
Afficher les consommations énergétiques
Favoris
Exporter
Appeler
Contacter
Signaler cette annonce










