L’agence CBRE Lyon conseille et accompagne les chefs d’entreprise dans leurs projets immobiliers quels que soient leur taille et leur secteur d’activité. Spécialistes de la transaction de bureaux, ...
En savoir plus

3 959 m²
HT HC
Location activité/entrepôt - 3959 m²
Caluire-et-Cuire (69300)
Dernière mise à jour : Il y a 2 jours
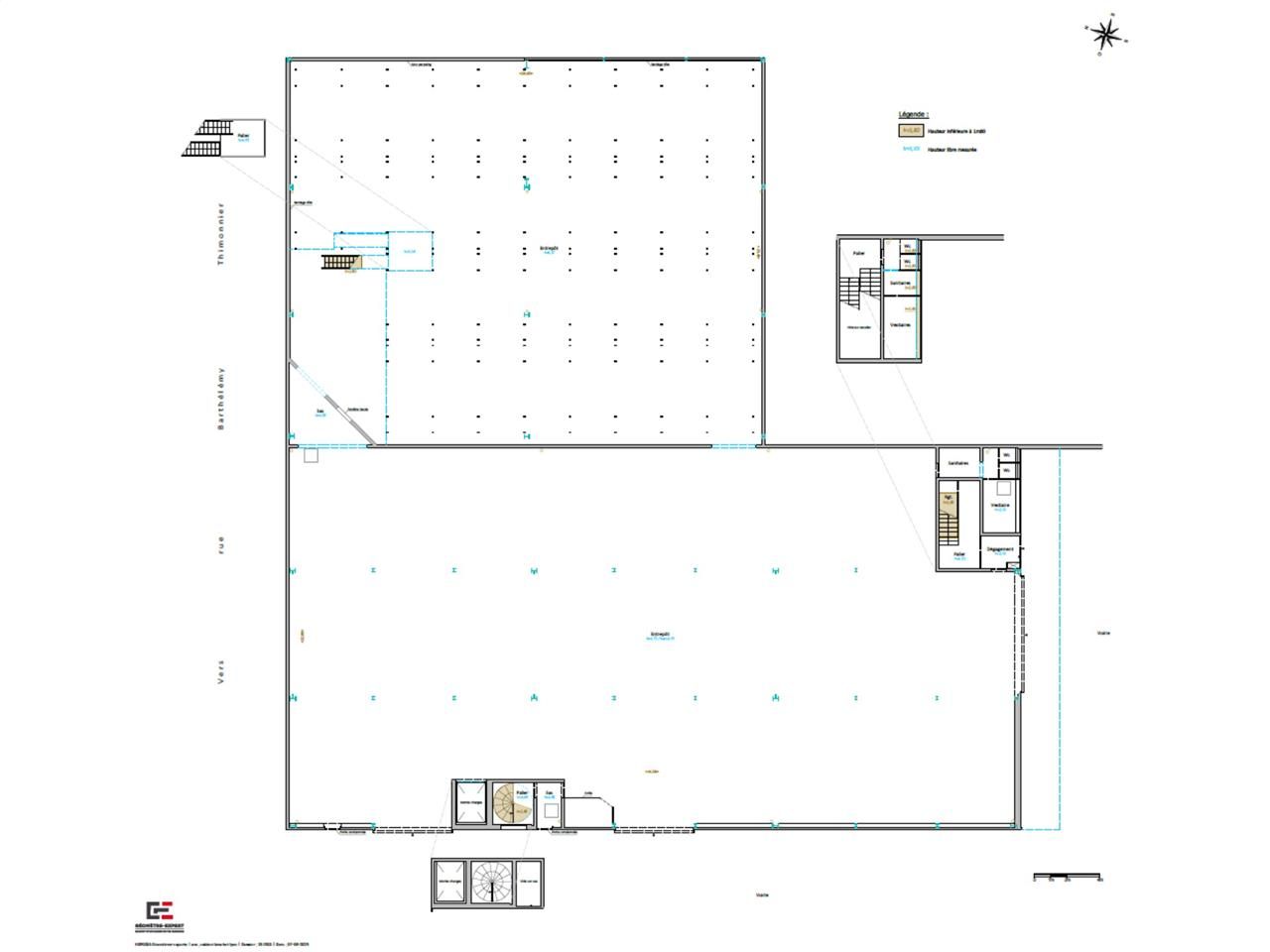
Dans un parc d'activités très proche de Lyon et des accès routiers (périphériques, autoroutes), nous vous proposons, à la location et à la vente, à CALUIRE ET CUIRE, un local d'activités de 3 375 m² avec des espaces bureaux aménagés. Idéal pour les activités de négoce et distribution. Division envisageable : nous consulter
Situé à 20 min du pôle multimodal de la Part-Dieu et de ses transports en communs, la zone d'activité Perica avec son emplacement en première couronne et son excellente accessibilité à la rocade Est (A46) en fait une zone économique dynamique et à fort potentiel.
Impôt Foncier : 20500 €/HT/an
Régime Fiscal : T.V.A.
Dépôt de garantie : 3 mois de loyer HT/HC
Paiement Loyer : trimestriel
Honoraires : 20 % HT du loyer annuel HT/HC à la charge du preneur
Information sur le Bail :
Charges annuelles : 7 000 euros HT
Prestations :
Accessibilité:
Route Rocade Est de Lyon à 2 km
Route Boulevard périphérique Nord permettant de rejoindre l'A42 (Bourg/Genève), l'A43 (aéroport St-Exupéry/Grenoble/Chambéry) et l'A46 (Paris/Marseille)
Bus Bus TCL : lignes 59 et 41, reliant le parc relais Part-Dieu (métro ligne B, direction parc relais Gerland
Les informations sur les risques auxquels ce bien est exposé sont disponibles sur le site Géorisques : www.georisques.gouv.fr
Situé à 20 min du pôle multimodal de la Part-Dieu et de ses transports en communs, la zone d'activité Perica avec son emplacement en première couronne et son excellente accessibilité à la rocade Est (A46) en fait une zone économique dynamique et à fort potentiel.
| Étage | Type | Surfaces | Dispo | Loyer | Charges | Type de bailRév. annuelle |
|---|---|---|---|---|---|---|
| RDC | Activités | 1690 | Immédiate | 46 m²/an HT HC | Indice ILAT | |
| Etage | Activités | 1515 | Immédiate | 46 m²/an HT HC | Indice ILAT | |
| Etage | Bureaux | 170 | Immédiate | 46 m²/an HT HC | Indice ILAT | |
| Total Cellule | Activités | 3375 | Immédiate | 46 m²/an HT HC | 3-6-9 ansIndice ILAT | |
| Etage | Bureaux | 584 | Immédiate | 40 m²/an HT HC | Indice ILAT |
Impôt Foncier : 20500 €/HT/an
Régime Fiscal : T.V.A.
Dépôt de garantie : 3 mois de loyer HT/HC
Paiement Loyer : trimestriel
Honoraires : 20 % HT du loyer annuel HT/HC à la charge du preneur
Information sur le Bail :
Charges annuelles : 7 000 euros HT
Prestations :
- Construction : 1970
- ACTIVITE :
- Bâtiment traversant.
- Charpente métallique.
- Isolation.
- Dalle industrielle.
- Chauffage gaz par aérothermes.
- Triphasé.
- BUREAUX :
- Cloisonnés.
- Faux-plafonds.
- Climatisation + chauffage collectif gaz.
- Arrivées téléphoniques et câblage informatique.
- 2 grands show-room.
- Sanitaires, réfectoire.
- ACCES :
- Accès poids lourds et camionnettes.
- 3 portes sectionnelles accès PL de plain-pied.
- Cour de déchargement.
- Parking : nombreuses places de stationnement.
- Surface RDC : 1690 m²
Accessibilité:
Route Rocade Est de Lyon à 2 km
Route Boulevard périphérique Nord permettant de rejoindre l'A42 (Bourg/Genève), l'A43 (aéroport St-Exupéry/Grenoble/Chambéry) et l'A46 (Paris/Marseille)
Bus Bus TCL : lignes 59 et 41, reliant le parc relais Part-Dieu (métro ligne B, direction parc relais Gerland
Les informations sur les risques auxquels ce bien est exposé sont disponibles sur le site Géorisques : www.georisques.gouv.fr
Voir plus
Afficher les consommations énergétiques
Favoris
Exporter
Appeler
Contacter
Signaler cette annonce






