Avec près de 80 implantations en France, Arthur Loyd est le premier Réseau National de Conseil en Immobilier d’Entreprise. Nous vous accompagnons dans vos projets sur l’ensemble du territoire natio ...
En savoir plus

439 m²
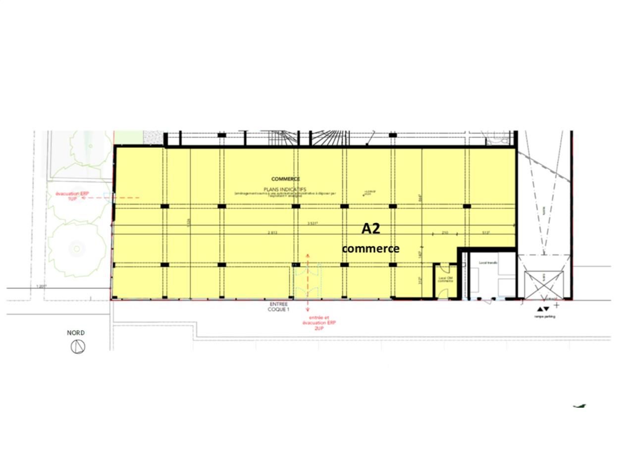
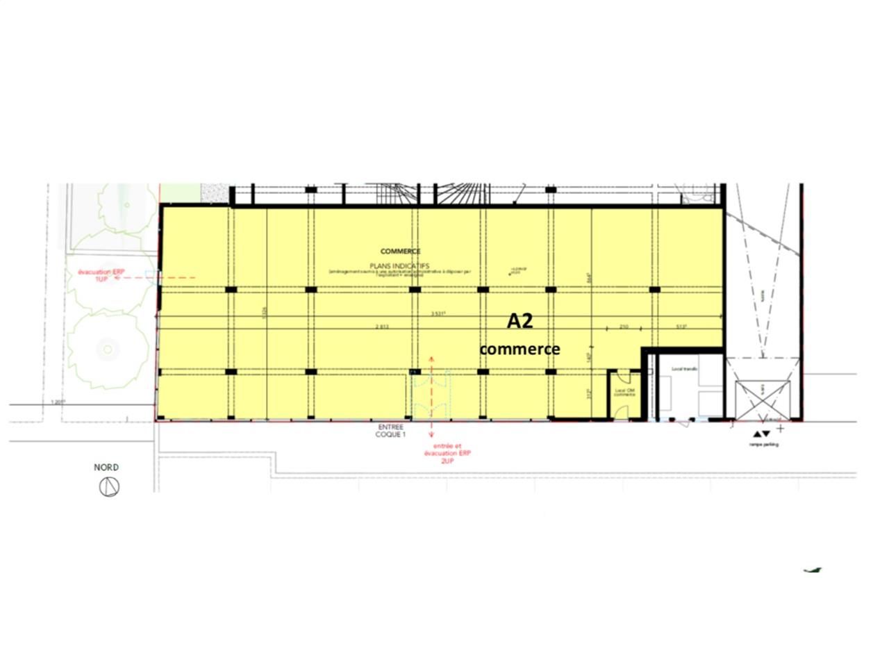
Local commercial à vendre - 439 m²
Rouen (76000)
Dernière mise à jour : Il y a 3 jours
Excellente visibilité - Rez-de-chaussée commercial d'environ 439,33 m2 - Quartier DOCK 76/LUCILINE
Régime Fiscal : TVA
Honoraires : 2,5% HT du prix HT à la charge de l'acquéreur
Prestations :
Accessibilité:
Autoroute Accès à l'A13 par pont Flaubert et SUD III direction Paris, Le Havre, Caen.
SNCF Gare à 15 minutes
Bus Nombreuses lignes de transport à proximité
Les informations sur les risques auxquels ce bien est exposé sont disponibles sur le site Géorisques : www.georisques.gouv.fr
| Étage | Type | Surfaces | Dispo | Prix(m²) | Charges | Honoraires | Fiscal |
|---|---|---|---|---|---|---|---|
| Locaux Commerciaux | 439,33 | Immédiate | 2053,13 m² HT | n.c. | 2,5% HT du prix HT à la charge de l'acquéreur | TVA | |
| Parkings | Immédiate | 16000 U HT | n.c. | 2,5% HT du prix HT à la charge de l'acquéreur | TVA |
Régime Fiscal : TVA
Honoraires : 2,5% HT du prix HT à la charge de l'acquéreur
Prestations :
- Au rez-de-chaussée d'un programme immobilier neuf comprenant 65 logements, 1 750 m2 environ de bureaux et un restaurant :
- Un local commercial d'une superficie d'environ 439,33 m2 bénéficiant d'une excellente visibilité sur un axe majeur de Rouen
- Livraison brut de béton, fluides en attente et vitrines posées.
- 4 Places de parking disponibles en sous-sol en sus à l'acquisition
- Surface RDC : 0 m²
Accessibilité:
Autoroute Accès à l'A13 par pont Flaubert et SUD III direction Paris, Le Havre, Caen.
SNCF Gare à 15 minutes
Bus Nombreuses lignes de transport à proximité
Les informations sur les risques auxquels ce bien est exposé sont disponibles sur le site Géorisques : www.georisques.gouv.fr
Emplacement(s) de Parking: 2 places
Voir plus
Afficher les consommations énergétiques
Localisation et transport aux alentours
Favoris
Exporter
Appeler
Contacter
Signaler cette annonce










