Nous sommes Immprove, une grande équipe de plus de 200 experts en immobilier d’entreprise, implantés localement avec plus de 20 agences sur tout le territoire.Depuis 2009, notre proximité, notre ét ...
En savoir plus

59 m²
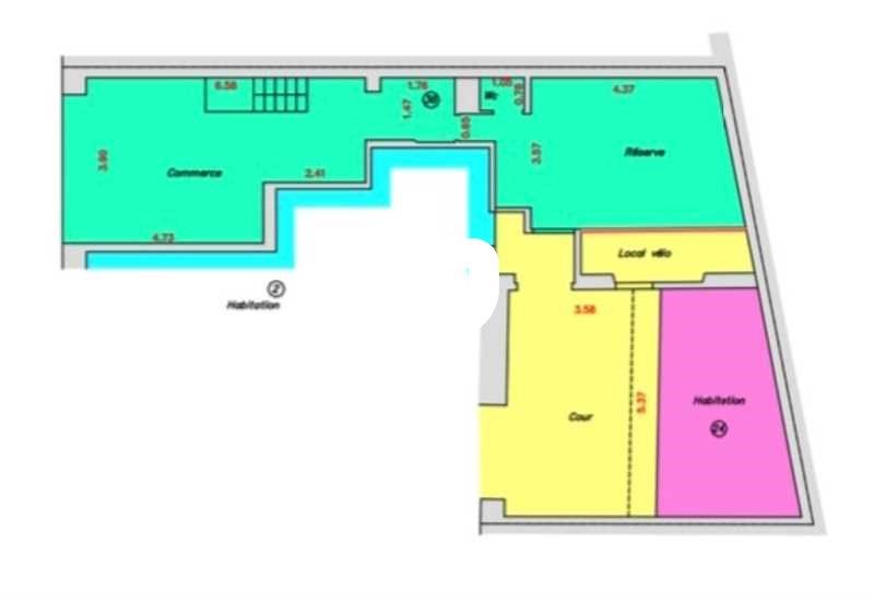
Local commercial à vendre - 59 m²
Paris 9 (75009)
Dernière mise à jour : Il y a 3 jours
Immprove vous propose, quartier Saint Georges, sur rue commerçante et dynamique, les murs d'un local commercial de 45 m2 en rdc et 14 m2 de sous-sol. Locaux refait à neuf en 2023. Pas de conduit d'extraction. Locataire Pizzeria. Prix de vente 480 000 euros NV et 5% HT d'honoraires agence en sus.
Régime Fiscal : Droits d'enregistrement
Honoraires : 5% HT du prix de vente NV à la charge de l'acquéreur soit 24000 euros HT
Prestations :
Accessibilité:
Metro Pigalle (2, 12)
Bus Pigalle - Chaptal (BUS-74), Pigalle (BUS-54, BUS-N02), Navarin (BUS-40), Moncey (BUS-68)
Métro Pigalle (METRO-2), Saint-Georges (METRO-12)
RER AUBER (RER A), HAUSSMANN-SAINT-LAZARE (RER E)
Transilien Haussmann Saint-Lazare (TRAIN-RER E), Gare Saint-Lazare (TRAIN-L, TRAIN-SNCF, TRAIN-J), Auber (TRAIN-RER A)
SNCF Haussmann-St-Lazare (France)
Les informations sur les risques auxquels ce bien est exposé sont disponibles sur le site Géorisques : www.georisques.gouv.fr
| Étage | Type | Surfaces | Dispo | Prix(m²) | Charges | Honoraires | Fiscal |
|---|---|---|---|---|---|---|---|
| RDC | Locaux Commerciaux | 45 | Immédiate | n.c. | n.c. | 5% HT du prix de vente NV à la charge de l'acquéreur soit 24000 euros HT | Droits d'enregistrement |
| SS | Réserve | 14 | Immédiate | n.c. | n.c. | 5% HT du prix de vente NV à la charge de l'acquéreur soit 24000 euros HT | Droits d'enregistrement |
Régime Fiscal : Droits d'enregistrement
Honoraires : 5% HT du prix de vente NV à la charge de l'acquéreur soit 24000 euros HT
Prestations :
- Travaux récents
- Hotte à charbons
- Surface RDC : 45 m²
Accessibilité:
Metro Pigalle (2, 12)
Bus Pigalle - Chaptal (BUS-74), Pigalle (BUS-54, BUS-N02), Navarin (BUS-40), Moncey (BUS-68)
Métro Pigalle (METRO-2), Saint-Georges (METRO-12)
RER AUBER (RER A), HAUSSMANN-SAINT-LAZARE (RER E)
Transilien Haussmann Saint-Lazare (TRAIN-RER E), Gare Saint-Lazare (TRAIN-L, TRAIN-SNCF, TRAIN-J), Auber (TRAIN-RER A)
SNCF Haussmann-St-Lazare (France)
Les informations sur les risques auxquels ce bien est exposé sont disponibles sur le site Géorisques : www.georisques.gouv.fr
Voir plus
Afficher les consommations énergétiques
Favoris
Exporter
Appeler
Contacter
Signaler cette annonce
