Evolis, votre partenaire en immobilier d’entreprise! Que vous soyez une entreprise, utilisateur de locaux professionnels, investisseur, ou propriétaire, Evolis met à votre service son expertise ...
En savoir plus

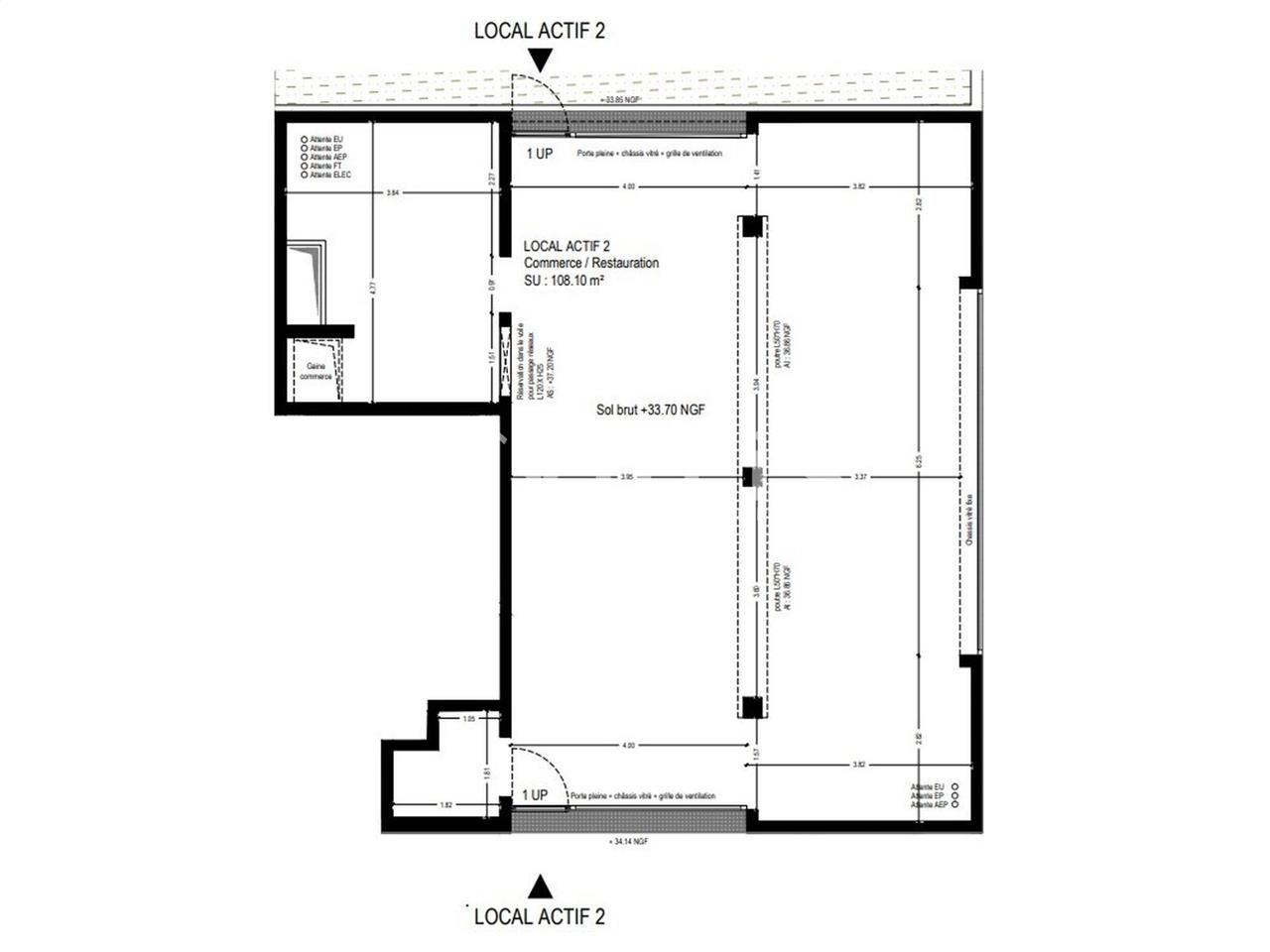
108 m²
Local commercial à vendre - 108 m²
Ivry-sur-Seine (94200)
Dernière mise à jour : Il y a 7 jours
Local commercial à VENDRE
Situé à IVRY SUR SEINE (94), au sein du Parc des Confluences, nous vous proposons à la vente et à la location un local commercial, avec un conduit de cheminée, tout juste livré.
Actuellement vide de toute occupation, l'actif contient une surface totale de 108,10m².
Contactez nous pour plus d'information
Régime Fiscal : Droit d'enregistrement
Honoraires : A la charge de l'acquéreur
Prestations :
Accessibilité:
Bus Chinagora (125, 325)
A 4 (Entrée Charenton Centre, Charenton Bercy), A 4 (Sortie Charenton Centre, Charenton Bercy)
Les informations sur les risques auxquels ce bien est exposé sont disponibles sur le site Géorisques : www.georisques.gouv.fr
Situé à IVRY SUR SEINE (94), au sein du Parc des Confluences, nous vous proposons à la vente et à la location un local commercial, avec un conduit de cheminée, tout juste livré.
Actuellement vide de toute occupation, l'actif contient une surface totale de 108,10m².
Contactez nous pour plus d'information
| Étage | Type | Surfaces | Dispo | Prix(m²) | Charges | Honoraires | Fiscal |
|---|---|---|---|---|---|---|---|
| Locaux Commerciaux | 108,1 | Immédiate | n.c. | n.c. | A la charge de l'acquéreur | Droit d'enregistrement |
Régime Fiscal : Droit d'enregistrement
Honoraires : A la charge de l'acquéreur
Prestations :
- Surface RDC : 108,1 m²
Accessibilité:
Bus Chinagora (125, 325)
A 4 (Entrée Charenton Centre, Charenton Bercy), A 4 (Sortie Charenton Centre, Charenton Bercy)
Les informations sur les risques auxquels ce bien est exposé sont disponibles sur le site Géorisques : www.georisques.gouv.fr
Voir plus
Afficher les consommations énergétiques
Localisation et transport aux alentours
Favoris
Exporter
Appeler
Contacter
Signaler cette annonce
