Leader mondial des services dédiés à l'immobilier d'entreprise, Cushman & Wakefield accompagne ses clients dans la transformation de leurs modes de travail, de consommation et de vie. Nos 43 000 co ...
En savoir plus

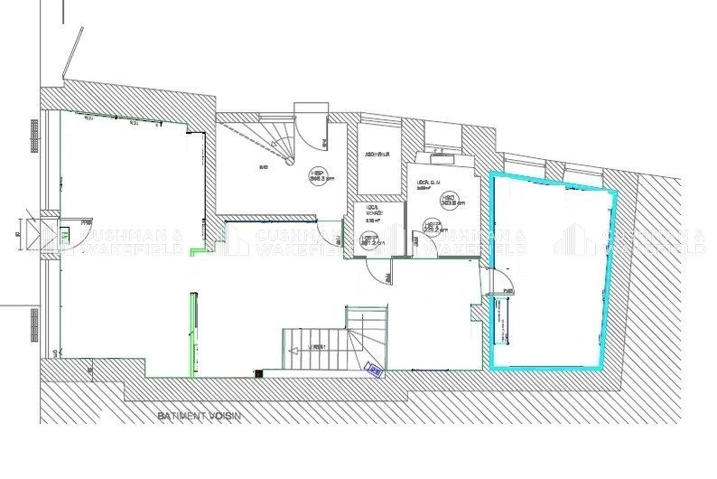
143 m²
HT HC
Location local commercial - 143 m²
Strasbourg (67000)
Dernière mise à jour : Hier
Local commercial avec vitrines situé en pied d'immeuble, bénéficiant d'une excellente visibilité sur un axe d'entrée de ville - Locaux en très bon état. Le secteur du Tribunal à Strasbourg bénéficie d'une localisation stratégique. Il offre un excellent accès aux services avec une concentration d'établissements juridiques, administratifs et commerciaux. L'environnement est bien desservi par les transports en commun, incluant plusieurs lignes de tramway (notamment les lignes A et D) et de bus, garantissant une accessibilité rapide depuis divers quartiers de la ville. La proximité de la Gare Centrale facilite les déplacements régionaux et nationaux. De plus, les infrastructures environnantes, telles que des restaurants et des parkings, renforcent l'attractivité de la zone pour les entreprises cherchant une implantation dynamique et fonctionnelle. Le quartier Gare-Tribunal est un lieu de passage continu, dans un quartier cosmopolite et toujours en effervescence. Patrimoine, commerces, restaurants, c'est le quartier ou tout se passe ! Local commercial avec vitrines situé en pied d'immeuble, bénéficiant d'une excellente visibilité sur un axe d'entrée de ville - Locaux en excellent état N'hésitez plus, contactez-nous ! Le département Bureaux & Investissement de Cushman & Wakefield Strasbourg est à votre entière disposition pour vous faire découvrir ce bien Local comprenant un espace commercial et une surface en sous-sol Sol en stratifié, Moquette ou PVC Murs mis en peinture Faux plafonds avec luminaires Double vitrage Convecteur électrique et climatisation réversibles Sanitaires /kitchenette en sous-sol Archives en sous sol 2 vitrines 6 ml avec volet métallique électrique Accessibilité PMR 1 Parking dans la cour Bus : ligne 4 - 71 - 6 - 2 - 10 Tram : lignes A et D Accès routier : A4 sortie Strasbourg centre
Voir plus
Afficher les consommations énergétiques
Localisation et transport aux alentours
Favoris
Exporter
Appeler
Contacter
Signaler cette annonce
