Arthur Loyd Aisne est Créée en 2011 par Edouard BOUSSION et Jean-Luc HERMENT (déjà fondateurs de l'agence Arthur Loyd dans l’Oise) l'agence de l'Aisne est implantée à Soissons. A ce jour, nous comp ...
En savoir plus

64 m²
HT HC
Location local commercial - 64 m²
Saint-Quentin (02100)
Dernière mise à jour : Il y a 3 jours
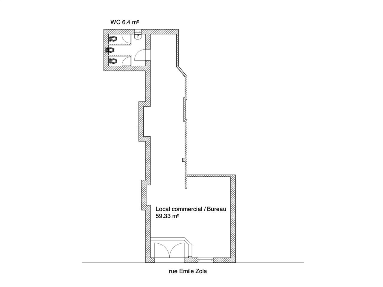
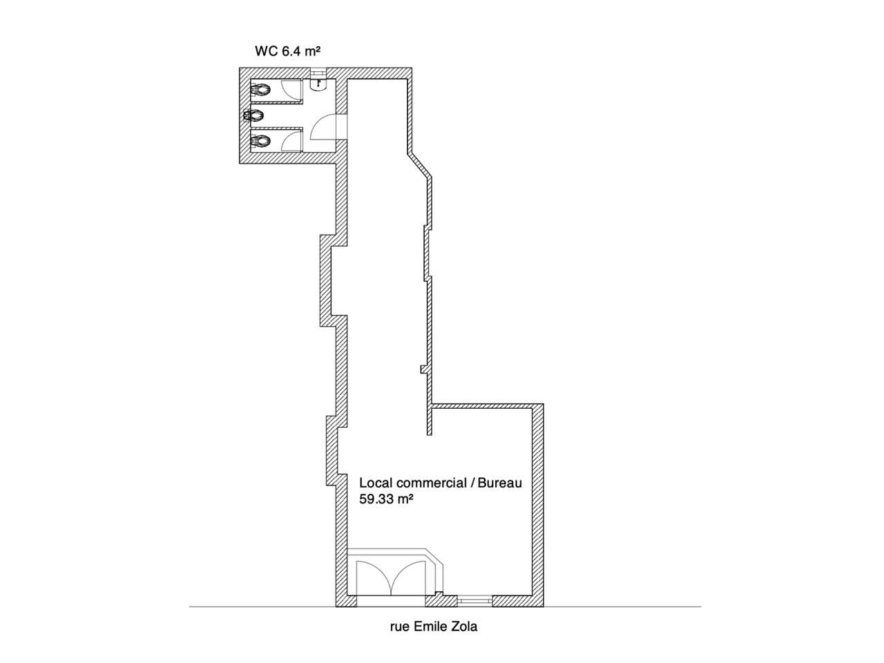
A LOUER - Local commercial de 64m2 en centre-ville
Arthur Loyd vous propose à la location un local commercial idéalement situé en centre-ville de Saint-Quentin.
D'une surface d'environ 64 m², ce local entièrement refait à neuf est composé d'un espace de vente et d'un sanitaire.
Il bénéficie d'une accessibilité PMR (Personnes à Mobilité Réduite) et peut convenir à une grande variété d'activités.
Pour plus d'informations ou pour organiser une visite, n'hésitez pas à nous contacter dès maintenant.
Impôt Foncier : 849 €//an
Régime Fiscal : T.V.A.
Dépôt de garantie : 2 mois de loyer HT/HC
Honoraires : 30% HT du loyer annuel en principal HT / HC à la charge du preneur
Information sur le Bail :
Charges de copropriété : 70 euros / trimestre
Prestations :
Accessibilité:
Autoroute A26 & A29
Bus Reseau Pastel
La Poste Saint-Quentin
SNCF Gare de St-Quentin
Les informations sur les risques auxquels ce bien est exposé sont disponibles sur le site Géorisques : www.georisques.gouv.fr
Arthur Loyd vous propose à la location un local commercial idéalement situé en centre-ville de Saint-Quentin.
D'une surface d'environ 64 m², ce local entièrement refait à neuf est composé d'un espace de vente et d'un sanitaire.
Il bénéficie d'une accessibilité PMR (Personnes à Mobilité Réduite) et peut convenir à une grande variété d'activités.
Pour plus d'informations ou pour organiser une visite, n'hésitez pas à nous contacter dès maintenant.
| Étage | Type | Surfaces | Dispo | Loyer | Charges | Type de bailRév. annuelle |
|---|---|---|---|---|---|---|
| RDC Co. | Locaux Commerciaux | 64 | 3-6-9 ansILC Indice des Loyers Commerciaux |
Impôt Foncier : 849 €//an
Régime Fiscal : T.V.A.
Dépôt de garantie : 2 mois de loyer HT/HC
Honoraires : 30% HT du loyer annuel en principal HT / HC à la charge du preneur
Information sur le Bail :
Charges de copropriété : 70 euros / trimestre
Prestations :
- Parquet
- Led encastrés
- Local refait à neuf
- Espace(s) ouvert(s)
- Sanitaires privatifs
- Surface RDC : 64 m²
Accessibilité:
Autoroute A26 & A29
Bus Reseau Pastel
La Poste Saint-Quentin
SNCF Gare de St-Quentin
Les informations sur les risques auxquels ce bien est exposé sont disponibles sur le site Géorisques : www.georisques.gouv.fr
Voir plus
Afficher les consommations énergétiques
Localisation et transport aux alentours
Favoris
Exporter
Appeler
Contacter
Signaler cette annonce










