Indépendant et familial depuis 1810, le groupe Dauchez a développé un savoir-faire et une expertise qui en font aujourd'hui un acteur reconnu dans l'administration de biens et le syndic de copropri ...
En savoir plus

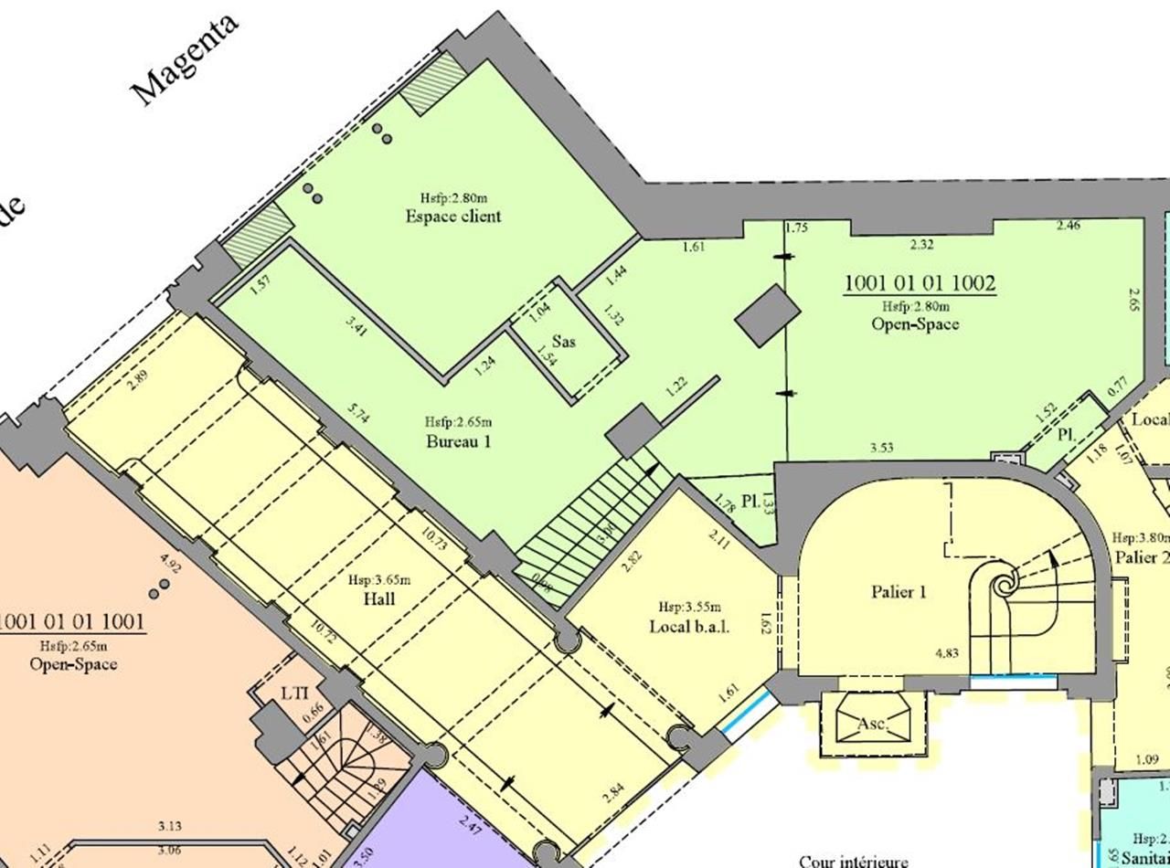
Location local commercial - 131 m²
Le cabinet Dauchez vous propose un local commercial à louer, situé au cœur de Paris, dans un quartier dynamique et en pleine effervescence, ce local commercial de 130 m² est idéal pour donner vie à votre projet.
Agencement fonctionnel comprenant sur deux niveaux : 1 accueil, un grand open space, 3 bureaux, un espace cuisine et des sanitaires
- Emplacement stratégique sur le boulevard Magenta, à proximité des transports en commun
- Fort passage piéton et visibilité optimale
- Espace modulable, parfait pour divers types d'activités
- Accès facile et stationnement à proximité
- Quartier animé avec une clientèle variée
- Proximité des commerces, restaurants et services
- Ambiance conviviale et dynamique
Pour plus d'informations ou pour organiser une visite, n'hésitez pas à nous contacter !
Localisation et transport aux alentours
- Gare du Nord274m (4min à pied)45BD
- Paris-Nord335m (5min à pied)HK
- Gare de l'Est424m (6min à pied)457
- Paris-Est491m (7min à pied)P
- Magenta496m (7min à pied)E
