Indépendant et familial depuis 1810, le groupe Dauchez a développé un savoir-faire et une expertise qui en font aujourd'hui un acteur reconnu dans l'administration de biens et le syndic de copropri ...
En savoir plus

40 m²
HT HC
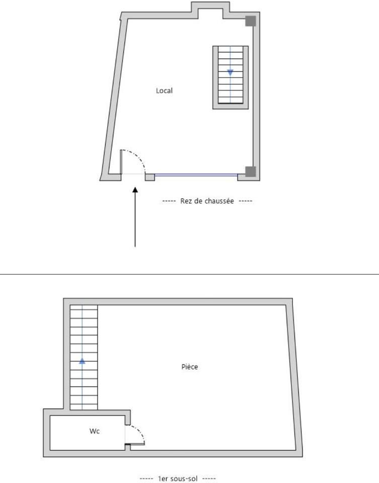
Location local commercial - 40 m²
Paris 11 (75011)
Dernière mise à jour : Il y a 1 mois
Le cabinet Dauchez vous propose un local commercial à louer situé Avenue Philippe Auguste, à proximité de la Place de la Nation.
D'une surface total de 40m², il est composé d'un espace boutique de 19m² en RDC possédant une vitrine donnant sur rue, et d'un sous-sol accessible cirectement par le local.
Disponibilité immédiate.
Voir plus
Afficher les consommations énergétiques
Localisation et transport aux alentours
- Nation274m (4min à pied)1269A
- Avron453m (7min à pied)2
Favoris
Exporter
Appeler
Contacter
Signaler cette annonce
