L’agence CBRE Nantes conseille et accompagne les chefs d’entreprise dans leurs projets immobiliers quels que soient leur taille et leur secteur d’activité. Spécialistes de la transaction de bureaux ...
En savoir plus

382 m²
HT HC
Location local commercial - 382 m²
Basse-Goulaine (44115)
Dernière mise à jour : Hier
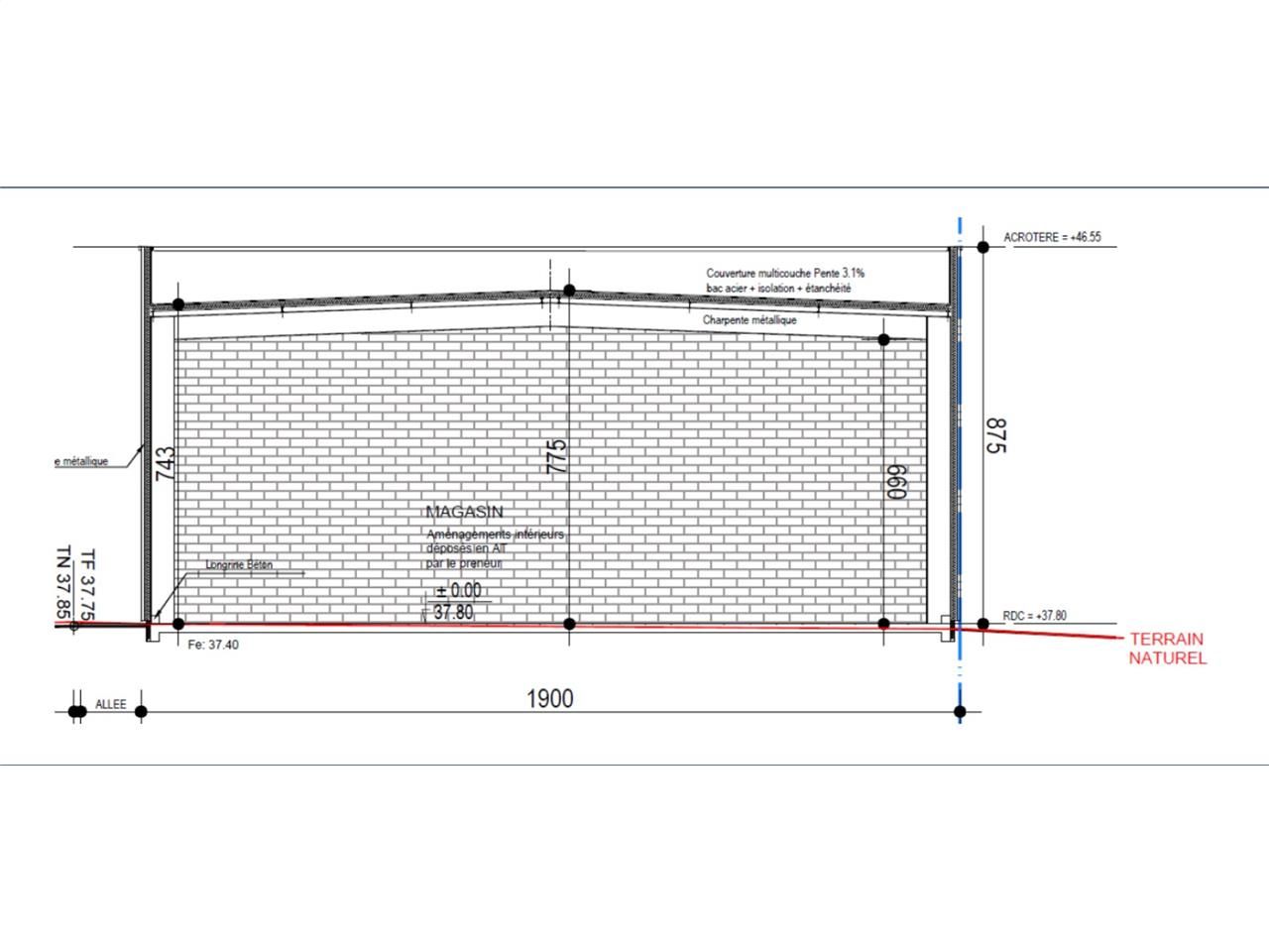
Au coeur de la zone d'activités commerciales de Basse Goulaine, CBRE vous propose un local de 382m² à la location pour une activité commerciale. La cellule est livrée brute de béton fluides en attentes et idéale pour un showroom commercial.
La cellule est livrée brute de béton fluides en attentes et idéale pour un showroom commercial. L'opération est située à 6 minutes du centre commercial Pôle Sud.
Régime Fiscal : T.V.A.
Dépôt de garantie : 3 mois de loyer HT/HC
Honoraires : 15% HT du loyer annuel HT/HC à la charge du preneur.
Prestations :
Accessibilité:
Route A 7 minutes du périphérique
SNCF Gare de Vertou à 15 minutes
Bus Robert Scott (27)Bus ligne 27 arrêt Robert Scott
Les informations sur les risques auxquels ce bien est exposé sont disponibles sur le site Géorisques : www.georisques.gouv.fr
La cellule est livrée brute de béton fluides en attentes et idéale pour un showroom commercial. L'opération est située à 6 minutes du centre commercial Pôle Sud.
| Étage | Type | Surfaces | Dispo | Loyer | Charges | Type de bailRév. annuelle |
|---|---|---|---|---|---|---|
| R1 | Commerce | 382 | Immédiate | 140 m²/an HT HC | 6-9-10 ansIndice ILAT |
Régime Fiscal : T.V.A.
Dépôt de garantie : 3 mois de loyer HT/HC
Honoraires : 15% HT du loyer annuel HT/HC à la charge du preneur.
Prestations :
- ERP : 5eme categ (Tout)
- En polarité commerciale majeure (commerce de détail autorisé). Réalisation de 2 cellules en ERP 5 livrées brut de
- béton réseau pour fluide en attente,
- Immeuble indépendant
Accessibilité:
Route A 7 minutes du périphérique
SNCF Gare de Vertou à 15 minutes
Bus Robert Scott (27)Bus ligne 27 arrêt Robert Scott
Les informations sur les risques auxquels ce bien est exposé sont disponibles sur le site Géorisques : www.georisques.gouv.fr
Voir plus
Afficher les consommations énergétiques
Favoris
Exporter
Appeler
Contacter
Signaler cette annonce
