Depuis 2003, KEOPS Toulouse accompagne les entreprises dans leurs projets immobiliers sur toute l’aire urbaine toulousaine.Notre équipe de professionnels passionnés met à votre service sa connaissa ...
En savoir plus

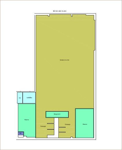
475 m² divisible dès 197 m²
HT HC
Location local commercial - 475 m²
Balma (31130)
Dernière mise à jour : Il y a 2 mois
Keops Toulouse, vous propose des locaux commerciaux dans la zone commerciale de Montredon à BALMA
Locaux commerciaux idéalement situé sur la zone commerciale de Montredon à BalmaAccès mobilité réduite / PMRVitrines poséesLinéaire vitrine 5-10mEmplacement N°1ClimatisationIls profitent d'une visibilité directe sur la départementale Les locaux sont sur l'angle du retail park, ils profitent d'une large vitrineZone de flux très importante Climatisation réversible Pas de travaux à prévoir
(1) loyer en Euros HT HC / m² / an (5) charges en Euros HT / m² / an
Locaux commerciaux idéalement situé sur la zone commerciale de Montredon à BalmaAccès mobilité réduite / PMRVitrines poséesLinéaire vitrine 5-10mEmplacement N°1ClimatisationIls profitent d'une visibilité directe sur la départementale Les locaux sont sur l'angle du retail park, ils profitent d'une large vitrineZone de flux très importante Climatisation réversible Pas de travaux à prévoir
| Libellé | Etage | Surface | Surface Totale | Type de locaux | Loyer(1) | Charges(5) | Disponibilité |
|---|---|---|---|---|---|---|---|
| Local commercial | RDC | 278,00 m² | 475 m² | Commerce | 142,00 | 3 141,00 | Immédiate |
| RDC | 197,00 m² | Commerce | 165,00 | 1 445,00 | Immédiate |
Local commercial disponible
Voir plus
Afficher les consommations énergétiques
Localisation et transport aux alentours
Favoris
Exporter
Appeler
Contacter
Signaler cette annonce
