Evolis, votre partenaire en immobilier d’entreprise! Que vous soyez une entreprise, utilisateur de locaux professionnels, investisseur, ou propriétaire, Evolis met à votre service son expertise ...
En savoir plus

1 198 m² divisible dès 127 m²
HT HC
Location activité/entrepôt - 1198 m²
Malakoff (92240)
Dernière mise à jour : Il y a 1 mois
À louer - Immeuble de bureaux rénové à Malakoff (92)
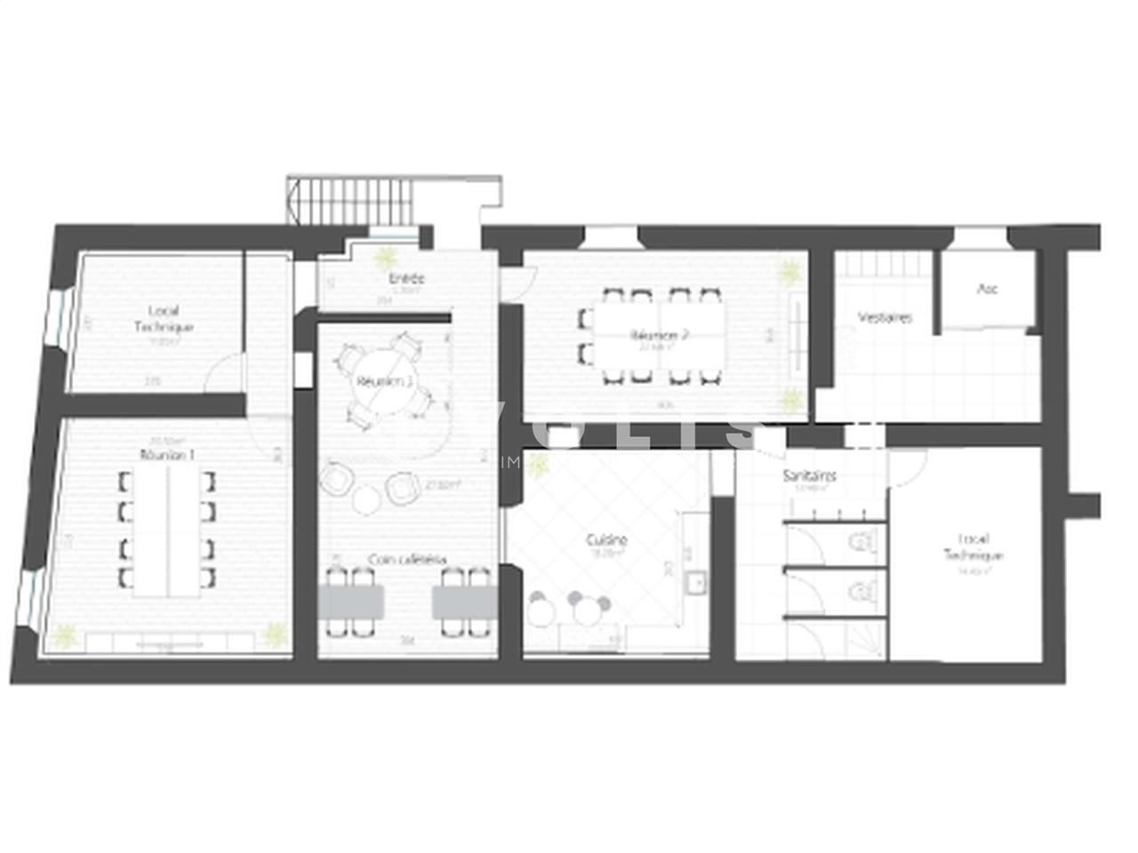
EVOLIS vous propose à la location, en plein centre de Malakoff, un immeuble indépendant entièrement rénové dans un esprit industriel alliant cachet et modernité. Développé sur quatre niveaux (R+3), ce bâtiment atypique se distingue par ses volumes généreux, ses très belles hauteurs sous plafond et ses finitions soignées.
Le dernier étage bénéficie d'une vaste terrasse privative offrant un espace extérieur rare et convivial. L'entrée s'ouvre sur un hall de type atelier avec un escalier cathédrale desservant les étages. En sous-sol, les espaces communs ont été aménagés pour favoriser la convivialité et le bien-être : salles de réunion, zones de détente et cafétéria. L'immeuble est équipé d'un ascenseur PMR et d'un système de climatisation réversible pour un confort optimal. Idéalement situé à proximité immédiate du métro ligne 13 (stations Malakoff - Plateau de Vanves et Étienne Dolet), il offre une accessibilité pratique depuis Paris et les communes voisines. Cet ensemble unique saura séduire les entreprises à la recherche d'un environnement de travail inspirant, spacieux et fonctionnel.
Impôt Foncier : 19,36 €/m²/an
Régime Fiscal : T.V.A.
Dépôt de garantie : 3 mois de loyer HT HC
Honoraires : 15% HT du loyer annuel HT HC à la charge du preneur
Taxe Bureau : 19,36 €/m²/an
Prestations :
Accessibilité:
Bus Carrefour du 8 Mai 1945 (126, 191)
SNCF Vanves-Malakoff (Gare SNCF)
Grand Paris Express Châtillon - Montrouge (L15 Fin 2026)
Transilien Vanves - Malakoff (N)
A 6a, Boulevard Périphérique Extérieur, Boulevard Périphérique Intérieur (Entrée), A 6a, Boulevard Périphérique Extérieur (Sortie), Boulevard Périphérique Intérieur (Sortie Porte de Vanves, Porte de Brancion)
Métro Ligne 13
Les informations sur les risques auxquels ce bien est exposé sont disponibles sur le site Géorisques : www.georisques.gouv.fr
EVOLIS vous propose à la location, en plein centre de Malakoff, un immeuble indépendant entièrement rénové dans un esprit industriel alliant cachet et modernité. Développé sur quatre niveaux (R+3), ce bâtiment atypique se distingue par ses volumes généreux, ses très belles hauteurs sous plafond et ses finitions soignées.
Le dernier étage bénéficie d'une vaste terrasse privative offrant un espace extérieur rare et convivial. L'entrée s'ouvre sur un hall de type atelier avec un escalier cathédrale desservant les étages. En sous-sol, les espaces communs ont été aménagés pour favoriser la convivialité et le bien-être : salles de réunion, zones de détente et cafétéria. L'immeuble est équipé d'un ascenseur PMR et d'un système de climatisation réversible pour un confort optimal. Idéalement situé à proximité immédiate du métro ligne 13 (stations Malakoff - Plateau de Vanves et Étienne Dolet), il offre une accessibilité pratique depuis Paris et les communes voisines. Cet ensemble unique saura séduire les entreprises à la recherche d'un environnement de travail inspirant, spacieux et fonctionnel.
| Étage | Type | Surfaces | Dispo | Loyer | Charges | Type de bailRév. annuelle |
|---|---|---|---|---|---|---|
| 3 | Bureaux | 223 | Immédiate | 281 m²/an/ HT/HC | 28,25 m²/an HT | ILAT Indice des Loyers des Activités Tertiaires |
| 2 | Bureaux | 133 | Immédiate | 236 m²/an/ HT/HC | 28,25 m²/an HT | ILAT Indice des Loyers des Activités Tertiaires |
| 1 | Bureaux | 359 | Immédiate | 245 m²/an/ HT/HC | 28,25 m²/an HT | ILAT Indice des Loyers des Activités Tertiaires |
| RDC | Activités | 356 | Immédiate | 254 m²/an/ HT/HC | 28,25 m²/an HT | ILAT Indice des Loyers des Activités Tertiaires |
| RDC | Bureaux | 127 | Immédiate | 236 m²/an/ HT/HC | 28,25 m²/an HT | ILAT Indice des Loyers des Activités Tertiaires |
| Parkings | Immédiate | 1000 place/an/ HT/HC | ILAT Indice des Loyers des Activités Tertiaires |
Impôt Foncier : 19,36 €/m²/an
Régime Fiscal : T.V.A.
Dépôt de garantie : 3 mois de loyer HT HC
Honoraires : 15% HT du loyer annuel HT HC à la charge du preneur
Taxe Bureau : 19,36 €/m²/an
Prestations :
- Accès véhicules légers
- Accès PMR
- Climatisation réversible
- Parties communes de bon standing
- Ascenseur desservant directement les locaux
- Ascenseur PMR
- Digicode
- Interphone
- Accès sécurisé par badge
- Sas d'entrée
- Visiophone
- Fibre optique
- Cour
- Accueil
- Espace ouvert
- Salle de réunion
- Espace détente
- Local technique
- Locaux refaits à neuf
- Belle hauteur sous plafond
- Locaux traversants
- Locaux lumineux
- Balcon
- Chauffage électrique
- Surface RDC : 483 m²
Accessibilité:
Bus Carrefour du 8 Mai 1945 (126, 191)
SNCF Vanves-Malakoff (Gare SNCF)
Grand Paris Express Châtillon - Montrouge (L15 Fin 2026)
Transilien Vanves - Malakoff (N)
A 6a, Boulevard Périphérique Extérieur, Boulevard Périphérique Intérieur (Entrée), A 6a, Boulevard Périphérique Extérieur (Sortie), Boulevard Périphérique Intérieur (Sortie Porte de Vanves, Porte de Brancion)
Métro Ligne 13
Les informations sur les risques auxquels ce bien est exposé sont disponibles sur le site Géorisques : www.georisques.gouv.fr
Voir plus
Afficher les consommations énergétiques
Localisation et transport aux alentours
Favoris
Exporter
Appeler
Contacter
Signaler cette annonce
