Faire appel à BNP Paribas Real Estate à Strasbourg permet de bénéficier d’une expertise de plus de 40 ans sur le marché strasbourgeois. Nos équipes possèdent une grande connaissance de ce marché. L ...
En savoir plus

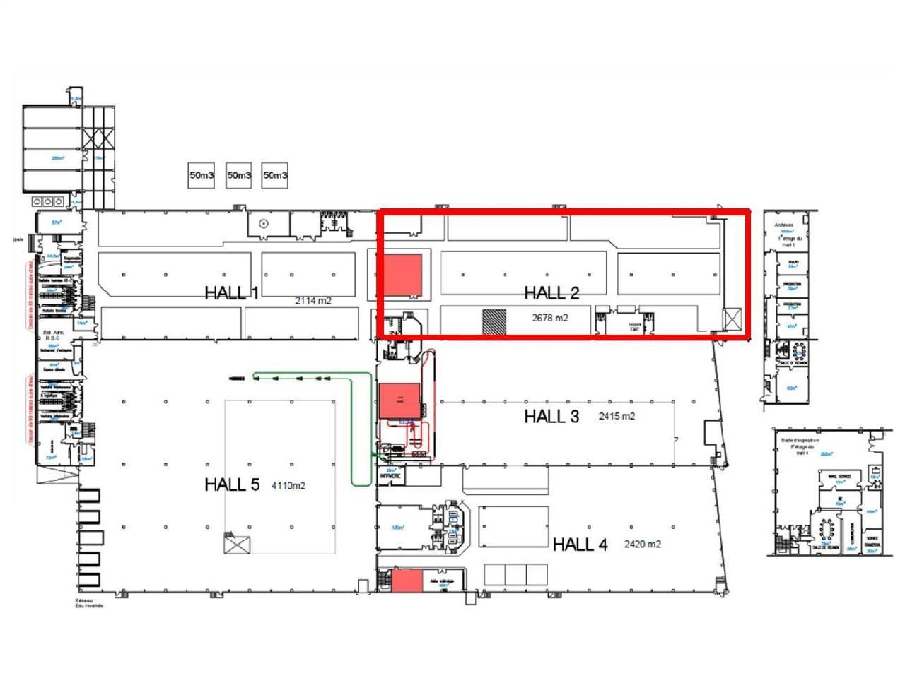
Location activité/entrepôt - 2678 m²
Sélestat est non seulement un centre industriel, mais aussi un pôle commercial secondaire, situé à mi-chemin entre Strasbourg et Mulhouse et à une vingtaine de kilomètres de Colmar. La ville compte DEUX GRANDES ZONES INDUSTRIELLES : celle du Sud de 67 hectares et celle située au-delà du Giessen de 134 hectares, accueillant des grandes entreprises, des entreprises artisanales et des grandes surfaces.
En TRANSPORT EN COMMUN, le Transport intercommunal de Sélestat (TIS) comporte deux lignes : la ligne A, entre Châtenois et Ebersheim, et la ligne B entre Scherwiller et Muttersholtz.
Et la GARE DE SELESTAT est desservie par tous les trains TER Alsace reliant Strasbourg et Bâle, qui s'arrêtent également à Colmar, Mulhouse et Saint-Louis et aussi par la LIGNE TGV EST.
Appelez-nous pour plus de précisions sur cet ENTREPOT à louer à Sélestat !
Disponibilité: 6 mois après accordHonoraires: 15% HT du loyer HT/HC. à la signature du bail
| Fiche technique du bien | |
|---|---|
| TER | Gare de Sélestat 3 km |
| Desserte routière | Autoroute A35 2 km |
| Autre élément bureau | Bureau de réception en RDC |
| Hauteur sous poutre | 8,32 mètre(s) et 6,77 mètres sous pont roulant |
| Porte(s) d'accès à quai | 2 Quai de réception couvert |
| Aire de manoeuvre | Oui |
| Pont(s) roulant | 1 |









