Conseil en immobilier d'entreprise, Cushman & Wakefield est un acteur incontournable au rayonnement international. Cushman & Wakefield offre des solutions dans toutes les étapes que comporte un p ...
En savoir plus

5 955 m²
HT HC
ZI GARONOR - BAT 18 - Location activité/entrepôt - 5955 m²
Aulnay-sous-Bois (93600)
Dernière mise à jour : Il y a 3 jours
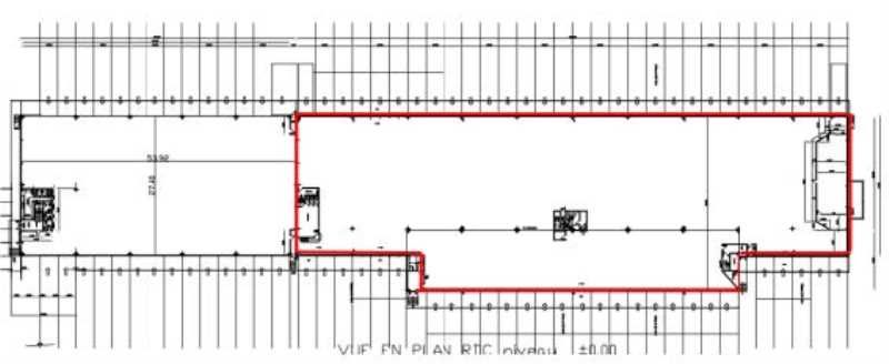
Messagerie - Garonor Aulnay 18
Immeuble ZI GARONOR - BAT 18
CW vous propose une opportunité exceptionnelle dans le domaine de l'immobilier d'entreprises à Aulnay-sous-Bois : un entrepôt de 4 249 m² non divisibles, idéalement situé et offrant une multitude d'avantages. Doté de 2 rampes et de 84 quais, ce site bénéficie d'une messagerie bi-face, d'une sécurité renforcée avec un site clos et vidéosurveillé, ainsi que d'un PC sécurité incendie Garonor opérationnel 24h/24 et 7j/7. Sa structure métallique, sa hauteur libre de 4,63 à 5,78 mètres, sa résistance au sol de 5 tonnes/m² et ses portes de dimensions généreuses (3,10 m de hauteur sur 3,45 m de largeur) en font un espace fonctionnel et adapté à de multiples activités. De plus, il est conforme à la réglementation ICPE 1510 et dispose d'un accès à quai pour véhicules légers et poids lourds, incluant 3 niveleurs. Avec une profondeur allant de 27 à 35 mètres, une rampe d'accès, une détection incendie et des RIA, ce bien offre un environnement sécurisé et propice au développement de votre entreprise. Les bureaux sont équipés d'un chauffage par eau chaude, et des locaux sociaux comprenant des sanitaires et des douches sont disponibles. De plus, le site bénéficie d'un service de Property Management sur zone, ainsi que de commodités telles qu'une brasserie et des hôtels à proximité. Des services administratifs tels que les douanes et la médecine du travail sont également présents sur place, offrant un cadre de travail optimal pour votre activité.
Ne manquez pas cette occasion unique de louer un espace commercial de qualité à Aulnay-sous-Bois, contactez CW dès aujourd'hui pour plus d'informations.
Impôt Foncier : 10,9 €//m²/an
Régime Fiscal : T.V.A.
Dépôt de garantie : 3 mois de loyer HT/HC
Paiement Loyer : Trimestriel
Honoraires : à la charge du preneur
Information sur le Bail :
TBU (2024) : 2,12 euros HTVA/m²/an
Prestations :
Accessibilité:
Bus Lignes 350, 427 627 et 45 sur site
SNCF Le Blanc Mesnil à 7 km
Accès routier A1 et A3 : accès immédiat
Aéroport Paris-CDG à 13 km
Les informations sur les risques auxquels ce bien est exposé sont disponibles sur le site Géorisques : www.georisques.gouv.fr
Immeuble ZI GARONOR - BAT 18
CW vous propose une opportunité exceptionnelle dans le domaine de l'immobilier d'entreprises à Aulnay-sous-Bois : un entrepôt de 4 249 m² non divisibles, idéalement situé et offrant une multitude d'avantages. Doté de 2 rampes et de 84 quais, ce site bénéficie d'une messagerie bi-face, d'une sécurité renforcée avec un site clos et vidéosurveillé, ainsi que d'un PC sécurité incendie Garonor opérationnel 24h/24 et 7j/7. Sa structure métallique, sa hauteur libre de 4,63 à 5,78 mètres, sa résistance au sol de 5 tonnes/m² et ses portes de dimensions généreuses (3,10 m de hauteur sur 3,45 m de largeur) en font un espace fonctionnel et adapté à de multiples activités. De plus, il est conforme à la réglementation ICPE 1510 et dispose d'un accès à quai pour véhicules légers et poids lourds, incluant 3 niveleurs. Avec une profondeur allant de 27 à 35 mètres, une rampe d'accès, une détection incendie et des RIA, ce bien offre un environnement sécurisé et propice au développement de votre entreprise. Les bureaux sont équipés d'un chauffage par eau chaude, et des locaux sociaux comprenant des sanitaires et des douches sont disponibles. De plus, le site bénéficie d'un service de Property Management sur zone, ainsi que de commodités telles qu'une brasserie et des hôtels à proximité. Des services administratifs tels que les douanes et la médecine du travail sont également présents sur place, offrant un cadre de travail optimal pour votre activité.
Ne manquez pas cette occasion unique de louer un espace commercial de qualité à Aulnay-sous-Bois, contactez CW dès aujourd'hui pour plus d'informations.
| Étage | Type | Surfaces | Dispo | Loyer | Charges | Type de bailRév. annuelle |
|---|---|---|---|---|---|---|
| 1 | Bureaux | 205 | Sur l'indice ILAT | |||
| RdC | Entrepôts | 1501 | Sur l'indice ILAT | |||
| Total Cellule Cellule A | Entrepôts | 1706 | 150 HT/HC/m²/an | 15,48 HT/m²/an | DérogatoireSur l'indice ILAT | |
| 1 | Bureaux | 810 | Sur l'indice ILAT | |||
| RdC | Entrepôts | 3214 | Sur l'indice ILAT | |||
| RdC | Bureaux | 225 | Sur l'indice ILAT | |||
| Total Cellule Cellules B et C | Entrepôts | 4249 | 150 HT/HC/m²/an | 15,48 HT/m²/an | DérogatoireSur l'indice ILAT |
Impôt Foncier : 10,9 €//m²/an
Régime Fiscal : T.V.A.
Dépôt de garantie : 3 mois de loyer HT/HC
Paiement Loyer : Trimestriel
Honoraires : à la charge du preneur
Information sur le Bail :
TBU (2024) : 2,12 euros HTVA/m²/an
Prestations :
- Messagerie bi-face
- Site clos et vidéosurveillé
- PC sécurité incendie GARONOR 24h/24 7j/7
- Structure métallique
- Hauteur libre : 4,63 à 5,78 m
- Résistance au sol : 5 t/m²
- Dimension des portes : H 3,10 m x l 3,45 m
- ICPE : 1510
- Accès à quai VUL et PL (dont 3 niveleurs)
- Profondeur : 27 à 35 m
- Rampe d'accès
- Détection incendie et RIA
- Chauffage bureaux par eau chaude
- Locaux sociaux : sanitaires et douches
- Property Management sur zone
- Brasserie et hôtels sur site
- Services administratifs sur place : douanes, médecine du travail, etc.
- 2 rampes
- 84 quais
- Surface RDC : 4940 m²
- Résistance sol : 5 T/m²
- Ossature : Métallique
Accessibilité:
Bus Lignes 350, 427 627 et 45 sur site
SNCF Le Blanc Mesnil à 7 km
Accès routier A1 et A3 : accès immédiat
Aéroport Paris-CDG à 13 km
Les informations sur les risques auxquels ce bien est exposé sont disponibles sur le site Géorisques : www.georisques.gouv.fr
Voir plus
Afficher les consommations énergétiques
Localisation et transport aux alentours
Favoris
Exporter
Appeler
Contacter
Signaler cette annonce










