Arthur Loyd Bretagne est une société de conseil en immobilier d'entreprise de la métropole brestoise. Spécialiste de l’immobilier d’entreprise sur le Finistère, les Côtes-d’Armor et le Morbihan, le ...
En savoir plus

1 080 m² divisible dès 180 m²
Prix sur demande
Activité/Entrepôt à vendre - 1080 m²
Clohars-Fouesnant (29950)
Dernière mise à jour : Il y a 9 jours
A VENDRE / A LOUER - CELLULES D'ACTIVITES - CLOHARS FOUESNANT
Arthur Loyd vous un bâtiment artisanal moderne, idéal pour des activités professionnelles. Ce bâtiment comprendra 5 cellules artisanales livrées brut de béton, parfaitement adaptées à divers types d'activités, sur un site sécurisé.
Caractéristiques des cellules restantes :
- 3 cellules de 300 m² environ, incluant un espace mezzanine d'environ 33 m²,
- 1 cellule de 180 m² environ, incluant un espace mezzanine d'environ 31 m²
Caractéristiques du bâtiment :
Structure métallique robuste pour une durabilité accrue.
Enveloppe extérieure en bardage métallique et translucide, offrant une luminosité naturelle et une esthétique moderne.
Design simple et fonctionnel, avec des volumes optimisés.
Une opportunité rare pour les artisans ou entreprises souhaitant s'implanter dans un cadre fonctionnel et bien conçu.
Information sur le Bail :
Location avec option d'achat possible ( à partir de 6 ans)
Prestations :
Accessibilité:
Route Sur l'axe D34 à 15 minutes de Quimper, en direction de la station balnéaire de Bénodet.
Route
Aménagement de voies douces prévu à moyen terme pour relier la zone de Ty Roud Guen à Bénodet.
Les informations sur les risques auxquels ce bien est exposé sont disponibles sur le site Géorisques : www.georisques.gouv.fr
Arthur Loyd vous un bâtiment artisanal moderne, idéal pour des activités professionnelles. Ce bâtiment comprendra 5 cellules artisanales livrées brut de béton, parfaitement adaptées à divers types d'activités, sur un site sécurisé.
Caractéristiques des cellules restantes :
- 3 cellules de 300 m² environ, incluant un espace mezzanine d'environ 33 m²,
- 1 cellule de 180 m² environ, incluant un espace mezzanine d'environ 31 m²
Caractéristiques du bâtiment :
Structure métallique robuste pour une durabilité accrue.
Enveloppe extérieure en bardage métallique et translucide, offrant une luminosité naturelle et une esthétique moderne.
Design simple et fonctionnel, avec des volumes optimisés.
Une opportunité rare pour les artisans ou entreprises souhaitant s'implanter dans un cadre fonctionnel et bien conçu.
| Étage | Type | Surfaces | Dispo | Prix(m²) | Charges | Honoraires | Fiscal |
|---|---|---|---|---|---|---|---|
| RDC | Commerce | 300 | n.c. | n.c. | |||
| RDC | Activités | 300 | n.c. | n.c. | |||
| RDC | Activités | 300 | n.c. | n.c. | |||
| RDC | Activités | 180 | n.c. | n.c. |
Information sur le Bail :
Location avec option d'achat possible ( à partir de 6 ans)
Prestations :
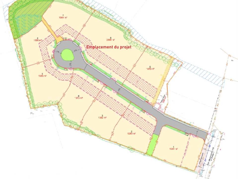
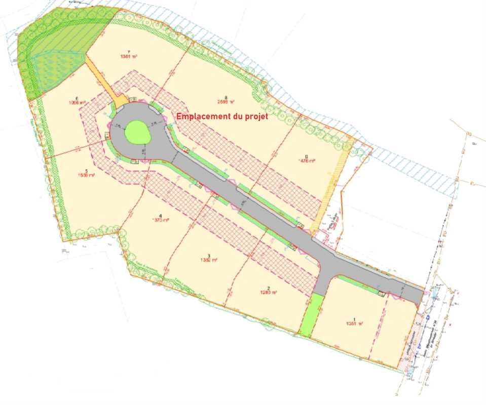
- Sur un terrain (site sécurisé par un portail) d'environ 2 598 m², un bâtiment d'activité de 1 260 m² composé de 5 lots :
- Cellules d'environ 180 m2 (148 m2 en rez-de-chaussée et 31 m2 en mezzanine)
- Cellules d'environ 300 m2 (266 m2 en rez-de-chaussée et 33 m2 en mezzanine)
- Les locaux sont classés ERP. Les teintes, coloris et finitions des façades et pignons seront sélectionnés par l'architecte, en collaboration avec le client et les autorités administratives. Les installations seront conformes aux normes et DTU en vigueur.
- Surface RDC : 1080 m²
- Surface terrain : 2598
- Couverture : Bac acier
Accessibilité:
Route Sur l'axe D34 à 15 minutes de Quimper, en direction de la station balnéaire de Bénodet.
Route
Aménagement de voies douces prévu à moyen terme pour relier la zone de Ty Roud Guen à Bénodet.
Les informations sur les risques auxquels ce bien est exposé sont disponibles sur le site Géorisques : www.georisques.gouv.fr
Voir plus
Afficher les consommations énergétiques
Favoris
Exporter
Appeler
Contacter
Signaler cette annonce
