MALSH Realty accompagne les entreprises dans leurs projets immobiliers, qu’il s’agisse de locaux d’activités, de bureaux, de commerces, d’entrepôts ou de terrains. L’agence intervient aussi bien au ...
En savoir plus

550 m² divisible dès 102 m²
Bureau à vendre - 550 m²
Vaulx-en-Velin (69120)
Dernière mise à jour : Il y a 3 jours
Bureaux neufs à VAULX-EN-VELIN - Centre-Ville - A VENDRE OU A LOUER - 549 m² divisibles à partir de 102 m²
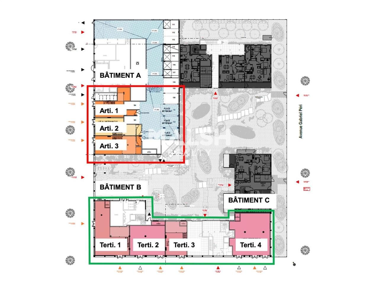
En plein centre-ville de Vaulx-en-Velin, au sein d'un nouveau programme en cours de construction, nous vous proposons à la vente ou à la location, des bureaux neufs d'une surface d'environ 549 m² divisibles en 4 lots à partir de 102 m². Ces locaux sont livrés bruts, fluides en attente. Un lot est destiné à une crèche bénéficiant d'un espace extérieur.
Vente ou Location Bureaux neufs - Vaulx-en-Velin (69120) - Centre-ville - 549 m² divisibles à partir de 102 m²
Régime Fiscal : TVA
Dépôt de garantie : 3 mois de loyer HT/HC
Honoraires : 5 % HT du prix de vente HT, à la charge de l'acquéreur, payables à la signature de l'acte
Prestations :
Accessibilité:
Autoroute A proximité immédiate du Boulevard Périphérique Laurent Bonnevay (à 5 min en voiture) et à 10 min en voiture des grands axes autoroutiers
Aéroport A 20 min de l'Aéroport international Lyon-Saint-Exupéry
Bus Bus TCL lignes C3 et C8 à proximité immédiate
Tram Tramway ligne T9 à 5 min à pied
Les informations sur les risques auxquels ce bien est exposé sont disponibles sur le site Géorisques : www.georisques.gouv.fr
En plein centre-ville de Vaulx-en-Velin, au sein d'un nouveau programme en cours de construction, nous vous proposons à la vente ou à la location, des bureaux neufs d'une surface d'environ 549 m² divisibles en 4 lots à partir de 102 m². Ces locaux sont livrés bruts, fluides en attente. Un lot est destiné à une crèche bénéficiant d'un espace extérieur.
Vente ou Location Bureaux neufs - Vaulx-en-Velin (69120) - Centre-ville - 549 m² divisibles à partir de 102 m²
| Étage | Type | Surfaces | Dispo | Prix(m²) | Charges | Honoraires | Fiscal |
|---|---|---|---|---|---|---|---|
| Mezzanine | 20,8 | n.c. | n.c. | 5 % HT du prix de vente HT, à la charge de l'acquéreur, payables à la signature de l'acte | TVA | ||
| RDC | Bureaux | 143 | n.c. | n.c. | 5 % HT du prix de vente HT, à la charge de l'acquéreur, payables à la signature de l'acte | TVA | |
| Total Cellule Tertiaire 01 | Bureaux | 163,8 | Livraison 1er trimestre 2027 | 1950 HT/m² | n.c. | 5 % HT du prix de vente HT, à la charge de l'acquéreur, payables à la signature de l'acte | TVA |
| RDC | Bureaux | 116,8 | n.c. | n.c. | 5 % HT du prix de vente HT, à la charge de l'acquéreur, payables à la signature de l'acte | TVA | |
| Total Cellule Tertiaire 02 -Crèche | Bureaux | 116,8 | Livraison 1er trimestre 2027 | 1950 HT/m² | n.c. | 5 % HT du prix de vente HT, à la charge de l'acquéreur, payables à la signature de l'acte | TVA |
| Mezzanine | 25,7 | n.c. | n.c. | 5 % HT du prix de vente HT, à la charge de l'acquéreur, payables à la signature de l'acte | TVA | ||
| RDC | Bureaux | 76,5 | n.c. | n.c. | 5 % HT du prix de vente HT, à la charge de l'acquéreur, payables à la signature de l'acte | TVA | |
| Total Cellule Tertiaire 03 | Bureaux | 102,2 | Livraison 1er trimestre 2027 | 1950 HT/m² | n.c. | 5 % HT du prix de vente HT, à la charge de l'acquéreur, payables à la signature de l'acte | TVA |
| RDC | Bureaux | 167 | n.c. | n.c. | 5 % HT du prix de vente HT, à la charge de l'acquéreur, payables à la signature de l'acte | TVA | |
| Total Cellule Tertiaire 04 | Bureaux | 167 | Livraison 1er trimestre 2027 | 1950 HT/m² | n.c. | 5 % HT du prix de vente HT, à la charge de l'acquéreur, payables à la signature de l'acte | TVA |
| Parkings | Livraison 1er trimestre 2027 | 15000 HT/Place | n.c. | 5 % HT du prix de vente HT, à la charge de l'acquéreur, payables à la signature de l'acte | TVA |
Régime Fiscal : TVA
Dépôt de garantie : 3 mois de loyer HT/HC
Honoraires : 5 % HT du prix de vente HT, à la charge de l'acquéreur, payables à la signature de l'acte
Prestations :
- Locaux livrés bruts avec fluides en attente
- Locaux tertiaires classés 5ème catégorie ERP
- Lot Tertiaire 02 (Crèche) : Espace extérieur d'environ 50 m² donnant sur îlot vert central
- Locaux double hauteur (4,90 m en moyenne)
- Résistance dallage 1T/m²
- Portes et menuiseries extérieures thermolaquées
- Vitrages anti-effraction pour plus de sécurité
- Aménagement mezzanine adaptable
- Stationnements : 4 places de stationnement couvertes dans le bâtiment A (1 pour chaque lot)
- Locaux vélos
Accessibilité:
Autoroute A proximité immédiate du Boulevard Périphérique Laurent Bonnevay (à 5 min en voiture) et à 10 min en voiture des grands axes autoroutiers
Aéroport A 20 min de l'Aéroport international Lyon-Saint-Exupéry
Bus Bus TCL lignes C3 et C8 à proximité immédiate
Tram Tramway ligne T9 à 5 min à pied
Les informations sur les risques auxquels ce bien est exposé sont disponibles sur le site Géorisques : www.georisques.gouv.fr
Voir plus
Afficher les consommations énergétiques
Localisation et transport aux alentours
Favoris
Exporter
Appeler
Contacter
Signaler cette annonce





