Nous sommes Immprove, une grande équipe de plus de 200 experts en immobilier d’entreprise, implantés localement avec plus de 20 agences sur tout le territoire.Depuis 2009, notre proximité, notre ét ...
En savoir plus



364 m²
Bureau à vendre - 364 m²
Paris 8 (75008)
Dernière mise à jour : Il y a 5 jours
BUREAUX A VENDRE PARIS 8
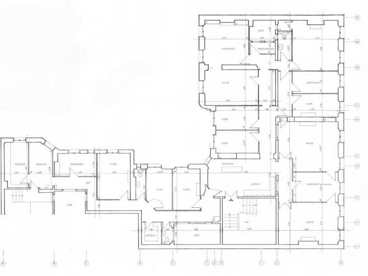
En plein coeur du 8e arrondissement, dans un bel immeuble haussmannien de standing, IMMPROVE vous propose des bureaux de 340 m² à vendre. La surface de bureaux est située au 3ème étage, avec une hauteur sous plafond de 3,40 mètres. Les bureaux bénéficient d'une annexe de 26 m² en rez-de-chaussée avec accès PMR possible, des locaux d'archivage, d'une place de parking et d'une cave..
Impôt Foncier : 8000 €/an HT
Régime Fiscal : Droits d'enregistrement
Honoraires : Nous consulter
Prestations :
Accessibilité:
Bus Haussmann - Miromesnil (BUS-80, BUS-52, BUS-43, BUS-32, BUS-22, BUS-28, BUS-93, BUS-N02, BUS-N53), Gare Saint-Lazare - Rome (BUS-66, BUS-95), Rond-Point des Champs-Élysées (BUS-42, BUS-73, BUS-N11, BUS-N24), Malesherbes - Courcelles (BUS-30), Hoche - Saint-Honoré (BUS-31), Gare Saint-Lazare (BUS-27, BUS-26, BUS-29, BUS-N15, BUS-N153, BUS-N51), Villiers (BUS-N16, BUS-N52), Lisbonne - Mairie du 8ème (BUS-20), Paris Saint-Lazare (BUS-N151, BUS-N150, BUS-N152, BUS-N154), Ruysdaël - Parc Monceau (BUS-84), La Boétie - Percier (BUS-N02), Europe (BUS-94)
Métro Saint-Lazare (METRO-14), Miromesnil (METRO-13, METRO-9), Monceau (METRO-2), Franklin-Roosevelt (METRO-1), Villiers (METRO-3)
Transilien Gare Saint-Lazare (TRAIN-L, TRAIN-SNCF, TRAIN-J)
Les informations sur les risques auxquels ce bien est exposé sont disponibles sur le site Géorisques : www.georisques.gouv.fr
En plein coeur du 8e arrondissement, dans un bel immeuble haussmannien de standing, IMMPROVE vous propose des bureaux de 340 m² à vendre. La surface de bureaux est située au 3ème étage, avec une hauteur sous plafond de 3,40 mètres. Les bureaux bénéficient d'une annexe de 26 m² en rez-de-chaussée avec accès PMR possible, des locaux d'archivage, d'une place de parking et d'une cave..
| Étage | Type | Surfaces | Dispo | Prix(m²) | Charges | Honoraires | Fiscal |
|---|---|---|---|---|---|---|---|
| 3 | Bureaux | 338 | Immédiate | n.c. | 28,5 m²/an HT | Nous consulter | Droits d'enregistrement |
| RDC | Bureaux | 26,2 | Immédiate | n.c. | 28,5 m²/an HT | Nous consulter | Droits d'enregistrement |
Impôt Foncier : 8000 €/an HT
Régime Fiscal : Droits d'enregistrement
Honoraires : Nous consulter
Prestations :
- Immeuble haussmannien de standing
- Façade en pierres de taille
- Accès PMR pour le RDC
- Parties communes de standing
- Ascenseur
- Gardienne
- Télésurveillance
- Digicode
- Chauffage CPCU
- Locaux aménagés en :
- Un grand accueil / salle d'attente
- 14 Bureaux cloisonnés, dont la grande majorité sont décloisonnables
- Cuisine
- 3 Sanitaires privatifs, possibilité création 4ème
- Moulures et cheminées
- Belle hauteur sous plafond de 3,40 mètres, exceptionnel pour un 3ème étage
- Locaux traversants sur rue et sur plusieurs cours
- Décloisonnement possible sur la majeure partie de la surface
- Annexe en RDC, local d'Archives et cave
- Câblage informatique et téléphonique
- Surface RDC : 26,2 m²
Accessibilité:
Bus Haussmann - Miromesnil (BUS-80, BUS-52, BUS-43, BUS-32, BUS-22, BUS-28, BUS-93, BUS-N02, BUS-N53), Gare Saint-Lazare - Rome (BUS-66, BUS-95), Rond-Point des Champs-Élysées (BUS-42, BUS-73, BUS-N11, BUS-N24), Malesherbes - Courcelles (BUS-30), Hoche - Saint-Honoré (BUS-31), Gare Saint-Lazare (BUS-27, BUS-26, BUS-29, BUS-N15, BUS-N153, BUS-N51), Villiers (BUS-N16, BUS-N52), Lisbonne - Mairie du 8ème (BUS-20), Paris Saint-Lazare (BUS-N151, BUS-N150, BUS-N152, BUS-N154), Ruysdaël - Parc Monceau (BUS-84), La Boétie - Percier (BUS-N02), Europe (BUS-94)
Métro Saint-Lazare (METRO-14), Miromesnil (METRO-13, METRO-9), Monceau (METRO-2), Franklin-Roosevelt (METRO-1), Villiers (METRO-3)
Transilien Gare Saint-Lazare (TRAIN-L, TRAIN-SNCF, TRAIN-J)
Les informations sur les risques auxquels ce bien est exposé sont disponibles sur le site Géorisques : www.georisques.gouv.fr
Voir plus
Afficher les consommations énergétiques
Favoris
Exporter
Appeler
Contacter
Signaler cette annonce










