Nous sommes Immprove, une grande équipe de plus de 200 experts en immobilier d’entreprise, implantés localement avec plus de 20 agences sur tout le territoire.Depuis 2009, notre proximité, notre ét ...
En savoir plus

791 m² divisible dès 252 m²
Bureau à vendre - 791 m²
Palaiseau (91120)
Dernière mise à jour : Il y a 10 jours
Surfaces de bureaux et activités à la vente
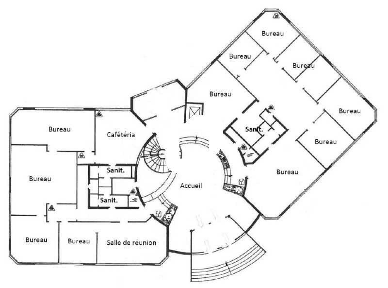
À 10 minutes de la gare RER et TGV de Massy-Palaiseau par liaison bus, dans un immeuble de 1989 en R+4 avec ascenseur, Immprove vous propose plusieurs surfaces de bureaux à partir de 264m² et une surface d'activité de 512m² à la vente. Certaines surfaces sont climatisées, bénéficies de sanitaires privatifs ou commun.
Le site comprend des parkings privatifs et un terrain clos, sécurisé par deux portails.
Impôt Foncier : 22,24 €//m²/an HT
Taxe Bureau : 11,87 €/m²/an
Prestations :
Accessibilité:
Bus Bus 199
RER Palaiseau (B)
Route Nationale N20 et N118
Autoroute Autoroute A6 et A10
Les informations sur les risques auxquels ce bien est exposé sont disponibles sur le site Géorisques : www.georisques.gouv.fr
À 10 minutes de la gare RER et TGV de Massy-Palaiseau par liaison bus, dans un immeuble de 1989 en R+4 avec ascenseur, Immprove vous propose plusieurs surfaces de bureaux à partir de 264m² et une surface d'activité de 512m² à la vente. Certaines surfaces sont climatisées, bénéficies de sanitaires privatifs ou commun.
Le site comprend des parkings privatifs et un terrain clos, sécurisé par deux portails.
| Étage | Type | Surfaces | Dispo | Prix(m²) | Charges | Honoraires | Fiscal |
|---|---|---|---|---|---|---|---|
| 1 | Bureaux | 251,93 | Immédiate | 1700 m² HD | n.c. | ||
| 1 | Bureaux | 251,93 | Immédiate | 1700 m² HD | n.c. | ||
| RDJ | Activités | 287,36 | Immédiate | 1700 m² HD | n.c. |
Impôt Foncier : 22,24 €//m²/an HT
Taxe Bureau : 11,87 €/m²/an
Prestations :
- Immeuble en structure béton
- Façade en mur rideau et parement carrelage
- Site clos avec fermeture par 2 portails automatiques
- Fibre optique
- Interphone + digicode
- Hall d'accueil
- Ascenseur
- Climatisation
- Mix de cloisonnement amovible et cloisons pleines
- Faux plafond
- Convecteurs électriques d'appoint
- Locaux de stockage léger en RDJ
- 27 parkings au total
- Surface RDC : 287,36 m²
- Accès bâtiment : Moyens Porteurs
- Nbr de portes plain pied : 1
- Ossature : Béton
- Murs périmétriques : Béton
Accessibilité:
Bus Bus 199
RER Palaiseau (B)
Route Nationale N20 et N118
Autoroute Autoroute A6 et A10
Les informations sur les risques auxquels ce bien est exposé sont disponibles sur le site Géorisques : www.georisques.gouv.fr
Voir plus
Afficher les consommations énergétiques
Localisation et transport aux alentours
Favoris
Exporter
Appeler
Contacter
Signaler cette annonce
