Alex Bolton, société de conseil en immobilier d’entreprise est spécialisée dans la transaction locative et la vente d’immeubles de bureaux.Dotée d’une équipe de collaborateurs expérimentés, la soci ...
En savoir plus

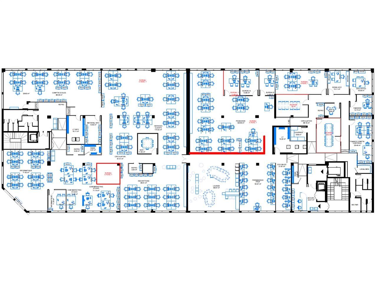
1 411 m² divisible dès 706 m²
Bureau à vendre - 1411 m²
Montrouge (92120)
Publiée : Il y a 14 jours
Au sein d'un immeuble tertiaire activités/ bureaux, en plein coeur de Montrouge, secteur Mairie, nous vous vous proposons un plateau de 1 411 m². L'immeuble est accessible par le métro ligne 4"Mairie de Montrouge" à moins de 300 m. Le plateau est doublement exposé, climatisé et prêt à l'emploi (cloisonné/ câblé).
Le site convient aussi bien à des activités industrielles légères (charge au sol renforcée, Monte-charge et HSP supérieur à 3 m) qu'à des activités de formation puisque le plateau à déjà fait l'objet d'une classification ERP de type R. Le plateau est divisible en deux parties égales pouvant bénéficier d'un accès dédié.
Parkings disponibles dans la copropriété.
Régime Fiscal : Droit d'enregistrement
Honoraires : A la charge de l'acquéreur
Taxe Bureau : 30619 €/m²/an
Prestations :
Accessibilité:
Bus Radiguey (68, 126), Place des Etats-Unis (MONTBUS)
Métro Mairie de Montrouge (4) à 300 m²
Tram Jean Moulin (T3a)
Grand Paris Express Châtillon - Montrouge (L15 Fin 2026)
Autoroute A 6a
Rocade Porte de Châtillon (Périphérique Paris)
Les informations sur les risques auxquels ce bien est exposé sont disponibles sur le site Géorisques : www.georisques.gouv.fr
Le site convient aussi bien à des activités industrielles légères (charge au sol renforcée, Monte-charge et HSP supérieur à 3 m) qu'à des activités de formation puisque le plateau à déjà fait l'objet d'une classification ERP de type R. Le plateau est divisible en deux parties égales pouvant bénéficier d'un accès dédié.
Parkings disponibles dans la copropriété.
| Étage | Type | Surfaces | Dispo | Prix(m²) | Charges | Honoraires | Fiscal |
|---|---|---|---|---|---|---|---|
| 3 | Bureaux | 1411 | Immédiate | 4400 m² HD | n.c. | A la charge de l'acquéreur | Droit d'enregistrement |
Régime Fiscal : Droit d'enregistrement
Honoraires : A la charge de l'acquéreur
Taxe Bureau : 30619 €/m²/an
Prestations :
- Immeuble en copropriété
- Contrôle d'accès extérieur
- Contrôle d'accès intérieur
- Cloisons amovibles
- Climatisation réversible
- Faux plafond
- Faux plancher technique
- Open space
- Hauteur sous Plafond supérieure à 3m
- Chauffage collectif
- Câblage informatique
- Câblage RJ45
- 1 monte-charge 1500 kgs
- 2 ascenseurs
Accessibilité:
Bus Radiguey (68, 126), Place des Etats-Unis (MONTBUS)
Métro Mairie de Montrouge (4) à 300 m²
Tram Jean Moulin (T3a)
Grand Paris Express Châtillon - Montrouge (L15 Fin 2026)
Autoroute A 6a
Rocade Porte de Châtillon (Périphérique Paris)
Les informations sur les risques auxquels ce bien est exposé sont disponibles sur le site Géorisques : www.georisques.gouv.fr
Voir plus
Afficher les consommations énergétiques
Localisation et transport aux alentours
Favoris
Exporter
Appeler
Contacter
Signaler cette annonce










