RCG Bordeaux est un cabinet de conseil en immobilier d'entreprise est située au cœur du quartier des Chartrons au 107 cours Balguerie Stuttenberg à Bordeaux. Cette agence propose un large choix de ...
En savoir plus

358 m²
Bureau à vendre - 358 m²
Bordeaux (33000)
Dernière mise à jour : Il y a 2 jours
A VENDRE OU A LOUER - BUREAUX DE 358 M² - SAINT MICHEL
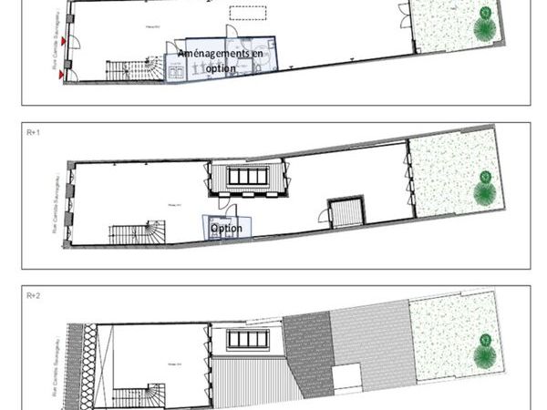
Au coeur du centre historique de Bordeaux, dans le quartier de Saint-Michel, RCG vous propose à la vente ou à la location un immeuble indépendant de bureaux en R+2, en cours de réhabilitation, d'une surface totale de 358 m² .
Façade sur rue conservée.
Travaux de réhabilitation : montage des élévations en ossature bois, pose des menuiseries extérieures y compris la vitrine sur rue, un escalier en bois, sanitaires à chaque niveau, climatisation chauffage réversible.
Patio extérieur.
A proximité de nombreux commerces, des transports en commun et de la Gare Bordeaux Saint-Jean.
Dépôt de garantie : 3 mois de loyer HT/ HC
Honoraires : 6% HT du prix de vente HD à la charge de l'acquéreur
Information sur le Bail :
Taxe foncière à la charge du Preneur
Prestations :
Accessibilité:
Bus Ste Croix (Tram C/D) (BUS-TBNIGHT)
Tram Porte de Bourgogne (TRAMWAY-A), Saint-Michel (TRAMWAY-C, TRAMWAY-D)
SNCF A 5 minutes à pied de la Gare Bordeaux Saint-Jean
Les informations sur les risques auxquels ce bien est exposé sont disponibles sur le site Géorisques : www.georisques.gouv.fr
Au coeur du centre historique de Bordeaux, dans le quartier de Saint-Michel, RCG vous propose à la vente ou à la location un immeuble indépendant de bureaux en R+2, en cours de réhabilitation, d'une surface totale de 358 m² .
Façade sur rue conservée.
Travaux de réhabilitation : montage des élévations en ossature bois, pose des menuiseries extérieures y compris la vitrine sur rue, un escalier en bois, sanitaires à chaque niveau, climatisation chauffage réversible.
Patio extérieur.
A proximité de nombreux commerces, des transports en commun et de la Gare Bordeaux Saint-Jean.
| Étage | Type | Surfaces | Dispo | Prix(m²) | Charges | Honoraires | Fiscal |
|---|---|---|---|---|---|---|---|
| 2 | Bureaux | 46,46 | Décembre 2025 | n.c. | n.c. | 6% HT du prix de vente HD à la charge de l'acquéreur | |
| 1 | Bureaux | 143,35 | Décembre 2025 | n.c. | n.c. | 6% HT du prix de vente HD à la charge de l'acquéreur | |
| RDC | Bureaux | 154,35 | Décembre 2025 | n.c. | n.c. | 6% HT du prix de vente HD à la charge de l'acquéreur | |
| RDC | Accueil | 14,06 | Décembre 2025 | n.c. | n.c. | 6% HT du prix de vente HD à la charge de l'acquéreur |
Dépôt de garantie : 3 mois de loyer HT/ HC
Honoraires : 6% HT du prix de vente HD à la charge de l'acquéreur
Information sur le Bail :
Taxe foncière à la charge du Preneur
Prestations :
- Façade sur rue conservée
- Travaux réalisés :
- Ossature bois
- Matériaux biosourcés
- Vitrine sur rue
- Escalier en bois
- Sanitaires à chaque niveau
- Climatisation/chauffage réversible
- Surface RDC : 168,41 m²
Accessibilité:
Bus Ste Croix (Tram C/D) (BUS-TBNIGHT)
Tram Porte de Bourgogne (TRAMWAY-A), Saint-Michel (TRAMWAY-C, TRAMWAY-D)
SNCF A 5 minutes à pied de la Gare Bordeaux Saint-Jean
Les informations sur les risques auxquels ce bien est exposé sont disponibles sur le site Géorisques : www.georisques.gouv.fr
Voir plus
Afficher les consommations énergétiques
Favoris
Exporter
Appeler
Contacter
Signaler cette annonce










