RCG Bordeaux est un cabinet de conseil en immobilier d'entreprise est située au cœur du quartier des Chartrons au 107 cours Balguerie Stuttenberg à Bordeaux. Cette agence propose un large choix de ...
En savoir plus

360 m²
Bureau à vendre - 360 m²
Bordeaux (33000)
Dernière mise à jour : Il y a 3 jours
A VENDRE - BUREAUX DE 360 M² DIVISIBLES - BORDEAUX BARRIERE DE PESSAC
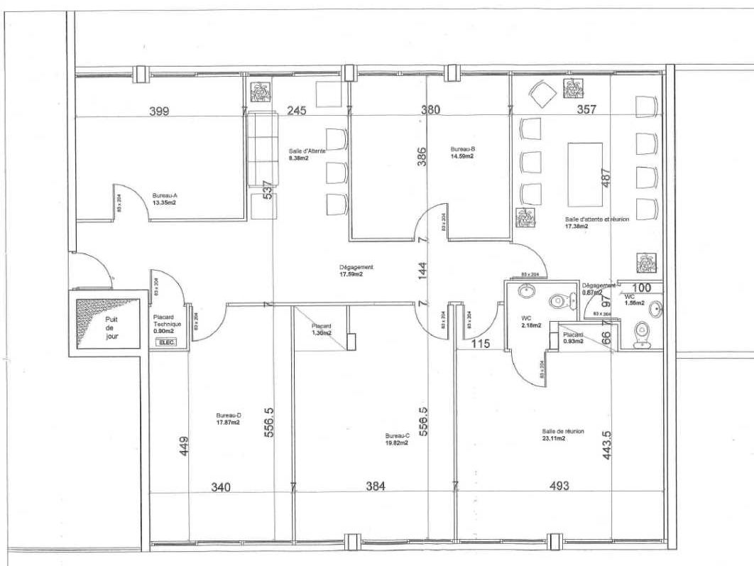
A proximité des boulevards, RCG vous propose à l'acquisition une surface de bureaux de 360 m² environ en Rez-de-chaussée.
Bureaux cloisonnés, salles de réunion.
Locaux PMR classés ERP 5ème catégorie.
Idéal professions libérales
Régime Fiscal : Droits d'enregistrement
Honoraires : 7% HT du prix de vente HD à la charge de l'acquéreur
Prestations :
Accessibilité:
Bus Barrière de Pessac (Ligne 4, Ligne 9, Ligne 11), Caserne Boudet (Ligne 26)
Tram Barrière Saint-Genès (Ligne B)
Les informations sur les risques auxquels ce bien est exposé sont disponibles sur le site Géorisques : www.georisques.gouv.fr
A proximité des boulevards, RCG vous propose à l'acquisition une surface de bureaux de 360 m² environ en Rez-de-chaussée.
Bureaux cloisonnés, salles de réunion.
Locaux PMR classés ERP 5ème catégorie.
Idéal professions libérales
| Étage | Type | Surfaces | Dispo | Prix(m²) | Charges | Honoraires | Fiscal |
|---|---|---|---|---|---|---|---|
| RDC | Bureaux | 360 | Immédiate | 3377,78 m² HD net vendeur | n.c. | 7% HT du prix de vente HD à la charge de l'acquéreur | Droits d'enregistrement |
Régime Fiscal : Droits d'enregistrement
Honoraires : 7% HT du prix de vente HD à la charge de l'acquéreur
Prestations :
- Immeuble années 80
- ERP 5
- Locaux lumineux (traversants)
- Fenêtres double vitrage
- Chauffage électrique
- Accueil
- 12 bureaux cloisonnés
- Cloisonnement amovible
- Local d'archives en sous-sol
- Parking privatif
- Surface RDC : 360 m²
Accessibilité:
Bus Barrière de Pessac (Ligne 4, Ligne 9, Ligne 11), Caserne Boudet (Ligne 26)
Tram Barrière Saint-Genès (Ligne B)
Les informations sur les risques auxquels ce bien est exposé sont disponibles sur le site Géorisques : www.georisques.gouv.fr
Voir plus
Afficher les consommations énergétiques
Favoris
Exporter
Appeler
Contacter
Signaler cette annonce










