L’agence CBRE Toulouse conseille et accompagne les chefs d’entreprise dans leurs projets immobiliers quels que soient leur taille et leur secteur d’activité. Spécialistes de la transaction de burea ...
En savoir plus

1 000 m² divisible dès 200 m²
HT HC
Location bureau - 1000 m²
Toulouse (31000)
Dernière mise à jour : Il y a 7 mois
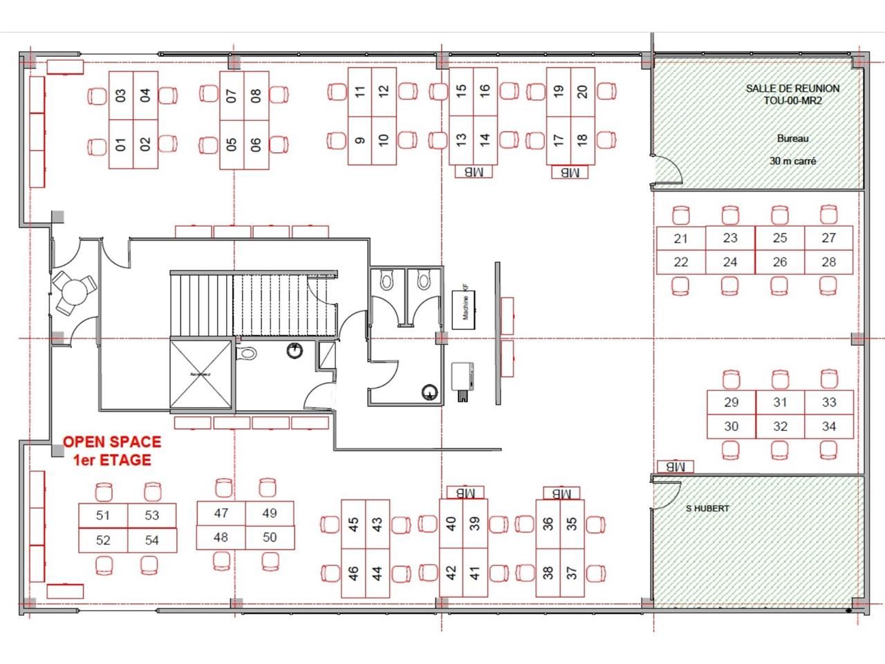
Bureaux à louer représentant deux étages entiers, dans un immeuble en R+2, au coeur du Parc Tertiaire de Basso-Cambo, sur l'ouest Toulousain.
Bureaux à louer dans un immeuble en R+2.
Intégralité des 1er et 2ème étages .
Livrés en l'état.
Accès immédiat par les rocades Ouest et Arc-en-Ciel.
Lignes de bus : 18/21/25/48/53/58/L11.
À 500 m du métro ligne A Station terminus Basso-Cambo.
Impôt Foncier : 20 €/m²/an en sus
Régime Fiscal : T.V.A.
Dépôt de garantie : 3 mois de loyer HT/HC
Paiement Loyer : trimestriel
Honoraires : 15% (+TVA) du loyer annuel HT HC à la charge du preneur
Information sur le Bail :
(Locaux livrés en l'état) Accompagnement travaux : nous consulter Loyer et charges payables par trimestre d'avance
Prestations :
Accessibilité:
Route Accès immédiat par les rocades Ouest et Arc-en-Ciel.
Bus Lignes de bus : 18/21/25/48/53/58/L11.
Metro À 500 m du métro ligne A Station terminus Basso-Cambo.
Les informations sur les risques auxquels ce bien est exposé sont disponibles sur le site Géorisques : www.georisques.gouv.fr
Bureaux à louer dans un immeuble en R+2.
Intégralité des 1er et 2ème étages .
Livrés en l'état.
Accès immédiat par les rocades Ouest et Arc-en-Ciel.
Lignes de bus : 18/21/25/48/53/58/L11.
À 500 m du métro ligne A Station terminus Basso-Cambo.
| Étage | Type | Surfaces | Dispo | Loyer | Charges | Type de bailRév. annuelle |
|---|---|---|---|---|---|---|
| 1 | Bureaux | 300 | Immédiate | 119 m²/an HT HC | 35 m²/an HT | 3-6-9 ansIndice ILAT |
| 1 | Bureaux | 200 | Immédiate | 119 m²/an HT HC | 35 m²/an HT | 3-6-9 ansIndice ILAT |
| 2 | Bureaux | 500 | Immédiate | 119 m²/an HT HC | 35 m²/an HT | 3-6-9 ansIndice ILAT |
Impôt Foncier : 20 €/m²/an en sus
Régime Fiscal : T.V.A.
Dépôt de garantie : 3 mois de loyer HT/HC
Paiement Loyer : trimestriel
Honoraires : 15% (+TVA) du loyer annuel HT HC à la charge du preneur
Information sur le Bail :
(Locaux livrés en l'état) Accompagnement travaux : nous consulter Loyer et charges payables par trimestre d'avance
Prestations :
- Dans un immeuble en R+2 avec ascenseur.
- Accès livraison en RdC.
- Site entièrement clôturé avec 2 entrées (portails électriques).
- Douche au RdC.
- Surfaces mitoyennes au 1er étage.
- Locaux livrés en l'état, câblés et climatisés.
- 23 emplacements de voitures extérieurs par étage (soit 46 places au total).
Accessibilité:
Route Accès immédiat par les rocades Ouest et Arc-en-Ciel.
Bus Lignes de bus : 18/21/25/48/53/58/L11.
Metro À 500 m du métro ligne A Station terminus Basso-Cambo.
Les informations sur les risques auxquels ce bien est exposé sont disponibles sur le site Géorisques : www.georisques.gouv.fr
Voir plus
Afficher les consommations énergétiques
Favoris
Exporter
Appeler
Contacter
Signaler cette annonce










