L’agence CBRE Lille conseille et accompagne les chefs d’entreprise dans leurs projets immobiliers quels que soient leur taille et leur secteur d’activité. Spécialistes de la transaction de bureaux, ...
En savoir plus

4 434 m² divisible dès 1 098 m²
HT HC
Location bureau - 4434 m²
Saint-André-lez-Lille (59350)
Dernière mise à jour : Il y a 4 mois
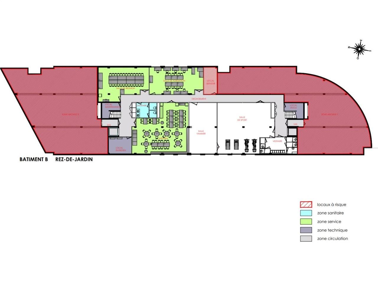
L'offre idéale pour votre entreprise : découvrez des bureaux équipés, répondant à toutes les attentes des utilisateurs (ascenseurs, climatisation, faux-plafond, menuiserie double vitrage), des services de standing (cafétéria/tisanerie, vestiaires, salle de sport), une zone de stockage possible en sous-sol. L'immeuble bénéficie d'un excellent ratio de parking, avec 150 places extérieures !
Situé sur le Parc du Canon d'or à Saint André lez Lille au sein d'un bâtiment à l'architecture soignée, vous bénéficiez d'un bel effet d'enseigne !
Régime Fiscal : T.V.A.
Dépôt de garantie : 3 mois de loyer HT/HC
Paiement Loyer : trimestriel
Honoraires : 15% HT du loyer annuel HT/HC à la charge du preneur
Prestations :
Accessibilité:
Tramway Ter (9min de Lille Flandres)-Station «Saint André» Environ 10 min à pied
Bus Bus (12min de Lille Flandres) -Arrêt « Faidherbe» Environ 2 min à pied
Les informations sur les risques auxquels ce bien est exposé sont disponibles sur le site Géorisques : www.georisques.gouv.fr
Situé sur le Parc du Canon d'or à Saint André lez Lille au sein d'un bâtiment à l'architecture soignée, vous bénéficiez d'un bel effet d'enseigne !
| Étage | Type | Surfaces | Dispo | Loyer | Charges | Type de bailRév. annuelle |
|---|---|---|---|---|---|---|
| RDJ | Bureaux | 540 | Immédiate | 120 m²/an HT HC | 3-6-9 ansIndice ILAT | |
| RDJ | Bureaux | 537,58 | Immédiate | 80 m²/an HT HC | 3-6-9 ansIndice ILAT | |
| RDC | Bureaux | 1098,09 | Immédiate | 165 m²/an HT HC | 3-6-9 ansIndice ILAT | |
| 1 | Bureaux | 1102,79 | Immédiate | 165 m²/an HT HC | 3-6-9 ansIndice ILAT | |
| 2 | Bureaux | 1155,48 | Immédiate | 165 m²/an HT HC | 3-6-9 ansIndice ILAT |
Régime Fiscal : T.V.A.
Dépôt de garantie : 3 mois de loyer HT/HC
Paiement Loyer : trimestriel
Honoraires : 15% HT du loyer annuel HT/HC à la charge du preneur
Prestations :
- Ascenseurs
- Climatisation
- Cafétéria/Tisanerie
- Faux plafond
- Menuiserie double vitrage
- Vestiaires
- Salle de sport
- Zone de stockage
- Parking extérieur :
- 150 places
- Loyer 450 euros HT HC/U/an
- Surface RDC : 1098,09 m²
Accessibilité:
Tramway Ter (9min de Lille Flandres)-Station «Saint André» Environ 10 min à pied
Bus Bus (12min de Lille Flandres) -Arrêt « Faidherbe» Environ 2 min à pied
Les informations sur les risques auxquels ce bien est exposé sont disponibles sur le site Géorisques : www.georisques.gouv.fr
Voir plus
Afficher les consommations énergétiques
Localisation et transport aux alentours
Favoris
Exporter
Appeler
Contacter
Signaler cette annonce






