Conseil en immobilier d'entreprise, Cushman & Wakefield est un acteur incontournable au rayonnement international. Cushman & Wakefield offre des solutions dans toutes les étapes que comporte un p ...
En savoir plus



4 325 m² divisible dès 700 m²
HT HC
Location bureau - 4325 m²
Montigny-le-Bretonneux (78180)
Dernière mise à jour : Il y a 5 mois
STAR CENTER
À louer à Montigny-le-Bretonneux, dans le secteur prisé de Saint-Quentin-en-Yvelines, un immeuble moderne certifié HQE offrant 4 325 m² de bureaux divisibles dès 700 m², disponible à partir du 15 janvier 2026.
À seulement 10 minutes à pied de la gare SQY (RER C, TER, lignes N et U) et proche des autoroutes A12, A13 et A86, l'emplacement garantit un accès rapide à Paris et aux grands pôles économiques de l'ouest parisien.
Les plateaux, lumineux et modulables, sont entièrement climatisés et offrent un ratio de stationnement rare : 129 places en sous-sol, 25 en extérieur, plus 10 bornes électriques mutualisées.
L'ensemble bénéficie également d'un restaurant interentreprises.
Un site idéal pour les entreprises recherchant visibilité, confort et efficacité dans un environnement tertiaire dynamique et bien desservi.
Impôt Foncier : 35 €//m²/an TTC
Régime Fiscal : T.V.A.
Dépôt de garantie : 3 mois de loyer HT/HC
Paiement Loyer : Trimestriel
Honoraires : 15 % HT du loyer annuel HT/HC à la charge du preneur.
Taxe Bureau : 13,02 €/m²/an
Information sur le Bail :
Assurance : 2,40 euros/m²/an TTC La taxe sur les bureaux inclue la TASS
Prestations :
Accessibilité:
SNCF St-Quentin en Yvelines (R, TER)
RER St-Quentin en Yvelines (C)
Les informations sur les risques auxquels ce bien est exposé sont disponibles sur le site Géorisques : www.georisques.gouv.fr
À louer à Montigny-le-Bretonneux, dans le secteur prisé de Saint-Quentin-en-Yvelines, un immeuble moderne certifié HQE offrant 4 325 m² de bureaux divisibles dès 700 m², disponible à partir du 15 janvier 2026.
À seulement 10 minutes à pied de la gare SQY (RER C, TER, lignes N et U) et proche des autoroutes A12, A13 et A86, l'emplacement garantit un accès rapide à Paris et aux grands pôles économiques de l'ouest parisien.
Les plateaux, lumineux et modulables, sont entièrement climatisés et offrent un ratio de stationnement rare : 129 places en sous-sol, 25 en extérieur, plus 10 bornes électriques mutualisées.
L'ensemble bénéficie également d'un restaurant interentreprises.
Un site idéal pour les entreprises recherchant visibilité, confort et efficacité dans un environnement tertiaire dynamique et bien desservi.
| Étage | Type | Surfaces | Dispo | Loyer | Charges | Type de bailRév. annuelle |
|---|---|---|---|---|---|---|
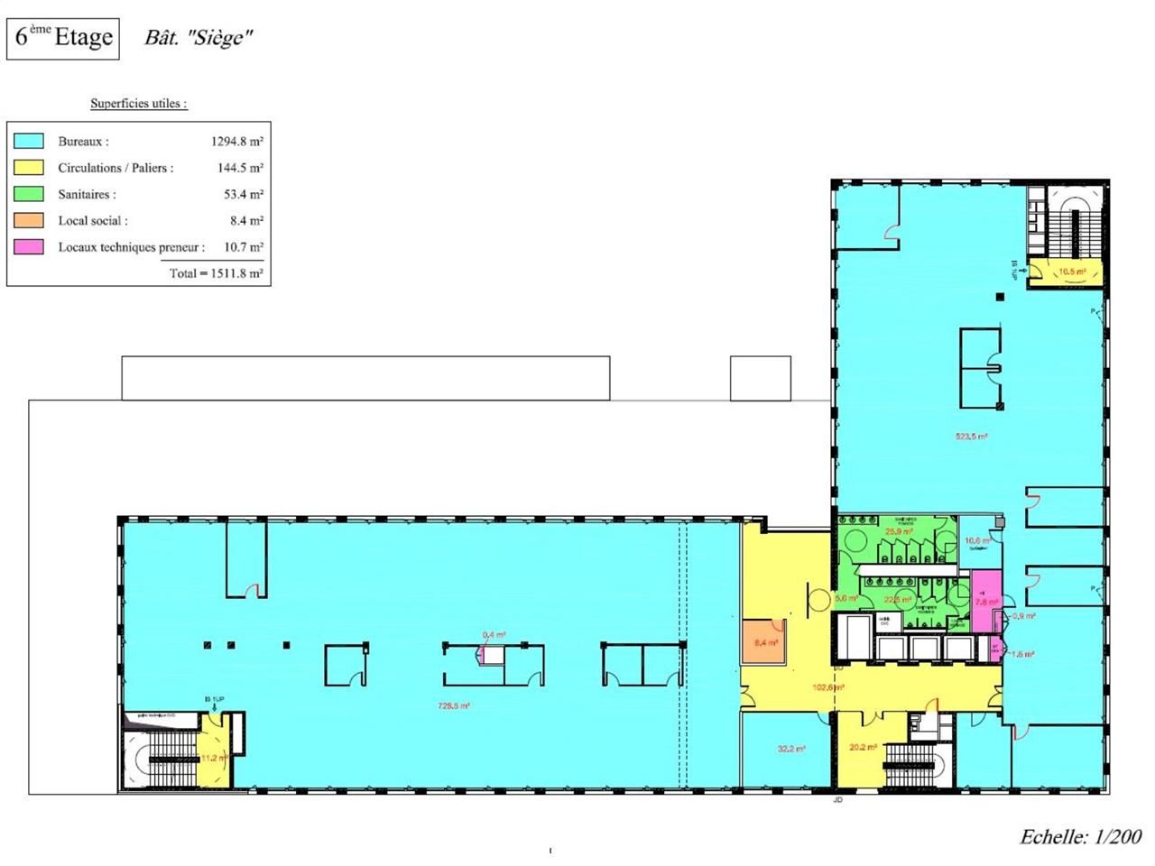
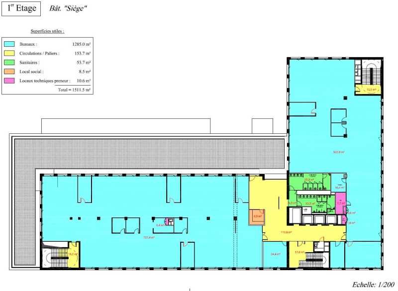
| 7 | Bureaux | 700 | Immédiate | 190 HT/HC/m²/an | 3-6-9 ansSur l'indice ILAT | |
| 6 | Bureaux | 702 | Immédiate | 190 HT/HC/m²/an | 3-6-9 ansSur l'indice ILAT | |
| 7 | Bureaux | 970 | Immédiate | 190 HT/HC/m²/an | 3-6-9 ansSur l'indice ILAT | |
| 6 | Bureaux | 982 | Immédiate | 190 HT/HC/m²/an | 3-6-9 ansSur l'indice ILAT | |
| 2 | Bureaux | 971 | Immédiate | 190 HT/HC/m²/an | 3-6-9 ansSur l'indice ILAT | |
| Parkings | Immédiate | 500 HT/HC/place/an | 3-6-9 ansSur l'indice ILAT | |||
| Parkings | Immédiate | 500 HT/HC/place/an | 3-6-9 ansSur l'indice ILAT | |||
| Parkings | Immédiate | 250 HT/HC/place/an | 3-6-9 ansSur l'indice ILAT | |||
| Etage -4 | Parkings | Immédiate | 1000 HT/HC/place/an | 3-6-9 ansSur l'indice ILAT |
Impôt Foncier : 35 €//m²/an TTC
Régime Fiscal : T.V.A.
Dépôt de garantie : 3 mois de loyer HT/HC
Paiement Loyer : Trimestriel
Honoraires : 15 % HT du loyer annuel HT/HC à la charge du preneur.
Taxe Bureau : 13,02 €/m²/an
Information sur le Bail :
Assurance : 2,40 euros/m²/an TTC La taxe sur les bureaux inclue la TASS
Prestations :
- Ensemble immobilier construit en 2014 pour le compte de Mercedes et composé de 2 immeubles : un immeuble de bureaux en R+7 d'environ 13 000 m² et un bâtiment d'activité d'environ 5 000 m², le tout situé à 10 min à pied de la gare de SQY
- Espaces de travail modernes et flexibles
- Chaque étage est divisible en 2 lots
- Bureaux livrés en open space et climatisés
- Hsp de 2,85m
- Débit d'air renforcé : 40 m3/h/occupant
- La chaleur des salles serveur participe au chauffage des bureaux
- Ratio de pks : 1 place pour 28 m² loués
Accessibilité:
SNCF St-Quentin en Yvelines (R, TER)
RER St-Quentin en Yvelines (C)
Les informations sur les risques auxquels ce bien est exposé sont disponibles sur le site Géorisques : www.georisques.gouv.fr
Voir plus
Afficher les consommations énergétiques
Localisation et transport aux alentours
Favoris
Exporter
Appeler
Contacter
Signaler cette annonce










