L’agence CBRE Lille conseille et accompagne les chefs d’entreprise dans leurs projets immobiliers quels que soient leur taille et leur secteur d’activité. Spécialistes de la transaction de bureaux, ...
En savoir plus

2 298 m² divisible dès 114 m²
HT HC
Location bureau - 2298 m²
Marquette-lez-Lille (59520)
Dernière mise à jour : Il y a 4 mois
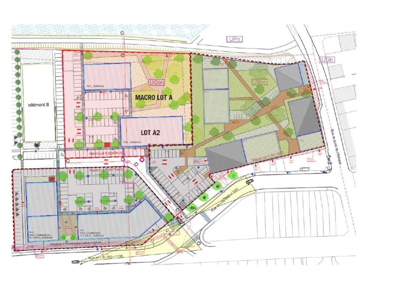
Immeuble QUIETUDES
Découvrez une opportunité exceptionnelle d'acquérir des bureaux à construire, disponibles à la vente avec une livraison prévue pour fin 2026. Situés rue de Lille à Marquette-lez-Lille, en bordure de la Deûle et de la voie de halage, ces bureaux bénéficient d'un emplacement stratégique avec de nombreux services à proximité. Profitez de surfaces modulables pour adapter votre espace de travail à vos besoins spécifiques. Ne manquez pas cette chance unique de créer un environnement professionnel sur mesure dans un quartier dynamique et en pleine expansion. Contactez-nous dès maintenant pour plus d'informations et pour réserver votre futur espace de travail !
A deux pas de ces immeubles, vous pourrez bénéficier du pôle culturel de la ville, le «Kiosk», ou encore du complexe sportif et pôle raquette.
Prestations :
Accessibilité:
Aeroport Lille Lesquin à 10 min
Route Voie Rapide Urbaine
SNCF Gare à 10 min
Bus Ligne 14 arrêt : Amidonnerie
Les informations sur les risques auxquels ce bien est exposé sont disponibles sur le site Géorisques : www.georisques.gouv.fr
Découvrez une opportunité exceptionnelle d'acquérir des bureaux à construire, disponibles à la vente avec une livraison prévue pour fin 2026. Situés rue de Lille à Marquette-lez-Lille, en bordure de la Deûle et de la voie de halage, ces bureaux bénéficient d'un emplacement stratégique avec de nombreux services à proximité. Profitez de surfaces modulables pour adapter votre espace de travail à vos besoins spécifiques. Ne manquez pas cette chance unique de créer un environnement professionnel sur mesure dans un quartier dynamique et en pleine expansion. Contactez-nous dès maintenant pour plus d'informations et pour réserver votre futur espace de travail !
A deux pas de ces immeubles, vous pourrez bénéficier du pôle culturel de la ville, le «Kiosk», ou encore du complexe sportif et pôle raquette.
| Étage | Type | Surfaces | Dispo | Loyer | Charges | Type de bailRév. annuelle |
|---|---|---|---|---|---|---|
| 1 | Bureaux | 622 | 15 mois ap. déb. trx | 180 m²/an HT HC | 35 HT/m²/an | 6 ans fermes |
| 2 | Bureaux | 622 | 15 mois ap. déb. trx | 180 m²/an HT HC | 35 HT/m²/an | 6 ans fermes |
| 3 | Bureaux | 527 | 15 mois ap. déb. trx | 180 m²/an HT HC | 35 HT/m²/an | 6 ans fermes |
| 4 | Bureaux | 527 | 15 mois ap. déb. trx | 180 m²/an HT HC | 35 HT/m²/an | 6 ans fermes |
Prestations :
- Ascenseur
- Belle luminosité
- Climatisation réversible
- Fibre optique
- Plateaux paysagers
- Sanitaires
- Terrasse au R+3 de 85 m² :
- Loyer : Nous consulter
- Prix de vente : 105 000 euros HT
- Place de stationnement :
- 19 places couvertes
- Loyer : 850 euros HT/U/an
- Prix de vente : 11 000 euros HT/U
- 29 places extérieures
- Loyer : 600 euros HT/U/an
- Prix de vente : 7 000 euros HT/U
- Le détail des espaces et les prix sont communiqués sur la base de surfaces SUBL (Surfaces Utiles Brutes Locatives).
Accessibilité:
Aeroport Lille Lesquin à 10 min
Route Voie Rapide Urbaine
SNCF Gare à 10 min
Bus Ligne 14 arrêt : Amidonnerie
Les informations sur les risques auxquels ce bien est exposé sont disponibles sur le site Géorisques : www.georisques.gouv.fr
Voir plus
Afficher les consommations énergétiques
Localisation et transport aux alentours
Favoris
Exporter
Appeler
Contacter
Signaler cette annonce






