MALSH Realty accompagne les entreprises dans leurs projets immobiliers, qu’il s’agisse de locaux d’activités, de bureaux, de commerces, d’entrepôts ou de terrains. L’agence intervient aussi bien au ...
En savoir plus

532 m² divisible dès 258 m²
Bureau à vendre - 532 m²
Lyon 5 (69005)
Dernière mise à jour : Il y a 2 mois
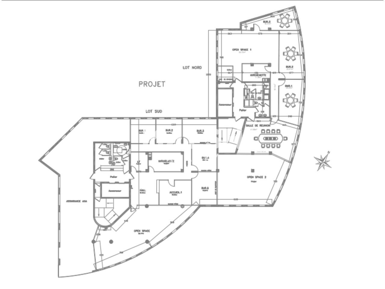
Bureaux - A LOUER - Lyon 5 - 573 m² divisibles en deux lots
Bureaux à louer au sein d'un bel immeuble situé à l'entrée du tunnel de Fourvière surplombant la Saône et faisant face à la Presqu'île, au pôle multimodal Perrache et jouxtant le quartier du Vieux Lyon. Les surfaces proposées sont livrées rénovées en plateau nu offrant aux futurs occupants de nombreuses possibilités d'aménagement. Vue imprenable sur les quais de Saône depuis le 6 ème étage.
Bureaux - A LOUER - Lyon 5 - 573 m² divisibles en deux lots
Impôt Foncier : 8427 €/HT/An
Régime Fiscal : Droits d'enregistrement
Dépôt de garantie : 3 mois de loyer HT/HC
Honoraires : 2,50 % HT du montant de la vente HDE, à la charge de l'acquéreur
Prestations :
Accessibilité:
SNCF Lyon-Perrache (France)
Tram Lignes T1 et T2
Bus Lignes 8, 31, 34, 46, 49, 55, 60 et 63
Métro Ligne A - Arrêt Perrache
Les informations sur les risques auxquels ce bien est exposé sont disponibles sur le site Géorisques : www.georisques.gouv.fr
Bureaux à louer au sein d'un bel immeuble situé à l'entrée du tunnel de Fourvière surplombant la Saône et faisant face à la Presqu'île, au pôle multimodal Perrache et jouxtant le quartier du Vieux Lyon. Les surfaces proposées sont livrées rénovées en plateau nu offrant aux futurs occupants de nombreuses possibilités d'aménagement. Vue imprenable sur les quais de Saône depuis le 6 ème étage.
Bureaux - A LOUER - Lyon 5 - 573 m² divisibles en deux lots
| Étage | Type | Surfaces | Dispo | Prix(m²) | Charges | Honoraires | Fiscal |
|---|---|---|---|---|---|---|---|
| 6 | Bureaux | 273,94 | Immédiate | 3600 m² HD | 7300 HT/ | 2,50 % HT du montant de la vente HDE, à la charge de l'acquéreur | Droits d'enregistrement |
| 6 | Bureaux | 258,25 | Immédiate | 3600 m² HD | 7300 HT/ | 2,50 % HT du montant de la vente HDE, à la charge de l'acquéreur | Droits d'enregistrement |
| Sous-Sol | Parkings | Immédiate | 22000 m² HD | 318 HT/An l'unité | 2,50 % HT du montant de la vente HDE, à la charge de l'acquéreur | Droits d'enregistrement |
Impôt Foncier : 8427 €/HT/An
Régime Fiscal : Droits d'enregistrement
Dépôt de garantie : 3 mois de loyer HT/HC
Honoraires : 2,50 % HT du montant de la vente HDE, à la charge de l'acquéreur
Prestations :
- Locaux entièrement rénovés
- Livrés en plateau nu
- Immeuble compatible ERP5
- Chauffage et climatisation par géothermie
- Accès PMR avec plateforme élévatrice
- Sanitaires en parties communes
- Faux plafond
- Pavés LED
- Ascenseur
- Contrôle d'accès
- Choix du sol à définir
Accessibilité:
SNCF Lyon-Perrache (France)
Tram Lignes T1 et T2
Bus Lignes 8, 31, 34, 46, 49, 55, 60 et 63
Métro Ligne A - Arrêt Perrache
Les informations sur les risques auxquels ce bien est exposé sont disponibles sur le site Géorisques : www.georisques.gouv.fr
Voir plus
Afficher les consommations énergétiques
Localisation et transport aux alentours
Favoris
Exporter
Appeler
Contacter
Signaler cette annonce





