L’agence CBRE Nantes conseille et accompagne les chefs d’entreprise dans leurs projets immobiliers quels que soient leur taille et leur secteur d’activité. Spécialistes de la transaction de bureaux ...
En savoir plus

275 m²
HT HC
Location bureau - 275 m²
Carquefou (44470)
Dernière mise à jour : Il y a 3 jours
CBRE vous propose un immeuble restructuré à neuf en plein coeur de Carquefou, avec un excellent ratio parking (1 place pour 20m²), inclus dans le loyer. La surface a été rénovée avec goût et dispose d'une triple exposition.
Venez vite décourvir cette surface de bureaux à 15 minutes en voiture du centre-ville de Nantes, avec un loyer très attractif.
Impôt Foncier : 9,25 €/m²/an
Régime Fiscal : T.V.A.
Dépôt de garantie : 3 mois de loyer HT/HC
Honoraires : A la charge du preneur.
Prestations :
Accessibilité:
Périphérique "Porte de Carquefou"
Bus ligne 85 et 77 "Méditérannée"
Les informations sur les risques auxquels ce bien est exposé sont disponibles sur le site Géorisques : www.georisques.gouv.fr
Venez vite décourvir cette surface de bureaux à 15 minutes en voiture du centre-ville de Nantes, avec un loyer très attractif.
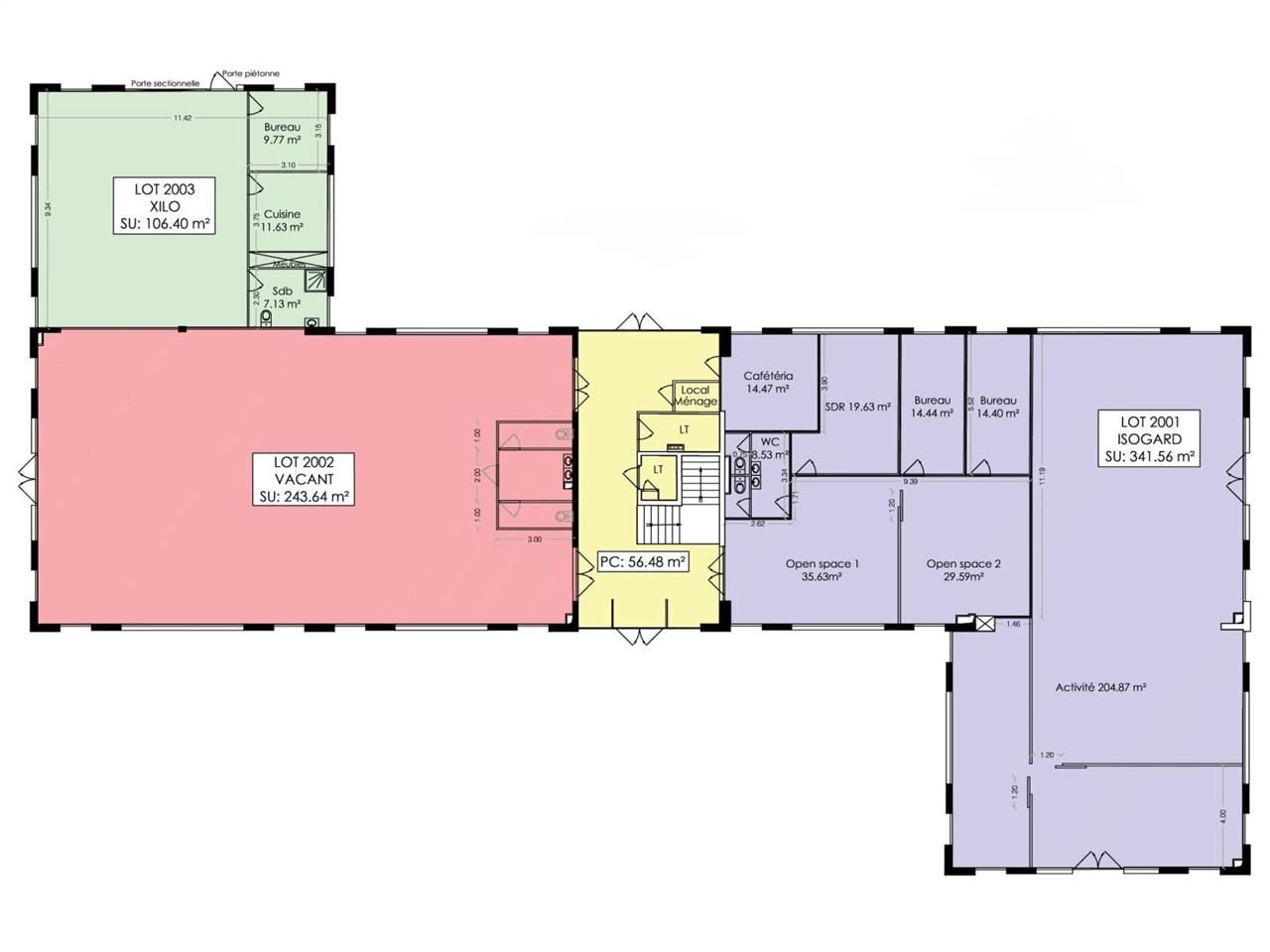
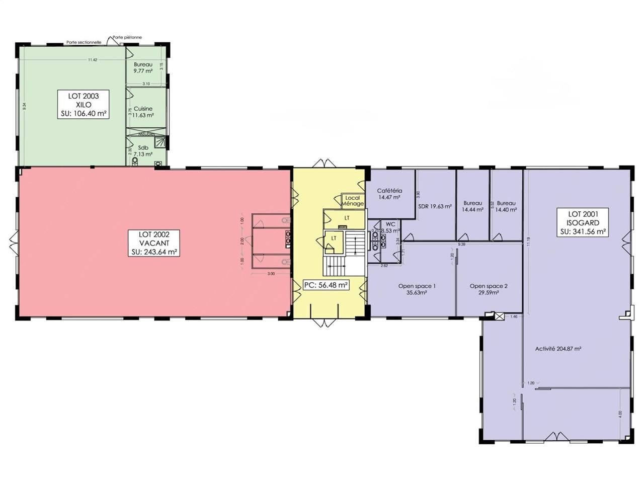
| Étage | Type | Surfaces | Dispo | Loyer | Charges | Type de bailRév. annuelle |
|---|---|---|---|---|---|---|
| 1 | Bureaux | 274,81 | Immédiate | 110 m²/an HT HC | 21,5 HT/m²/an | 3-6-9 ansIndice ILAT |
| Parkings | Immédiate | 3-6-9 ansIndice ILAT |
Impôt Foncier : 9,25 €/m²/an
Régime Fiscal : T.V.A.
Dépôt de garantie : 3 mois de loyer HT/HC
Honoraires : A la charge du preneur.
Prestations :
- Site sécurisé
- Digicode
- Ratio parking : 1p/ 19m²
- Plateaux rénovés
- Open space
- Possibilité de cloisonner
- Goulottes périphériques
- Sanitaires privatifs
- Parking privatif
- Immeuble indépendant
Accessibilité:
Périphérique "Porte de Carquefou"
Bus ligne 85 et 77 "Méditérannée"
Les informations sur les risques auxquels ce bien est exposé sont disponibles sur le site Géorisques : www.georisques.gouv.fr
6 Parkings ext.
Voir plus
Afficher les consommations énergétiques
Favoris
Exporter
Appeler
Contacter
Signaler cette annonce










