L’agence CBRE Nice-Sophia Antipolis conseille et accompagne les chefs d’entreprise dans leurs projets immobiliers quels que soient leur taille et leur secteur d’activité. Spécialistes de la transac ...
En savoir plus

423 m² divisible dès 173 m²
HT HC
Location bureau - 423 m²
Cagnes-sur-Mer (06800)
Dernière mise à jour : Il y a 9 jours
BUREAUX A LOUER CAGNES SUR MER
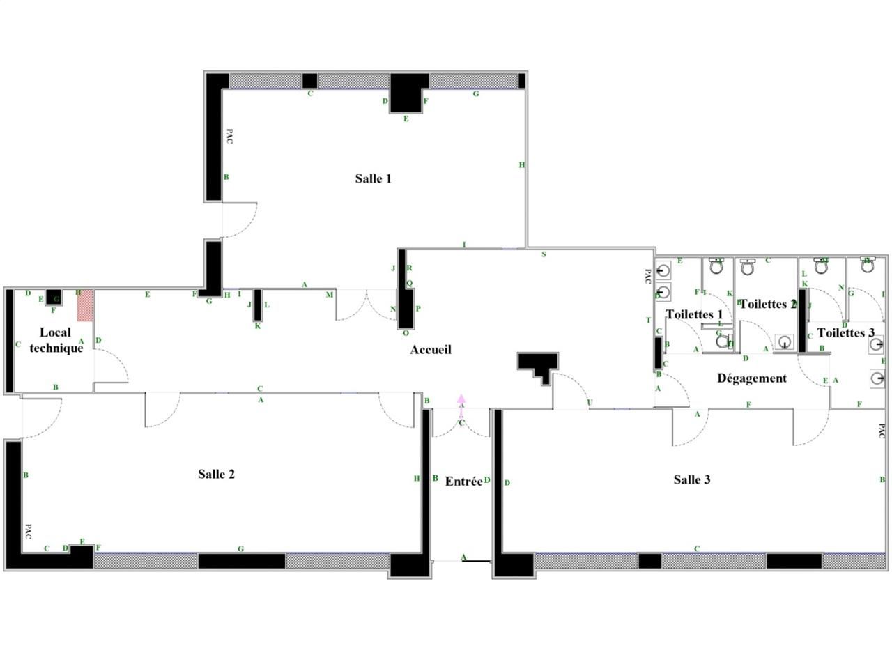
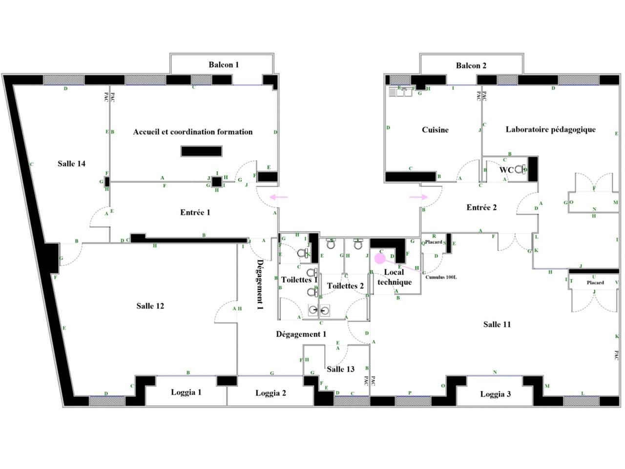
CAGNES SUR MER (06800) - CBRE vous propose à la location un ensemble de bureaux d'environ 423 m², clés en main et hautement fonctionnels. Répartis sur deux niveaux et divisibles en deux lots distincts, ces bureaux à louer en excellent état sont parfaitement adaptés à une installation rapide. Idéalement équipés pour la formation ou le coworking (multiples salles, sanitaires dont 1 PMR, espace détente/kitchenette), ils offrent un environnement de travail de qualité.
Installer vos bureaux à CAGNES SUR MER (06800), c'est opter pour une localisation stratégique accessible, un cadre de travail bénéfique et une dynamique économique régionale favorable, le tout dans un environnement potentiellement abordable et moins dense que les hyper-centres des grandes villes voisines.
Si vous êtes intéressés par ces bureaux à louer à CAGNES SUR MER (06800) ou si vous souhaitez obtenir plus d'informations, n'hésitez pas à nous contacter pour planifier une visite et obtenir toutes les informations requises pour votre projet immobilier.
Impôt Foncier : 19 €//m²/an HC
Régime Fiscal : T.V.A.
Dépôt de garantie : 3 mois de loyer HT/HC
Paiement Loyer : trimestriel
Honoraires : 15% HT du loyer annuel HT/HC à la charge du preneur
Taxe Bureau : 0,99 €/m²/an
Prestations :
Accessibilité:
Bus Réseau urbain
Transilien Cagnes sur Mer (SNCF)
Autoroute A8 (sortie 48)
Aeroport International de Nice à 10 mn
Les informations sur les risques auxquels ce bien est exposé sont disponibles sur le site Géorisques : www.georisques.gouv.fr
CAGNES SUR MER (06800) - CBRE vous propose à la location un ensemble de bureaux d'environ 423 m², clés en main et hautement fonctionnels. Répartis sur deux niveaux et divisibles en deux lots distincts, ces bureaux à louer en excellent état sont parfaitement adaptés à une installation rapide. Idéalement équipés pour la formation ou le coworking (multiples salles, sanitaires dont 1 PMR, espace détente/kitchenette), ils offrent un environnement de travail de qualité.
Installer vos bureaux à CAGNES SUR MER (06800), c'est opter pour une localisation stratégique accessible, un cadre de travail bénéfique et une dynamique économique régionale favorable, le tout dans un environnement potentiellement abordable et moins dense que les hyper-centres des grandes villes voisines.
Si vous êtes intéressés par ces bureaux à louer à CAGNES SUR MER (06800) ou si vous souhaitez obtenir plus d'informations, n'hésitez pas à nous contacter pour planifier une visite et obtenir toutes les informations requises pour votre projet immobilier.
| Étage | Type | Surfaces | Dispo | Loyer | Charges | Type de bailRév. annuelle |
|---|---|---|---|---|---|---|
| RDC | Bureaux | 173 | Immédiate | 170 m²/an HT HC | 41 HT/m²/an | 3-6-9 ansIndice ILAT |
| 1 | Bureaux | 250 | Immédiate | 170 m²/an HT HC | 41 HT/m²/an | 3-6-9 ansIndice ILAT |
Impôt Foncier : 19 €//m²/an HC
Régime Fiscal : T.V.A.
Dépôt de garantie : 3 mois de loyer HT/HC
Paiement Loyer : trimestriel
Honoraires : 15% HT du loyer annuel HT/HC à la charge du preneur
Taxe Bureau : 0,99 €/m²/an
Prestations :
- Prêt à l'emploi : entièrement aménagés et cloisonnés, aucun travaux.
- Finitions soignées: faux-plafonds, plinthes périphériques, cadre professionnel et moderne
- Confort thermique: climatisation réversible
- Espace détente: kitchenette, balcons en R+1
- Nombreux sanitaires, dont un accessible PMR au RDC.
- Connectivité et fonctionnalité : fibre
- Organisation flexible: répartition sur deux niveaux avec bureaux et salles dédiées (3 au RDC, 2 en R+1).
- Surface RDC : 173 m²
Accessibilité:
Bus Réseau urbain
Transilien Cagnes sur Mer (SNCF)
Autoroute A8 (sortie 48)
Aeroport International de Nice à 10 mn
Les informations sur les risques auxquels ce bien est exposé sont disponibles sur le site Géorisques : www.georisques.gouv.fr
Voir plus
Afficher les consommations énergétiques
Favoris
Exporter
Appeler
Contacter
Signaler cette annonce
