Besoin d'un conseil en immobilier ? Nous sommes une équipe dédiée à 100% à nos clients utilisateurs avec des services variés (stratégie immobilière, recherche immobilière, renégociation de bail, dé ...
En savoir plus

500 m²
Activité/Entrepôt à vendre - 500 m²
Rillieux-la-Pape (69140)
Dernière mise à jour : Il y a 4 jours
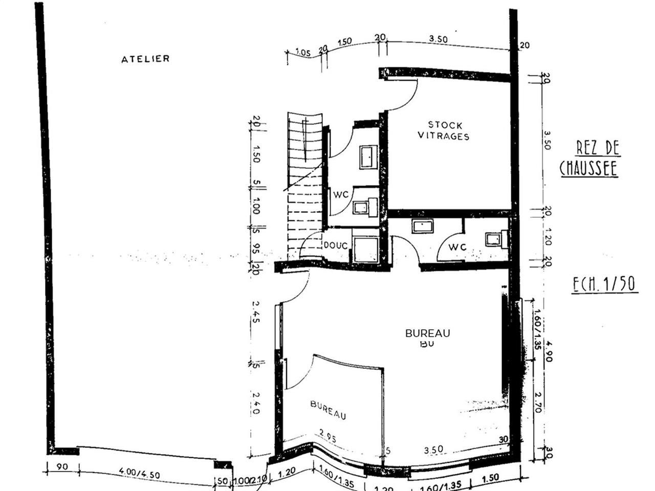
Bâtiment industriel de 450 m² à vendre à Rillieux-la-Pape
Savills Lyon vous propose à la vente un bâtiment industriel de 450 m², idéalement situé à moins de 20 minutes de Lyon en voiture. Il bénéficie d'un accès rapide aux autoroutes A42 et A46, ainsi qu'aux lignes de bus.
Implanté au coeur d'un secteur dynamique et attractif, ce bien offre un environnement favorable au développement de votre activité.
Impôt Foncier : 2566 €/an
Régime Fiscal : Droits d'enregistrement
Honoraires : 5 % HT du prix de vente HT ou HD à la charge de l'acquéreur
Prestations :
Accessibilité:
Bus n° 33 "Genevrey " à 2 min à pied
SNCF Gare TER "Sathonay - Rillieux" à environ 8 min à pied (550 m)
Autoroute à proximité immédiate des autoroutes A42 et A46
Les informations sur les risques auxquels ce bien est exposé sont disponibles sur le site Géorisques : www.georisques.gouv.fr
Savills Lyon vous propose à la vente un bâtiment industriel de 450 m², idéalement situé à moins de 20 minutes de Lyon en voiture. Il bénéficie d'un accès rapide aux autoroutes A42 et A46, ainsi qu'aux lignes de bus.
Implanté au coeur d'un secteur dynamique et attractif, ce bien offre un environnement favorable au développement de votre activité.
| Étage | Type | Surfaces | Dispo | Prix(m²) | Charges | Honoraires | Fiscal |
|---|---|---|---|---|---|---|---|
| Mezzanine | Stockage | 60 | Immédiate | n.c. | n.c. | 5 % HT du prix de vente HT ou HD à la charge de l'acquéreur | Droits d'enregistrement |
| RDC | Activités | 320 | Immédiate | n.c. | n.c. | 5 % HT du prix de vente HT ou HD à la charge de l'acquéreur | Droits d'enregistrement |
| RDC | Bureaux | 70 | Immédiate | n.c. | n.c. | 5 % HT du prix de vente HT ou HD à la charge de l'acquéreur | Droits d'enregistrement |
| Parkings | Immédiate | n.c. | n.c. | 5 % HT du prix de vente HT ou HD à la charge de l'acquéreur | Droits d'enregistrement | ||
| Total Cellule | Activités | 450 | Immédiate | 1366,67 m² HD | n.c. | 5 % HT du prix de vente HT ou HD à la charge de l'acquéreur | Droits d'enregistrement |
| Auvent | 50 | n.c. | n.c. | 5 % HT du prix de vente HT ou HD à la charge de l'acquéreur | Droits d'enregistrement |
Impôt Foncier : 2566 €/an
Régime Fiscal : Droits d'enregistrement
Honoraires : 5 % HT du prix de vente HT ou HD à la charge de l'acquéreur
Prestations :
- Bâtiment industriel idéalement situé, à proximité immédiate des autoroutes A42 et A46, facilement accessible en bus et à seulement 8 minutes à pied de la gare SNCF "Sathonay - Rillieux".
- Bâtiment occupé
- Soubassement Structure béton
- Une toiture en bac acier
- Bon état d'usage
- Deux accès avec portails coulissants motorisés
- 2 sanitaires + 2 WC
- Vestiaires + stockage (mezzanine)
- 1 Rideau métallique 4 x 4,50 m + 1 rideau métallique de 3 x 3 m
- La hauteur sous plafond est de 5,50 m en bas de pente et 5,90 au faitage intérieur bâtiment
- Le bâtiment bénéficie de deux systèmes de chauffage combiné : une chaudière à gaz et un poêle à bois
- Surface RDC : 320 m²
- Surface terrain : 1350
- Chauffage : Aérothermes gaz
Accessibilité:
Bus n° 33 "Genevrey " à 2 min à pied
SNCF Gare TER "Sathonay - Rillieux" à environ 8 min à pied (550 m)
Autoroute à proximité immédiate des autoroutes A42 et A46
Les informations sur les risques auxquels ce bien est exposé sont disponibles sur le site Géorisques : www.georisques.gouv.fr
Voir plus
Afficher les consommations énergétiques
Localisation et transport aux alentours
Favoris
Exporter
Appeler
Contacter
Signaler cette annonce










