L’agence CBRE Nantes conseille et accompagne les chefs d’entreprise dans leurs projets immobiliers quels que soient leur taille et leur secteur d’activité. Spécialistes de la transaction de bureaux ...
En savoir plus

486 m²
Activité/Entrepôt à vendre - 486 m²
Saint-Jean-de-Boiseau (44640)
Dernière mise à jour : Il y a 2 jours
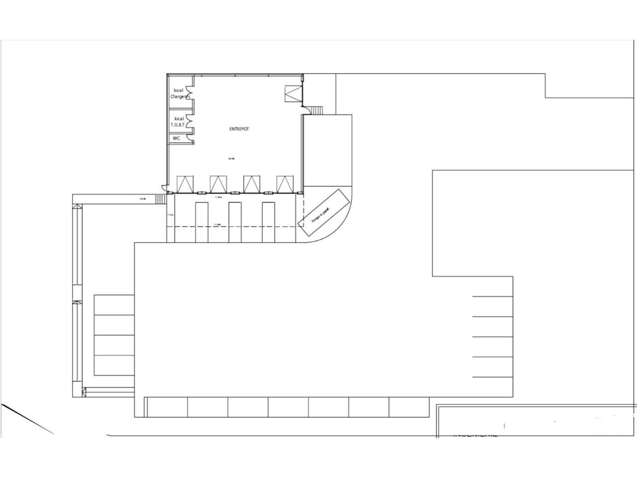
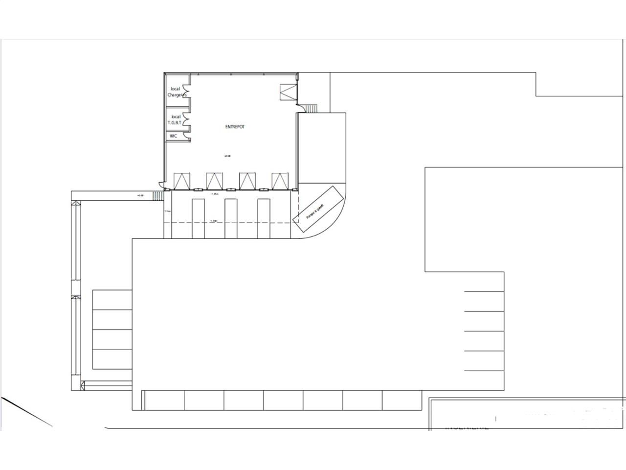
En Zone d'activités Sud Loire, à proximité des axes routiers principaux, CBRE vous propose à l'acquisition un bâtiment d'activités de 486m², équipé de quais sur un foncier de 10 000 m². Cet actif est composé de 255m² d'activité et 231 m² de bureaux. Le site offre de nombreuses possibilités d'aménagement, ou de stockage extérieur.
L'actif est un bâtiment indépendant construit en 1990 situé sur la zone du Landas sur la commune de Saint Jean de Boiseau. L'actif comprend une surface de bureaux et une partie stockage.
Impôt Foncier : 3414 €/an HT
Régime Fiscal : Droits d'enregistrement
Honoraires : 5 % HT du prix de vente HD HH à la charge de l'acquéreur
Prestations :
Accessibilité:
Route D723 à proximité - D11 - D58
Bus Bus lignes 78 et E8 sur la commune
SNCF Gare de Nantes à 20 km
Les informations sur les risques auxquels ce bien est exposé sont disponibles sur le site Géorisques : www.georisques.gouv.fr
L'actif est un bâtiment indépendant construit en 1990 situé sur la zone du Landas sur la commune de Saint Jean de Boiseau. L'actif comprend une surface de bureaux et une partie stockage.
| Étage | Type | Surfaces | Dispo | Prix(m²) | Charges | Honoraires | Fiscal |
|---|---|---|---|---|---|---|---|
| RDC | Entrepôts | 486 | Immédiate | n.c. | n.c. | 5 % HT du prix de vente HD HH à la charge de l'acquéreur | Droits d'enregistrement |
Impôt Foncier : 3414 €/an HT
Régime Fiscal : Droits d'enregistrement
Honoraires : 5 % HT du prix de vente HD HH à la charge de l'acquéreur
Prestations :
- Une unité de stockage avec un bâtiment de bureaux
- 5 quais de chargement/déchargement
- Chaudière à gaz, installation et approvisionnement en gaz (fours, chaudière)
- Production de froid positif
- Climatisation (bureaux uniquement),
- Convecteurs électriques (bureaux)
- Réseau d'eau incendie, extincteurs
- 32 places de parking en extérieur :
- 20 place VL
- 12 places PL
- Immeuble indépendant
- Surface RDC : 486 m²
- Surface terrain : 10000
Accessibilité:
Route D723 à proximité - D11 - D58
Bus Bus lignes 78 et E8 sur la commune
SNCF Gare de Nantes à 20 km
Les informations sur les risques auxquels ce bien est exposé sont disponibles sur le site Géorisques : www.georisques.gouv.fr
Voir plus
Afficher les consommations énergétiques
Favoris
Exporter
Appeler
Contacter
Signaler cette annonce
