BNP Paribas Real Estate, N°1 de la transaction en immobilier d''entreprise en France, vous propose un accompagnement de qualité pour l''acquisition, la vente ou la location d''un bien immobilier.Vo ...
En savoir plus

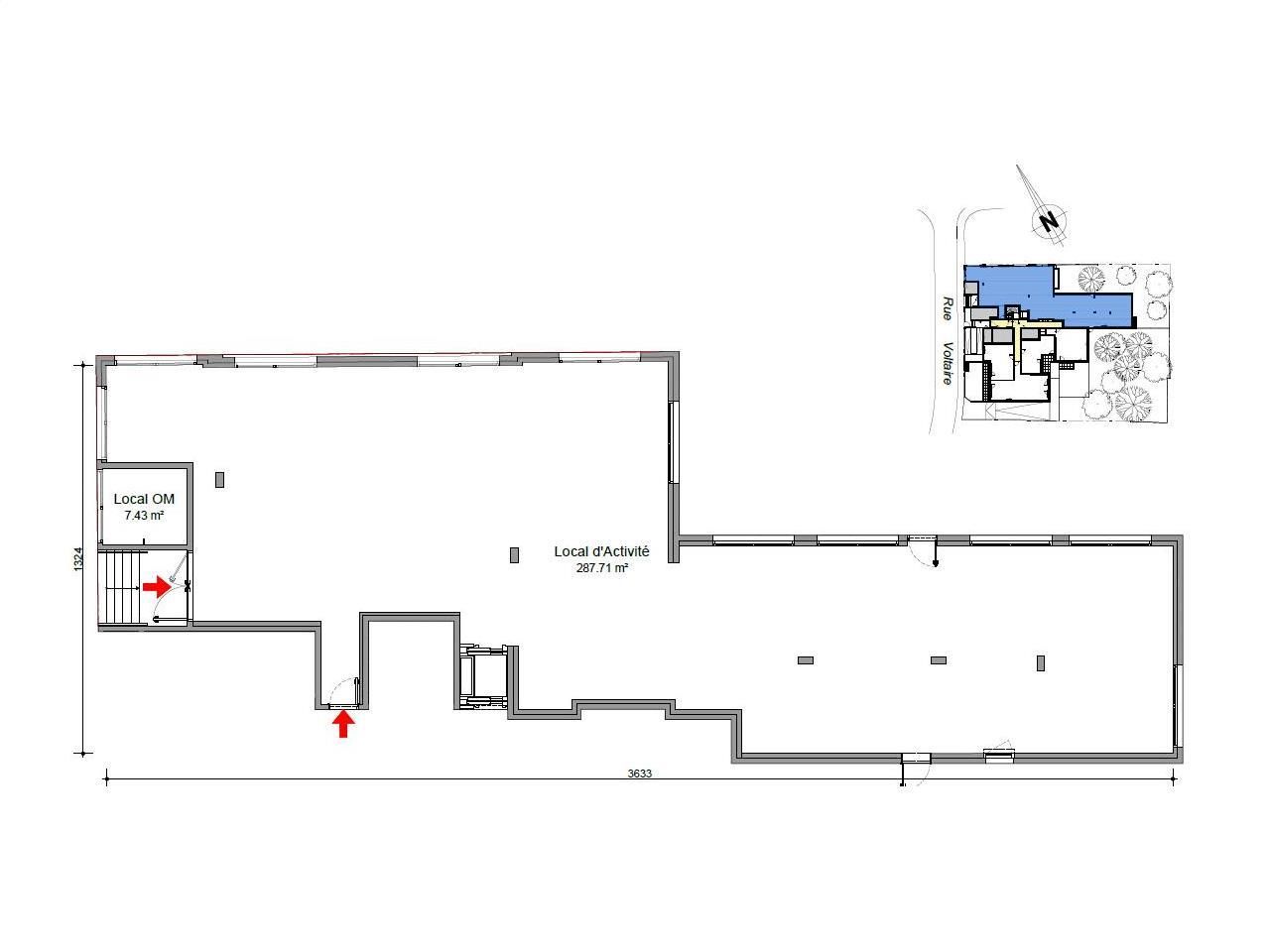
772 m²
Activité/Entrepôt à vendre - 772 m²
Fresnes (94260)
Dernière mise à jour : Il y a 2 jours
A VENDRE (FRESNES) BNP PARIBAS REAL ESTATE vous propose un batiment d'activité à vendre à FRESNES
BNP PARIBAS REAL ESTATE vous propose, à la vente, un bâtiment d'activité neuf d’une surface de 772 m².
Ce bâtiment neuf offre de grands plateaux permettant une grande flexibilité d'aménagement et de nombreux autres services et prestations techniques. Ces locaux bénéficient d’une accessibilité remarquable dans un environnement tertiaire et dynamique.
Accessibilité :
- Dessertes routières : A86, A6
- RER B : LA CROIX DE BERNY
- Bus : N62- BERNY
Pour toute information complémentaire, n'hésitez pas à prendre contact avec nos consultants BNP PARIBAS REAL ESTATE.
Disponibilité: 12 mois après accordHonoraires: 5% HT du prix HT/HD. à la signature de l'acte
| Fiche technique du bien | |
|---|---|
| RER | B LA CROIX DE BERNY |
| Bus | N62- BERNY |
| Desserte routière | A86; A6 |
| Etat de l'immeuble | Neuf |
| Etat du terrain | Goudronné |
Afficher les consommations énergétiques
Favoris
Exporter
Appeler
Contacter
Signaler cette annonce



