Conseil en immobilier d'entreprise, Cushman & Wakefield est un acteur incontournable au rayonnement international. Cushman & Wakefield offre des solutions dans toutes les étapes que comporte un p ...
En savoir plus



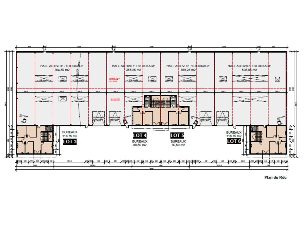
2 740 m² divisible dès 369 m²
HT HC
PARC DE LA GRIVE - Location activité/entrepôt - 2740 m²
Décines-Charpieu (69150)
Dernière mise à jour : Il y a 5 mois
A LOUER BATIMENT DE 2 700 M² - DECINES CHARPIEU (69150)
Immeuble PARC DE LA GRIVE
Cushman & Wakefield vous propose à la location un bâtiment de 2 700 m² dont 799 m² de bureaux au coeur de l'Est lyonnais.
À Décines-Charpieu (69150), au sein de la Zone Industrielle de la Lombardie, ce bâtiment de 2 740 m² à louer représente une opportunité rare pour les entreprises en quête d'un site immédiatement disponible, fonctionnel et stratégiquement situé.
Implanté dans un secteur dynamique de l'Est lyonnais, il bénéficie d'une accessibilité optimale grâce à la proximité du Boulevard Périphérique, de la Rocade Est et du Boulevard Urbain Est. Ces axes majeurs facilitent les connexions vers Lyon et les principaux pôles économiques de la région. Les lignes de bus 79 et Zi3, avec un arrêt à Décines Verlaine, renforcent la desserte en transports en commun, rendant le site attractif pour les collaborateurs.
L'environnement immédiat conjugue zones d'activités, espaces verts et services urbains, offrant un cadre professionnel stimulant. Conçu pour accueillir des activités industrielles et tertiaires, le bâtiment propose une hauteur libre de 7 mètres, une dalle béton quartz, trois portes sectionnelles et de nombreux stationnements extérieurs.
Les bureaux, répartis sur deux niveaux, sont aménagés avec soin : salles de réunion, réfectoire, local informatique, bureaux cloisonnés, carrelage en rez-de-chaussée et sol souple à l'étage. Ce bien rare allie accessibilité, performance technique et confort, dans un secteur en pleine croissance au coeur de la métropole lyonnaise.
Impôt Foncier : 12,58 €//m²/an
Régime Fiscal : T.V.A.
Dépôt de garantie : 3 mois de loyer HT
Honoraires : 15 % HT du loyer annuel HT/HC à la charge du preneur.
Information sur le Bail :
Loyer parking : 200 euros HT / u / an Bail commercial investisseur Les charges sont de l'ordre de 7,72 euros HT/m²/an comprenant l'entretien de la toiture, des espaces verts, l'entretien courant, eau et électricité des parties communes, l'eau privative, les vérifications électriques. L' assurance est de 2,11 euros HT/m²/an
Prestations :
Accessibilité:
Bus Lignes 79 et Zi3 arrêt Décines Verlaine
Accès routier Boulevard périphérique à proximité
Accès routier Rocade Est à proximité
Accès routier Accessible par le Boulevard Urbain Est
Les informations sur les risques auxquels ce bien est exposé sont disponibles sur le site Géorisques : www.georisques.gouv.fr
Immeuble PARC DE LA GRIVE
Cushman & Wakefield vous propose à la location un bâtiment de 2 700 m² dont 799 m² de bureaux au coeur de l'Est lyonnais.
À Décines-Charpieu (69150), au sein de la Zone Industrielle de la Lombardie, ce bâtiment de 2 740 m² à louer représente une opportunité rare pour les entreprises en quête d'un site immédiatement disponible, fonctionnel et stratégiquement situé.
Implanté dans un secteur dynamique de l'Est lyonnais, il bénéficie d'une accessibilité optimale grâce à la proximité du Boulevard Périphérique, de la Rocade Est et du Boulevard Urbain Est. Ces axes majeurs facilitent les connexions vers Lyon et les principaux pôles économiques de la région. Les lignes de bus 79 et Zi3, avec un arrêt à Décines Verlaine, renforcent la desserte en transports en commun, rendant le site attractif pour les collaborateurs.
L'environnement immédiat conjugue zones d'activités, espaces verts et services urbains, offrant un cadre professionnel stimulant. Conçu pour accueillir des activités industrielles et tertiaires, le bâtiment propose une hauteur libre de 7 mètres, une dalle béton quartz, trois portes sectionnelles et de nombreux stationnements extérieurs.
Les bureaux, répartis sur deux niveaux, sont aménagés avec soin : salles de réunion, réfectoire, local informatique, bureaux cloisonnés, carrelage en rez-de-chaussée et sol souple à l'étage. Ce bien rare allie accessibilité, performance technique et confort, dans un secteur en pleine croissance au coeur de la métropole lyonnaise.
| Étage | Type | Surfaces | Dispo | Loyer | Charges | Type de bailRév. annuelle |
|---|---|---|---|---|---|---|
| RdC | Activités | 1940,6 | Sur l'indice ILAT | |||
| Total Cellule | Activités | 1940,6 | 90 HT/HC/m²/an | 7,27 HT/m²/an | 3-6-9 ansSur l'indice ILAT | |
| RdC | Bureaux | 430,8 | Sur l'indice ILAT | |||
| Total Cellule | Activités | 430,8 | 125 HT/HC/m²/an | 7,27 HT/m²/an | 3-6-9 ansSur l'indice ILAT | |
| RdC | Bureaux | 369 | Sur l'indice ILAT | |||
| Total Cellule | Activités | 369 | 125 HT/HC/m²/an | 7,27 HT/m²/an | 3-6-9 ansSur l'indice ILAT | |
| pkg Ext | Parkings | 200 HT/HC/m²/an | Sur l'indice ILAT |
Impôt Foncier : 12,58 €//m²/an
Régime Fiscal : T.V.A.
Dépôt de garantie : 3 mois de loyer HT
Honoraires : 15 % HT du loyer annuel HT/HC à la charge du preneur.
Information sur le Bail :
Loyer parking : 200 euros HT / u / an Bail commercial investisseur Les charges sont de l'ordre de 7,72 euros HT/m²/an comprenant l'entretien de la toiture, des espaces verts, l'entretien courant, eau et électricité des parties communes, l'eau privative, les vérifications électriques. L' assurance est de 2,11 euros HT/m²/an
Prestations :
- Parc d'activité
- Bâtiment d'activité
- Nombreux stationnements extérieurs
- Activité :
- Bardage double peau
- Toiture bas acier
- Dalle industrielle béton quartz
- Hauteur libre 7 m
- Chauffage par aérotherme gaz
- 3 portes sectionnnelles
- Bureaux :
- Salles de réunion
- Réfectoire
- Local informatique
- Bureaux closonnés
- Carrelage en RDC
- Sol souple en R+1
- Locaux sociaux
- Immeuble indépendant
- Surface RDC : 2740,4 m²
- Equipements entrepôts : Chauffage par aérothermes gaz
Dalle industrielle
Portes sectionnelles 4 x 4,5 m - Couverture : Bac acier
Accessibilité:
Bus Lignes 79 et Zi3 arrêt Décines Verlaine
Accès routier Boulevard périphérique à proximité
Accès routier Rocade Est à proximité
Accès routier Accessible par le Boulevard Urbain Est
Les informations sur les risques auxquels ce bien est exposé sont disponibles sur le site Géorisques : www.georisques.gouv.fr
Voir plus
Afficher les consommations énergétiques
Localisation et transport aux alentours
Favoris
Exporter
Appeler
Contacter
Signaler cette annonce










